
近日梅溪湖城市岛钢结构工程封顶 解析异形钢结构测绘BIM思路
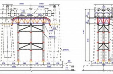
摘要:2015年12月31日,世界最大双螺旋钢结构位于梅溪湖西岸的城市岛双螺旋观景平台实现封顶,解析异形钢结构测绘BIM思路。 2015年12月31日,随着最后一块重15.5吨的螺旋体环道单元被吊至35米高空,并完成拼装、焊接,位于梅溪湖西...

摘要:2015年12月31日,世界最大双螺旋钢结构位于梅溪湖西岸的城市岛双螺旋观景平台实现封顶,解析异形钢结构测绘BIM思路。 2015年12月31日,随着最后一块重15.5吨的螺旋体环道单元被吊至35米高空,并完成拼装、焊接,位于梅溪湖西...

摘要:南京禄口国际机场二期工程为江苏省重点项目通过BIM技术的研究和实践,克服了技术阻碍,确保了项目的顺利进行,同时为以后同类项目的建设提供可借鉴的经验。 1项目简介 南京禄口国际机场二期工程为江苏省重点项目,新建T2航站楼的建筑面积为26...
摘要:在建筑工程企业内现行的进度管理系统主要存在或部分存在着信息化程度低、不支持可视化等缺点,基于BIM系统的工程进度管理又将是如何有效应用的呢? 背景: 建设工程大型化、复杂化的趋势,对进度管理系统提出了新的更高要求。建设工程项目的一大特...
摘要:设计竞赛是学校创新教育体系的重要组成部分,是培养学生实践创新能力的重要途径之一。建筑业的发展越来越离不开BIM高端人才。为了将实践能力和创新能力培养贯穿于现代大学教育中,在总结以往经验的基础上,提出BIM教学工作坊建设和实施。 建设实...

摘要:目前在国内BIM应有行业产生一定影响的分类法大致有三种:何氏分类法;AGC分类法;厂商、专业分类法。 BIM从设计到运维都需要使用哪些软件? 用户名丨ZFCONNOR,著作权归作者所有 目前常用BIM软件数量已有几十个,甚至上百之多。...
摘要:你所理解的BIM=企业想要的BIM吗?求职者与企业管理者之间的“BIM鸿沟”怎么破? 面对寒气逼人的建筑行业大环境,BIM是否会对建筑行业人员就业机会产生影响?筑龙小编独家为您准备——精准定位BIM职业方向。 筑龙编: 你所理解的BI...
摘要:现在世界上大部分的工程设计中都采用BIM技术,建筑信息模型BIM是以建筑工程项目的各项相关信息数据作为模型的基础,进行建筑模型的建立,通过数字信息仿真模拟建筑物所具有的真实信息。它在工程项目中贯彻始终,对工程实践有着十分重要的意义。 ...
摘要:2015年12月24日,由上海市住房和城乡建设管理委员会、上海市建筑科学研究院(集团)有限公司共同编制的《上海市建筑业行业发展报告(2015年)》正式出版发行。特别对BIM技术、绿色建筑、装配式建筑、信息平台等重点、热点问题做了深入的...

摘要:由国家建筑信息模型(BIM)产业技术创新战略联盟(中国BIM发展联盟)主办、上海市建筑科学研究院(集团)有限公司承办的“中国建筑信息模型(BIM)技术体系与应用实践”高级研修班(第二期)定于2016年4月9-14日在上海举办。 点击右...

摘要:在云龙湖大桥建设中,沈阳用上了国际上最先进的BIM技术,是沈阳建筑行业首次用到这项技术。 “过去,修建一座大桥的施工图纸需要2000多张,技术人员要看三四天才能逐一对照图纸进行施工。应用了BIM(建筑信息模型)技术后,就像看三维电影一...

摘要:华润深圳湾国际商业中心项目的BIM团队2015年荣获多次荣誉,受到业界一致好评。项目的BIM管理究竟如何实施?下面简要介绍“春笋”项目的BIM经。 序: 2015年,华润深圳湾国际商业中心项目BIM团队荣获了中国建设工程BIM大赛一等...

摘要:BIM是泡沫吗?业内领先人士是否还看好BIM?BIM能产生价值吗?BIM包治百病吗?BIM门槛高,是个铁饭碗吗? 问:BIM是泡沫吗?业内领先人士是否还看好BIM? 梁骁: 是时候贴出这张图了,这种过程是任何一种新技术都难以避免的。只...

摘要:通过分析当前CAD二维设计技术在桥梁施工设计中的现状,依托新白沙沱长江特大桥的施工设计,介绍BIM设计技术的特点及对桥梁施工设计的影响。 20世纪80年代CAD绘图软件推出,设计人员从手工劳动向计算机辅助设计发展,带来设计行业的第一次...

摘要:基于BIM的白沙沱长江大桥工程4D动态施工管理系统充分发挥其各项功能,盘点历来桥梁工程的BIM应用。 本月初,中铁大桥局渝黔铁路土建1标项目部的BIM综合应用成果《渝黔铁路新白沙沱长江特大桥BIM综合应用》荣获首届中国建设工程BIM大...

摘要:“四叶草”国家会展中心(简称国展中心)是世界上面积最大的建筑单体和会展综合体,运营一年来,它究竟是怎么做到这一个“庞然大物”却是建筑界的“节能标兵”? 108米宽、270米长、34米最大净高的“四叶草”国家会展中心(简称国展中心)是世...

摘要:在进入BIM时代的时候,CAD时代要用的工具也依然在使用。这两者究竟是什么样的关系?又有什么不同呢? 大家都知道CAD是什么吧?又知道BIM是什么吗? CAD:ComputerAidedDesign(计算机辅助设计) BIM:Buil...

摘要:云南省在麻昭、宣普、龙瑞等11条高速公路中推广运用BIM技术,开发了“基于BIM技术的项目建设云管理平台”。 云南省开发了“基于BIM技术的项目建设云管理平台”,并在麻昭、宣普、龙瑞等11条高速公路中推广运用,取得了显著成效。由于云南...

摘要:随着我国经济发展进入新常态,建筑行业也进入新常态。建筑企业如何适应新常态,如何生存发展,关键是质量、品牌、效益。当前要达到这个目标,最好的工具、最好的手段就是应用BIM技术,这已经成为行业的共识。 “随着我国经济发展进入新常态,建筑行...

摘要:随着BIM的推进,设计院中的哪个专业的传统工程师会因为这种技术对于设计产业的变革丢掉饭碗? 作者丨梁骁中国建筑上海设计研究院BIM研究所 虽然我是个菜瓜,但是在此还是想谈一谈:随着建筑行业BIM技术应用的发展,哪些设计从业...

摘要:作为一个BIM从业者到底应该如何告诉他BIM在运营维护阶段的运用应该是怎样的。 作者丨梁骁中国建筑上海设计研究院BIM研究所 今天我想给大家讲一个故事,就是这件事让我对BIM的运营维护阶段运用产生了深刻的反省,真正的开始思...