大数据带来大智慧建筑业大数据为智慧城筑基
近日,第十届中国智慧城市建设技术研讨会暨设备博览会圆满召开。会议汇聚了智慧城市建设主管部门领导、知名专家学者、技术领先企业,集中展示智慧城市建设最新技术和方案,深度探讨“‘互联网 ’智慧城市”...
近日,第十届中国智慧城市建设技术研讨会暨设备博览会圆满召开。会议汇聚了智慧城市建设主管部门领导、知名专家学者、技术领先企业,集中展示智慧城市建设最新技术和方案,深度探讨“‘互联网 ’智慧城市”...
自BIM被引入我国工程建设领域以来,其价值逐渐被认知并凸显,近几年更是呈现出风生水起的发展势头。然而随着BIM应用的深入,困惑也越来越多。就像一个学游泳的人,在浅水区时可以欢快的扑腾,但一旦进入深水区,却陡感紧张心慌,如果手、脚、躯体、头等...

根据Transparency Market Research(透明度市场研究)的一份最新报告——2015-2022年BIM全球市场分析,规模,信息,增长,趋势以及预测,2014年全球BIM市场价值27.6亿美元,而到...
一、BIM是“跨领域”的产物 当下,新技术不断出现,在这样的技术背景之下,很多行业都在被颠覆。就以电商的兴起为例,从前我们大多选择去商场购物,但如今,随着互联网普及,淘宝等电商应运而生,我们足不出户即可买到自己所需的...

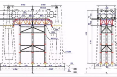
桥梁施工设计主要为桥梁施工中所用的大型临时结构,包括基础施工的钻孔平台及围堰、墩身施工的模板及支架、主梁施工的现浇支架或挂篮等,目前设计过程中都应用CAD(Computer Aided Design)技术绘制设计图纸。随着社会不断向前快速发...

各有关单位: 根据上海市建筑信息模型技术应用推广联席会议办公室发布的《关于在本市开展建筑信息模型技术应用试点工作的通知》(沪建应联办〔2015〕2号)的要求,我办会同联席会议相关成员单位对第一批申报试点项目的政府投资工程和社会投资工程分别进...
近几年“互联网+”兴盛,浙江一企业做起“网上裁缝”,一键预约即可量体裁衣,让个性化定制服装走进寻常百姓家。 26日,主题为“改变,从‘衣’开始”...
互联网发展将近二十年形成了互联网产业,持续的互联网创新、创业才有了云计算,如今云服务更是成为一种互联网创业模式。 云计算也正一步步晋升为巨头们最大的收入来源之一。今年亚马逊的数据显示,AWS 已经成为亚马逊增长最快的业务部门,平均每季度带来...
民以食为天。2015年,团购美食和外卖送餐服务业风起云涌,广大“吃货”自然是乐在其中。2015年,在“舌尖上的中国”,“吃货们”到底有多能吃?有多爱吃?“吃...
12月28日,北京诚品快拍物联网科技股份有限公司(证券简称:快拍物联)在全国中小企业股份转让系统(新三板)挂牌上市,东北证券作为其挂牌主办券商,证券代码为835101。作为中国物联网营销第一股,101这个数字将赋予快拍物联更多的意义,公司董...

秘密武器1:陶瓷振动器 由于瓷砖与基层粘接剂结合不均匀,气泡难以溢出,从而会产生空鼓开裂风险。针对此类问题,通过便携式震动设备,辅助振捣使气泡快速溢出,使得基面和砖体背面粘结均匀,提高粘接强度和作业效率。 秘密武器2:电动钢筋绑扎机 传统钢...
各省、自治区住房和城乡建设厅,直辖市建委: 为贯彻落实《国务院办公厅关于转发发展改革委住房城乡建设部绿色建筑行动方案的通知》(国办发[2013]1号)和《住房城乡建设部关于进一步推进工程造价管理改革的指导意见》(建标[2014]142号),...
据了解,2014年4月,宝鸡市出台了《宝鸡市绿色建筑行动实施方案》,绿色建筑越来越受到市场热捧。目前,宝鸡市绿色建筑面积共计约71.35万平方米,住宅小区、商务中心、医院等项目的建设,拉开了宝鸡市绿色建筑工作蓬勃发展的序幕。 地源热泵&ld...

1、新加坡维多利亚大街Iluma综合商业建筑 Iluma是一个集娱乐和零售于一体的开发项目,坐落在新加坡著名的白沙浮街区(Bugis Street),目前艺术、教育及娱乐是这一街区的主要职能。在这栋建筑中,线性体块与曲线形雕塑造型体块形成了...

广西建工大厦项目位于南宁市五象新区核心地段,总建筑面积12万多平方米。开工之初,项目部就确定创建“全国建筑业绿色施工示范工程”的目标,成立了以广西建工集团副总工程师、技术中心主任肖玉明为组长,广西建工一建总工程师谢鸿...

中央城市工作会议12月20日至21日在北京举行。上一次中央层面召开的城市工作会议,是1978年国务院召开的全国城市工作会议,会议厘定了城市建设和发展工作的基本思路。 时隔37年后,城市工作再次上升到中央层面进行专门研究部署,是改革开放以来的...
引言 BIM技术是近几年才提出和发展的工程建设管理综合集成技术,是英文术语“Building Information Model" 或“Building Information Modeling&rdquo...

2015年习主席与李总理讲话提到最多的就是互联网 ,是的,互联网时代真的已经来了! 在这个更新模式飞快的时代:百度干了广告的事!淘宝干了超市的事!阿里巴巴干了批发市场的事!微博干了媒体的事!微信干了通讯的事…… ...
一、BIM及工程建设信息化 BIM作为目前世界上最先进的建筑行业综合设计施工技术,基于建筑市场的需求,近几年才在我国建筑行业有所应用。最引起业内人士关注的是中国第一高楼“上海中心”工程,双层幕墙结构的上海中心每一层1...
一、BIM工程软件简介 BIM工程软件是以建筑工程项目的各项相关信息数据作为模型的基础,进行建筑模型的建立,通过数字信息仿真模拟建筑物所具有的真实信息。BIM全称:Building Information Modeling(建筑信息模型)B...