这个项目是基于墨西哥整个犹太人社区想要一个保存其历史的安全且公共的场所而设计的。这座新建筑位于墨西哥城复兴后的罗马殖民地内,建造在罗德夫-塞德克犹太会堂旁的一小块空地上。该体量是原有建筑的入口通道,同时还被赋予了新的用途,可以作为博物馆和文献库来展示有关犹太文化的信息,尤其是在墨西哥衍生的犹太文化。
人行道上的所有行人都会在不经意间留意到新建筑上具有庄严感的混凝土立面,反而很少是特意在穿行在新广场时清楚地看到犹太教堂的立面(包括主立面和侧立面)。新广场将两栋建筑分隔开来,并用作一个主大厅,所有来此的游人都可以进入。
游人在新广场(BIM工程师)上可能会注意到新建筑所采用的的玻璃面能够反射出老建筑的形态,因为它们两个分别立在广场的两边,且高度相同。在教堂内部,新建筑与原有的犹太教堂层高相同,以示尊敬,并且仅在一处位置上有所连接。屋顶的比例差异突出了这一连接体,这让任何人都对重建后的犹太教会堂心生敬畏。
老档案、从十七世纪流传下来的书籍、旧护照和移民卡、报纸和杂志、照片和视频、重要的社区文件和信件等,都可以在这里找到,供研究人员伴随着头顶上的大吊灯和彩色玻璃窗在墨西哥犹太社区年代最久远的宗教场所之一中学习。所有材料都安全地存放在犹太教会堂现有的半地下室内的移动式搁架上,该搁架也一直延伸到新建筑中,这两个空间都由特殊的微气候进行控制,有利于保存文件。
但是建筑内的功能设置比一般档案馆更为丰富,比如还包括有学习中心、供85人使用的会议礼堂、小型露台咖啡馆等,目的在于使建筑全年保持一定活力和功能性。文献中心内还有一个多功能空间,可以用于讲授课程、在圆桌上讨论学习,甚至可以举办一个小型展览。新建筑的最顶层内是行政办公室,能够通过其玻璃立面俯瞰犹太教堂;修复工作间通过书籍电梯与档案馆相连,电梯可以一直下降到半地下室内。
如果没有Maguen David和墨西哥犹太文献研究中心董事会成员以及其他人的资助,这个项目基本没有可能落地建成,也正是Silvia博士一直保存在心中的这个愿望终于促使我们踏上这段旅程。
图纸
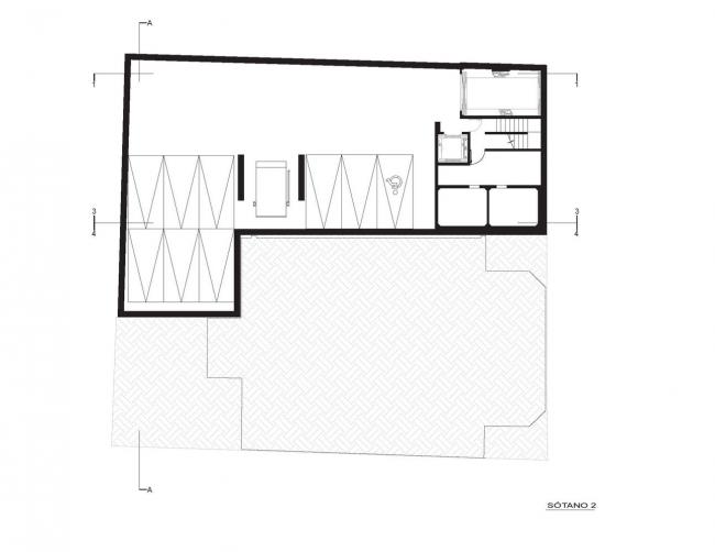
地下层平面图1
地下层平面图2
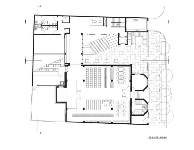
首层平面图
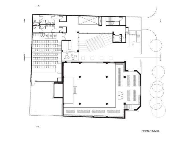
二层平面图
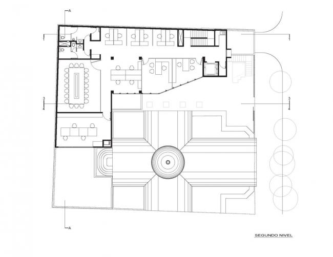
三层平面图
剖面图1-1
剖面图3-3
剖面图A-A
西立面图
项目信息
建筑设计:Ezra Cherem Behar, Alan Cherem Hamui
项目区位:墨西哥,科尔多瓦
建筑负责人:Ezra Cherem Behar, Alan Cherem Hamui
合作方:Elias Cherem
结构工程:Ing. Alfonso Chavez Mejia
照明设计:Luz + Forma
建筑面积:20537.54平方英尺
项目时间:2018年
项目摄影:LGM Studio – Luis Gallardo
项目类型:图书馆

BIM建筑网





























