Engine建筑事务所在2009年的一次邀约招标竞赛中击败了包括霍普金斯、贝尔茨建筑事务所、潘特·哈德斯皮和普林格尔·理查兹·沙拉特在内的众多知名建筑事务所,获得业主方委托来设计这座具备最先进科学和数学设施的新大楼。切特豪斯学校始建于1611年,是英国历史上著名的公立学校之一。该学校拥有四个世纪的漫长历史,并致力于在二十一世纪中走在教育发展的前列。学校的主要目标是通过促进跨学科和跨领域的合作,改革在学校内教授科学和数学科目的方式,为当代和未来的学生提供世界一流的学习环境。
新的科学和数学中心提供:
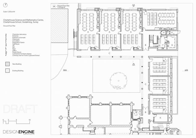
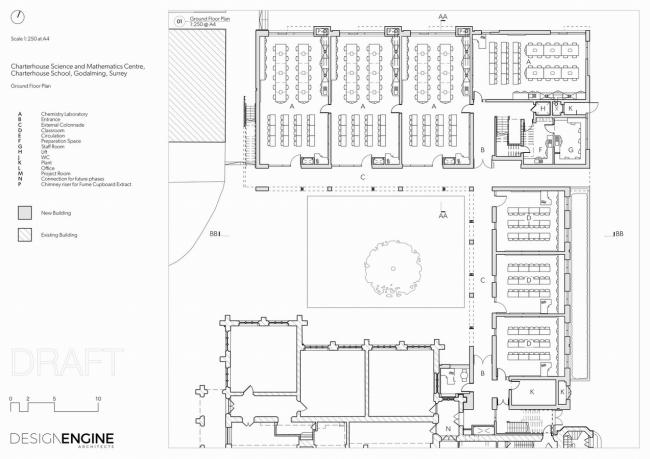
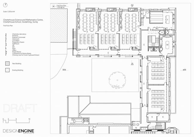
1.整体空间增加50%,包括7个新建化学实验室和干湿教学区、5个数学教室、2个教学准备室和一个项目研究室。
2.一个灵活、现代化的高品质环境。
3.在新教学方法的发展上有更大的创新空间,确保切特豪斯学校继续在(BIM工作)学术上保持领先的地位。
4.科学与数学两大科目首次并置,以促进更大范围内的合作关系。
5.增加额外的实练作业空间,增加引入需要更长时间运行的实验潜力,这些实验将不再需要在每节课结束时移除。
首层平面图
场地位于校园东北处的边缘地段。学校内的原有建筑以历史建筑和背景为特点,主要由建筑师菲利浦·查尔斯·哈德威克设计完成,具有浓郁的新哥特式建筑风,这种设计风格最早可以追溯到19世纪末和20世纪初。Engine事务所的设计以三个尖顶表示下面的6个化学实验室,创建了一种微妙但是意义十足的建筑体量与原有的校园相连接,因为老校园的风格深深根植于这种建筑语汇。
这个屋顶不仅连接了一个与环境相适应的建筑形式,而且还在王子大道上的小学入口处提供了景观焦点,同时还巧妙地平衡了化学实验室对内部空间和功能使用上的需求。切特豪斯学校的一位校领导Emma Humphreys曾说道:“我们对新科学和数学大楼的落成感到高兴,同时也对其所提供的供孩子们进行学习和工作的新灵感空间感到高兴。不得不承认,Engine事务所和工程的承包商为了满足我们任务书上的各项要求颇费了一番心思,最终设计出了这座顶级的教学大楼,学校对此感到自豪。”
Engine事务所的创始人Richard Jobson说:“在这样一个历史背景下设计一座当代建筑总会让人心生怯畏,但是我们非常高兴,我们的原始概念加上从菲利普·查尔斯·哈德威克设计的哥特式校园中汲取的建筑精神,最终创建出了我们心目中对未来有所畅想同时又对过去有所尊敬的新建筑形式,同时这幢建筑还有助于修复学校受损和被遗忘的部分。”
项目图纸
总平面图
首层平面图
二层平面图
北立面、东立面
剖面图A、剖面图B
烟囱部分细部
项目信息
建筑设计:Engine Architects
项目区位:英国,戈德尔明,切特豪斯学校路
建筑面积:1800.0平方米
项目时间:2018年
项目摄影:Peter Blundy/Design Engine
项目分类:科学中心
制造商:VMZINC, RAICO

BIM建筑网


































![BIM建筑|商业社区,Bradbury 工厂 / [Y/N] Studio-BIM建筑网](https://www.bimkk.com/wp-content/uploads/2023/06/8708025ee511d7b-380x250.jpg)
