这栋私人住宅房屋位于Cerro Azul的Lomas del Mar海滩,距离南部的利马市120公里路程。该地块是一个岩石和沙丘为主要地形特质的场地,半弯曲形状,高出海平面48米,最低处陡峭下降8米。它有一个180度的南太平洋景观,以及东部和北部的海滩全景。
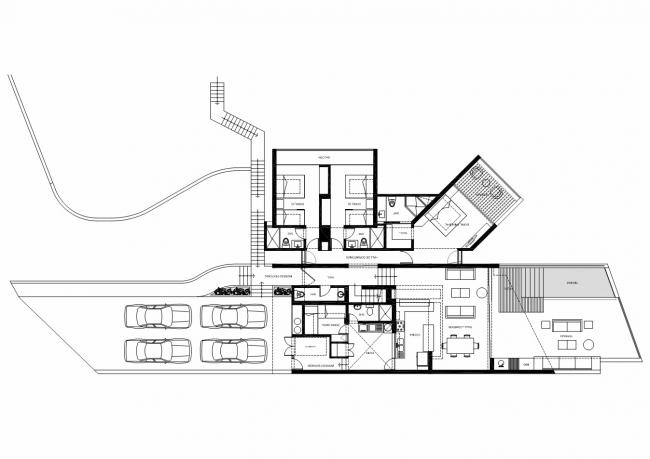
最初设计该项目时的两个主要的策略和目标是起居空间区域和主卧都能充分利用对面的海洋的最佳景观和视野,并能最大化的利用场地内的土地资源。于是设计师首先设计了两个平行的建筑体量,以第一个体块为目标,将另外一个使其相互靠近,并且抬高出1.20米左右的高度,人们可以由此看到大海。两个建筑体快由主轴线相互连接,最终相交于能够俯瞰远处海滩的游泳池中。
为了充分利用大悬挑设计构思,我们在建筑的最高处,将地块的有效面积逐步减少。使得第一个(BIM)建筑体快能够位于房子入口的左侧,而大部分的卧室都位于房子的入口处。并且将主卧房间和相邻的露台旋转出45°,人们也能够自然欣赏到远处的海景。右边的第二个体量将社交起居空间和服务区域定位在首层空间。而将家庭间和客房放置在二楼。
两层楼的体量内包含了起居和用餐区,最后在游泳池的露台相交终止。位于二楼的家庭活动室在空间上通向一楼的起居和用餐室,并享有开阔的海景。通往二楼的楼梯采用天然混凝土制成,越过厨房空间,将该区域与起居和用餐厅区分隔开。
该项目使用的材料包括:裸色混凝土,墙体上的白色涂料,不锈钢,钢化玻璃和花岗岩石材。后者已被用于覆盖建筑体量所在的基座部分,目的是将它们与自然地形清晰的分隔开来。游泳池由外表面的双面夹层玻璃围合,与房屋的其他部分空间相同,同样可以清晰看到大海的景观视野。
图纸
立面图
平面图
平面图
剖面图
项目信息
建筑师:VérticeArquitectos建筑师事务所
建筑地点:秘鲁
委托客户:私人
建筑面积:250.0平方米
建筑类别:住宅房屋

BIM建筑网
















