大悦城 · 长风 · 庄生晓梦迷蝴蝶 · Herstory Art Zone ·
庄周化蝶舞,梦随逍遥境。
都说大隐隐于世,而真正的凡世,却又有几何?
商场之境,亲子之所,举买之地, 可得一时逍遥?
在商业方面,裸筑接到的设计命题,是在一个10m高的商场空间里,设计一处共享客厅。
这座商场的主题被定为“女主体验空间”。
功能:“游乐地 + 商场客厅 + 亲子表演舞台(BIM工程师) + 图书馆”的功能复合空间。
“柔”域
当曲线在三维空间组合的时候,“柔”往往更触动人心。
▼ 入口楼梯的“柔”
▼“蝴蝶”的“柔”
▼曲线水磨石体量的“柔”
▼水磨石台阶
▼楼梯分析图
原楼板边缘被“柔”化,边缘立面形成“迎”式的曲线。为“蝴蝶”空间提供了一个“看”的场所。新建的椭圆旋转楼梯连接4-5F的垂直交通,为整个场域提供了重要的通道及主视觉形象。
▼椭圆旋转楼梯
▼楼梯台阶细部
骨架 曲线
这个“蝴蝶”里,我们用了44个钢管拱圈,按照原楼板造型,弯曲出一阵连拱,以这个场地的原垂直构筑-钟楼向外中心阵列。
▼“蝴蝶”空间
▼垂直构筑——钟楼搭建的展览区
▼从旋转楼梯上往下看空间
▼商场空间
▼从垂直构筑——钟楼向外中心阵列的骨架模型
曲率骨架的膜结构,是我们对“女性”这个词汇的象形定义。庄生晓梦迷蝴蝶,在这个语境里,蝴蝶即女性。不同色阶的灯光渲染下的膜结构,正是“女性”的“迷”与“幻“。
▼象征“女性”的蝴蝶空间
▼不同色阶灯光渲染下的膜结构
而在功能方面,曲线的落地钢构,有效的代替由于功能不同而理应产生的墙体隔(BIM设计)断,柔美的空间语言被“光”与“曲线”解放。
▼落地钢构代替了不同功能空间的墙体隔断
▼落地钢构细部
▼落地钢构细部
▼坐凳细部
曲线骨架所带来的向心力以及自由平面,重新定义了原本枯草的空间,形成了“女性”空间所有的场域精神。
室内微气候的调节者
“膜”有很好的阻热保温功能,是室内微气候的调节者。
▼膜搭建的隔热保温空间
▼膜搭建的隔热保温空间
▼茶几
我们花了半年时间,来尝试和研究将“膜”结构置入室内空间所必要的,施工,建造顺序,节点连接,灯光配合,结构荷载等。 结果令我们兴奋的是,“膜”材料所衍生出的柔软的“ 肌肤感 ”,形成一种特殊的媒介载体。这与我们想表达“女性”的“蝴蝶魅”相得益彰。
▼“膜”材料传达出“女性”的“蝴蝶魅”的形象
▼骨架节点分析
空气,复杂的光环境穿越过“膜”, 以漫反射的形式呈现,在静定的空间里随时随地带来情境内容的变化,跳跃以及臆想。自由是光,一定的透光量在膜的遮蔽下,人与光,人与人,人与影,在探索中穿梭,或者猫在角落,不同的体态组合,丰富不同的行为形式。
▼光在“膜”空间内产生漫反射
▼光影跳跃
如果说裸筑以往的项目都是以小见大,用一个“设计点”来隐射出场域精神,那么这次我们尝试将场域转化为场所,以独立和优雅的姿态 营造出一个个小的漫步空间,更注重的是人的临场感受,在场所中体验的过程。
▼空间细节
▼水磨石台阶
模型图纸:
▼模型1
▼模型2
▼模型3
▼模型4
▼模型5
▼分解图
功能流线分析图
▼光影通风分析
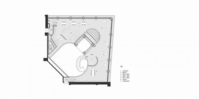
▼平面图
▼平面图
▼楼梯平面和剖面图
▼膜结构平面和立面
▼膜结构平面和立面
▼骨架节点分析
▼立面图
▼立面图
▼立面图
▼立面图
▼立面图
▼立面图
▼立面图
项目信息:
项目名称:长风大悦城 —— 会员空间
项目地点:中国上海项目完工日期:2018基地面积:500平方米建筑面积:500平方米建筑及室内设计:裸筑更新建筑设计事务所 roarc.cn
主持建筑师:柏振琦项目建筑师:盛朦萱
设计团队:薛锦华,吴叶静,陈子酉,诸辰辰
结构工程师:吴传义
灯光设计:降昭龙 (迈骏国际)
施工顾问:张成华 结庐装饰
业主:中粮大悦城

BIM建筑网

























































