位于德国洛尔阿姆梅因的市民中心占据了城镇入口处的一个重要城市位置,为音乐、剧院和会议等集体性活动创造了一个具有文化属性的目的地。该市民中心呈现出一个七角多边形的建筑造型,也正是由于这种多边形的形式,建筑没有哪一面是“背面”,任意一面都可以独自回应邻近城市空间的多样性。尽管如此,市民中心附属的公共广场人为地为建筑创造出一个面向市中心的朝向。
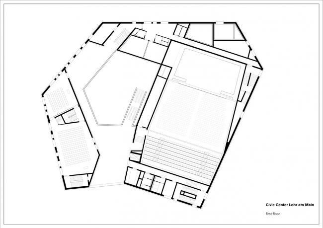
门厅部分两层通高,其宽敞开放的空间欢迎着各方友人,并引导其直接通(BIM学习)向后面的礼堂。礼堂内有大约800个座位和大量的舞台设备。餐厅的设计比较独特,它通过一个可变的餐饮区同时为礼堂和门厅提供服务。建筑的主体量形态巨大且没有多余的孔隙,其内部容纳有多层使用空间,并在每层点缀有不同大小的玻璃窗,在内部和外部之间创造了良好的对话关系。
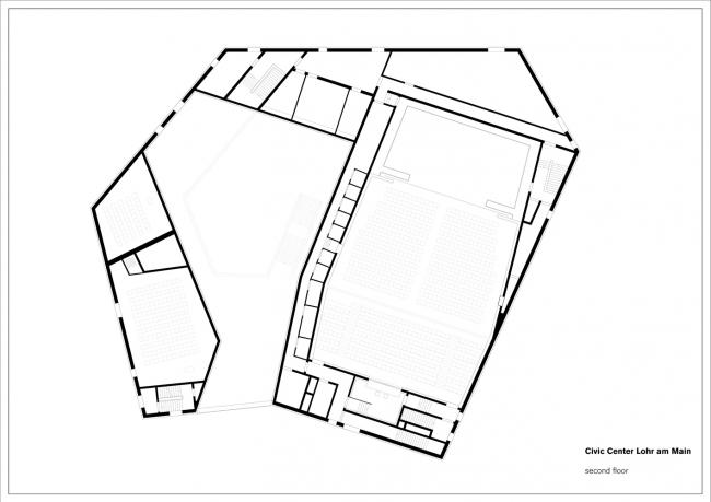
门厅连接着各种市政功能,一楼是大礼堂和小酒馆,夹层是礼堂阳台的流通空间,同时也是多功能和研讨会空间。分散的穿孔窗户可以看到不同的外部景观,它们的厚框架则是参照了沙龙中悬挂风格的照片框。砖砌立面突出了建筑的雕塑形式,同时通过其外部和内部功能使用形成了门厅空间概念的一个重要部分。
这在内部和外部之间呈现出一种矛盾心理,还故意抹去了门槛。与此同时,生动有趣的结构形式,手工铺设的表面使得建筑非常人性化。内部空间中精细雕琢的本地橡木通过其温暖的色调呈现出一种特意的触觉和视觉对比效果。这种天然材料既可以作为单板使用,也可以作为实木家具,还能用作声学镶板,这种多方面的用途使得其在建筑内部烨烨生辉。
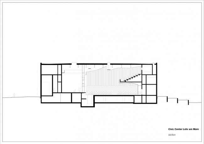
大礼堂内部有一个大立面,通向东部的室外露台,可与礼堂一起用于举办各种活动。几乎(BIM工程师)近乎无缝的深色水磨石地板看起来简洁大方,在视觉上一直延伸到墙壁,又与黑色的中密度纤维板一直延伸到玻璃顶部,创造出一个稳定而坚固的背景环境。色泽明亮、工艺华丽的木质内饰面被放置在黑色背景的顶部,形成了墙壁、天花板和露台的上部空间。
图纸
总平面图
首层平面图
二层平面图
三层平面图
剖面图1
剖面图2
项目信息:
建筑设计:Bez+Kock Architekten
项目区位:德国,洛尔阿姆梅因
项目类型:公共行政楼
主导建筑师:Thorsten Kock, Martin Bez
建筑面积:5000.0平方米
项目时间:2016年
项目摄影:rigida González
制造商:Jansen, Schüco

BIM建筑网

















