卡里尔是一座位于布宜诺斯艾利斯省皮纳马的阿根廷城镇。该城镇中拥(BIM)有天然的松林保护区、沙丘和广阔的海滩,这些自然景观使卡里尔成为最重要的旅游中心和理想的居住场所之一,而且距离布宜诺斯艾利斯市仅有360公里。
▲建筑整体
▲建筑整体
本次住宅项目就是以它所建的城镇命名的。场地的位置设置在距离海边仅有一个街区远的转角地段。由于其位置靠近海滩,住宅周围的环境中缺少树木,以干旱景色为主,这种情况则激发了事务所改善四周生活环境的意志。后侧的地形中有一处高差巨大的陡坡,仿佛一个面朝大海倾斜的沙丘。
▲建筑融于干旱、缺少树木的自然环境中
项目委托中要求设计一个度假性质的住宅,功能包含与社交区相连的主卧室套房、独立的客房区、室外休息室、烧烤区、游泳池和日光浴区域。业主非常重视住宅内的景观视野和如何保护自己免受来自海洋的寒冷东南季风侵袭这两方面的内容。为了满足这些要求,这所房子被安置在地块的最高标高处,高于街道三米。主要区域被安置在上层空间中,下方由客房和服务区体量进行支撑,并为停车位提供顶部遮盖。这样的功能布局最终会形成两个独立的体量,二者通过垂直交通体进行连接。
▲建筑形成两个独立体量
▲连接两个体量的楼梯
▲主卧室
▲厨房
▲游泳池
主楼层的功能排布由业主自己设计完成,因为业主自身也是一名专业景观设计师。该楼层的最大特征是宽阔无遮挡视野朝向,开间方向上左右贯通,中间没有多余分隔,外加从地面通顶的全高落地窗能让居住者从一侧远眺视野尽头的大海,从另一侧俯视私人花园。一楼也能看到花园的景色,但其窗户形式的受限制因素更多,目的在于确保适当的室内温度控制和隐私性。
▲通过主楼层的落地玻璃窗可远眺大海
▲通过主楼层的落地玻璃窗可远眺花园
公共区域直接向木质露台方向延伸,其中半遮盖部分用做烧烤区,设置有室外休息室和用餐区;另外无遮蔽的空间内贴近泳池的一侧设置有晒日光浴的区域。从露台的木甲板上可以俯瞰花园,还可以免受风吹影响,从树丛中的枝丫里还可以欣赏到斑驳的落日余晖。
▲室内公共区域
▲木质露台
主体量顶部另设有露台,俯瞰邻近的房屋还可以欣赏到四周景观。楼梯夹在两堵混凝土墙之间,通向上层的私密空间,私密空间内带有一条混凝土长凳,形成一处私人眺望台,面朝大海,静谧安宁。为烧烤区提供支撑的结构墙还可以保护半遮盖露台和休息区免受从西侧照射来的水平向光线。与此有异曲同工之妙的是悬挂在一楼楼板上的混凝土屏风,既可以遮挡照入主卧室的阳光,又可以过滤掉从露台上看过来的视线。
▲建筑立面
▲在屋顶露台的私人眺台上俯瞰周围的房屋和自然景观
▲夹在两堵混凝土墙之间的楼梯
客房和配套服务用房几乎占满了整个场地,同时也为一侧的主要体量提供结构支撑。设计中面临的一个最大挑战是如何解决另一侧的结构性支撑问题。最终事务所的解决方案是整个悬挑体量的全部荷载集中在一个点上用三角形柱承重。这种柱子的截面呈圆锥形,朝地面方向不断缩小,可以有效释放平面内被占用的空间,比传统直上直下的柱子更节省空间。除此之外,楼板将梁掩藏其中,梁则沿着楼板长度方向延伸。这种结构形式的工作原理与工字梁类似,只不过是将其下翼抬升至与楼板下沿平齐,避免前梁暴露在外。
▲三角形支撑的悬挑体量
▲整个悬挑体量的全部荷载集中在一个点上,(BIM工程师)用三角形柱承重
▲楼板将梁掩藏其中,梁沿着楼板长度方向延伸
▲三角形柱支撑的悬挑体量
▲悬挑体量侧面
主卫生间是二楼唯一的封闭空间,它不但将睡眠区和生活空间连接起来,还承担起结构性作用,将楼层荷载传递到下方的三角形柱上。由于卫生间距离玻璃幕墙的距离较远,只能通过屋顶上的天窗采光,天窗在屋顶露台上通过一条长凳隐藏起来。住宅内所有的边框均采用深色的铜质阳极氧化铝进行装饰,极力缩小存在感,强化虚空间和四周混凝土颜色之间的对比度。
▲卫生间
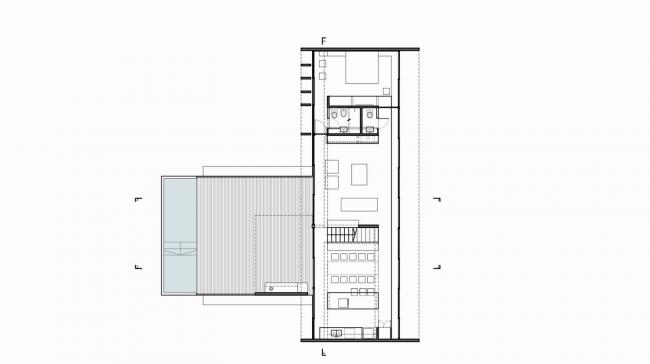
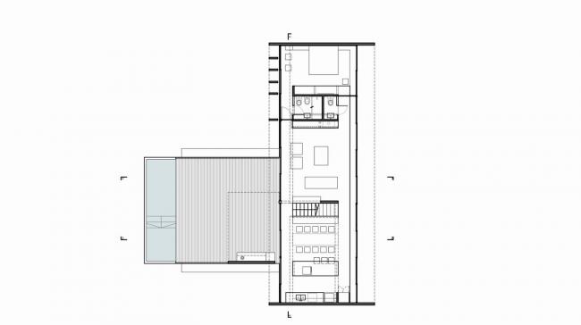
▲二层平面图
▲主楼二层室内
▲二层室内楼梯
▲二层室内走廊
在两个纵向边界上,无论是前侧还是后侧都看不到下梁和倒置梁,因此建筑形成的框景可以从一侧向另一侧自由贯通。两侧立面上都有一条直线形的照明栏杆,加强了体量的水平比例。住在卡里尔房子里的人可以尽情享受这个令人心生安宁的地方,这一点非常重要。建筑的坚固性和景观性都完美地结合在一起。“景观”这个词让事务所想起了这个项目和其他项目共通的设计目标:让房子和周围的自然环境共存。
▲主楼层纵向立面
项目图纸:
▲二层平面图
▲一层平面图
▲剖面图1
▲剖面图2
▲剖面图3
▲分解图
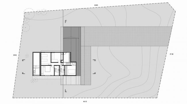
▲总平面图
▲细部做法
项目信息:
建筑设计:Luciano Kruk
项目区位:阿根廷,卡里尔
项目类型:住宅
项目经理:Luciano Kruk
建筑面积:230平方米
项目时间:2018年
项目摄影:Daniela Mac Adden
项目合作人:Belén Ferrand
承包商:Coordinator Fernando Casaux Alsina

BIM建筑网




































