手工制作的砖砌裙房(BIM培训)和有机特色的屋顶设计在一起,建筑将这两种新旧元素结合在一起来回应悉尼未来的特性。这栋26层的塔楼是真正意义上的居住混合型建筑,其中包含了135间公寓,86间精品酒店天空景观套房,8间零售商铺以及F&B名品折扣店。设计中同样包含位于8层楼高的场地纽带之下的一个零售广场,这也重新激活了具有历史意义的Skittle Lane。
设计理念源自于场地的历史文脉。我们仔细研究了拱形的比例以及悉尼历史上使用的建筑材料。该设计在底部有一个厚重的砖砌特征,相反的在建筑上部则使用了更精细,轻盈的材料。出乎我们意料的是,我们收到了大量关于使用传统砖砌结构的好评,这真的让我们受宠若惊。现代化都市中心的建筑往往都是玻璃和钢筋的代名词,而现在人似乎又重拾了将传统方法带回市中心的热情。
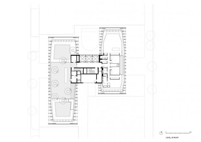
受到旁边重要历史保护性建,红十字协会和安德鲁兄弟厂房筑砖砌结构的启发,并从中提取拱形元素,偶数机制被运用在表皮上,并在裙房和塔楼的多变美学中得以体现。正如悉尼港湾自然的曲线和相邻建筑的砖砌结构,整个建筑的材质和细节都非常复杂并真正反映着悉尼的过去。悉尼大多数区域的建筑都是平顶的。弧形探索了开放屋顶的可能性。我们的设计意图发扬悉尼出名的室外生活方式,而且这也是高层住宅第一次打破陈规。
我们说服城市和客户,将屋顶作为公共便利设施而不是私人公寓,这将带来更多的价值,试想一下,一座人们可以前往屋顶空间逃离城市生活的城市,一个建筑设施社交互动,城市环境图像重塑的场所。一个有机地拱形塔顶特征从周围环境中凸显而出,一个曲线屋顶让塔楼与天空相遇。
屋顶展开了一种新的对话,未来城市激活地上层面和天空层面都有哪些可能性。当你来到拱形的屋顶,你可以看到悉尼港湾成为了城市景观的背景。曲线的拱形屋顶将你与悉尼港湾有机的(BIM教程)波浪线以及其自然环境联系在了一起。
图纸
环境平面图
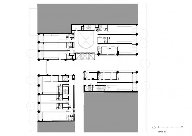
二层平面图
二十八层平面图
剖面图
剖面图
屋顶拱结构细部
细部图
项目信息
建筑师:Koichi Takada Architects
地址:161 Clarence St, Sydney NSW 2000, 澳大利亚
类别:居住建筑
建筑面积:17400.0 m2
项目年份:2018
摄影师:Tom Ferguson Photography, Martin Siegner

BIM建筑网






































