▲水院
▲进入水院前的通道,木饰面与黄铜分割
在沧州郊区,有一片位于自然湿地旁的新建居住社区。业主希望将社区内几间底层商铺从毛胚状态改造为一处禅修馆,定期举办如冥想、瑜伽、花艺和焚香等课程活动,让社区的住户得以从忙碌的日常生活节奏中抽离,放松,观想。虽然社区毗邻一片珍贵的湿地自然保护区,但住区与湿地被公路分隔,而禅修馆的选址位于社区内部最商业的街面上,并面向园区中的一处“人造”景观。这一空间分配上的错位和矛盾成为了项目立题的起点。
▲外立面
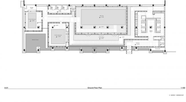
商业街连续的单层商铺体量,为后侧的二层住户提供了开敞的屋顶露台。在六间打通的商铺里,柱梁线性排列开来。在平面的组织上,我们将容纳不同观想行为的房间,作为分割空间的基本单元。弥散分布的体量,将空间划分成不感知原结构的,连续但迂回的“外部”公共空间(走廊,水院),以及暴露原结构的,独立而静态的“内部”观想(BIM设计)空间(课室)。在“内部世界”,每个房间根据各自不同的尺度和性格,分别对应玄关、等候室和更衣间、主课室和小课室、以及洗手间等基本使用功能;而在“外部世界”,抵达课室前迂回的线性路途,是经由身体至心理的前奏铺垫。
▲前台
▲走廊
▲走廊看向水院竹影
▲走廊看向水院
▲更衣室
▲(BIM建筑)檐口提示转向
▲经由几次身体的转向,来到豁然明亮的水院
▲隧道般的入口及玄关
▲首层平面图
围绕“内外”展开的基本空间形制,得以通过平面的组织建立,而剖面的动作,意在配合平面的意图,进一步刻画“内外”空间性格的差异。一片贯穿“内外”的水景,将水院的光线经由水平缝隙反射进来。课室中,四根混凝土立柱从水中升起,轻质的木构容器浮于水面,整个禅修馆,是一处关于湿地上考古遗址的类比,营造出一片观想中的“湿地”景观。
▲大厅
▲大厅
▲大厅
▲大厅
▲手稿
空间的组织围绕如何营造内向的世界而展开。在外立面上,我们拿掉老的门窗,在原结构的柱跨间置入一套用不锈钢建造的金属窗套。窗套整合了容纳空调室外机的凹槽,以及面向商业街的种植池,与原有建筑主体的框架脱离开来。
▲改造前内部空间
由明亮嘈杂的商业街进入室内起,直至到达水院再次感知到柔和的自然光源,眼睛已经过光线由明至暗,再提亮的梯度调试,配合水院两侧界面的语言调动,身体在感官上进入了一处被内化的“室外”空间。
▲水院
▲水院
▲水院
▲水院后部
▲水院回望
▲水院看向门扇中的双层腔体
每个容器与柱梁位置关系的不同,也赋予房间不同的性格,适配相应发生的观想行为:在可以容纳多人的主课室里,四组柱梁序列赋予空间“大殿”般的性格。
▲围绕柱梁布置的等候室
围合课室空间的墙壁,是由轻钢龙骨和轻质木构建造的双层腔体。腔体内侧倾斜,外侧直立,内外界面通过水平檐口构件,收束在飘离地面的高度。腔体内侧水平向的木百叶层层悬挂下来,配合房间中立柱“支撑”和横梁“出挑”的姿态,整个课室仿若“容器”,被粗壮的柱梁“撑起”,飘离于地面,包裹着观想的身体。
▲小课室里的单组柱梁,成为观想者独处时身体的陪伴
▲小课室南
▲小课室西
项目图纸:
▲首层平面图
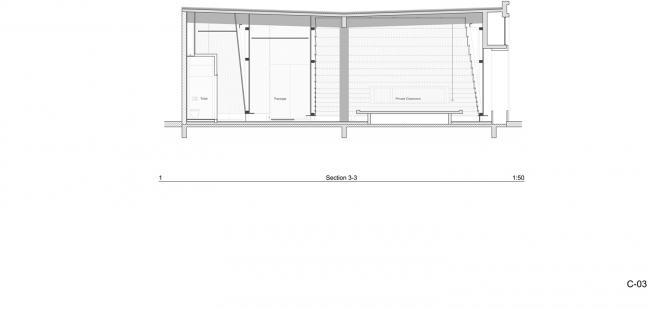
▲剖面图 主课室-水院-窗套
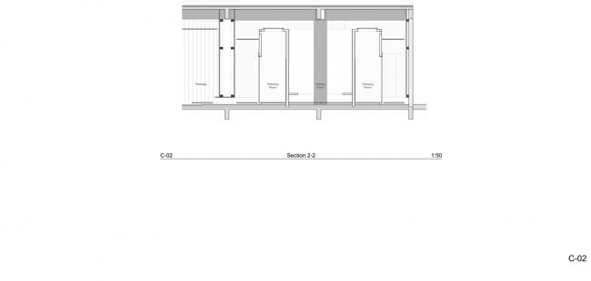
▲剖面图 等候室-更衣室-走廊
▲剖面图
▲水院天花细节
▲木檀条细节
▲手稿
项目信息:
建筑师:丘建筑设计事务所
地址:黄骅,沧州,河北,中国
类别:商业建筑
主创建筑师:于岛,程博,李博
项目经理:叶力舟
合作方:李然,李张君
建筑面积:600.0 平方米
项目年份:2018

BIM建筑网





































