“春服既成,冠者五六人,童子六七人,浴乎沂,风乎舞雩,咏而归。”
—— 陶渊明,字元亮,浔阳柴桑(今江西省九江市)人。
一千多年前,陶公泛舟湖上,寄情山水,描绘了一座理想生活的世外桃源。1500年后,当快节奏的城市生活几近磨灭人们对故乡的记忆,桃源外的恬淡生活,却依然是每个中国人心底一往情深的追寻。而今,这份理想,或许就藏在陶公故乡的这座小镇里——蓝城·云林春风。
图片摄影:任潇媛
择址|一片湖山中国“日内瓦湖区小镇”
自古以来,“临湖而居”的生活就是达官贵族、文人雅士们的毕生追求。美国作家梭罗写道:“湖是神的一滴泪,是大地的眼睛。”而《长物志》中的“居山水间者为上,村居次之,郊居又次之”,更表达了人们对山水而居的不变情怀。从瓦尔登湖到科莫湖,从博登湖到到昆布兰湖,真正的顶级湖区本就屈指可数,而如蓝城·云林春风这样兼具生态和生活价值的湖区小镇范本,更让人魂牵梦萦。
图片摄影:任潇媛
江西省庐山西海,国务院钦点的第六批国家级风景名胜区。山岳湖泊型的特大景区之中,集结了国家4A级旅游度假地、全国佛教样板丛林、国家森林公园……这片蔚为辽阔的云山湖海,四面冈峦起伏、林木青润,散落着大小不一的1667座岛屿,如果从湖泊里面所囊括岛屿数量来看,已经超越了杭州的千岛湖。青云映海,透彻如境,泛舟海上,似翩然天地间。一曲渔歌,诉不尽此间物华天宝。山风清扬,每一次呼吸都是身心的净化。恬淡闲适如西海,只羡农家不羡仙。
重返|归去来兮寻得诗情画意
在庐山西海的绝美景致里,蓝城·云林春风就像陶渊明笔下描述的那样,依山而建,畔湖而居,未来将打造为集温泉康养、会议会奖、农科农旅、休闲度假于一体的文旅小镇,也是蓝城首座湖区小镇。作为面向城市旅居人群的旅游度假综合园区,设计以原有生态为基础,顺延地势走向,将地块分为精心养生、居家养老、休闲养老、旅居养生四大组团。
通透的户型设计、开敞的景观格局、融合古典的园林尺度,通过核心景观带相互串联,形成点、线、面相结合的园区脉络。作为寄情山水的又一力作,我们希望营造的,不是符号化的中式建筑,而是直入人心的诗情画意。
图片摄影:任潇媛
重塑|遇见美好漫步春风十里传统街巷空间多蜿蜒而悠长,且因其间微妙变化的小尺度氛围,成为人们心中不可磨灭的记忆。蓝城·云林春风,旨在通过“街巷里弄”的传统印象,重绘这一墙之间,邻里聚落生活万千的美好。
设计通过对传统街巷尺度的深入研究,将“院落式布局”的中式精髓运用于总图规划中,园内聚落组团仿佛自然生长而成。当人们倘佯其中,由街巷而至私家院落,途中,假山、绿植、水声、鸟鸣,曲折变幻,视觉层级变化,步移景异,每一次归家都如浓淡相宜的微观桃源。
图片摄影:任潇媛
重拾|中国式居住无庭不成居
一院一门(BIM)一窗,一花一木一砾。蓝城·云林春风,以中国传统园林为蓝本,将“无庭不成居” 的中国式居住理念纳入设计核心。氤氲、淡雅的粉墙黛瓦,高低、叠落的屋脊走向,在私人庭院内将画桥亭榭、池廊莳花一一尽藏,壶中自有天地。从单体上来看,融合现代生活场景的空间体量,结合通透的门窗设计,以植物、花窗、小品、铺装等展现四时意境。
图片摄影:任潇媛
图片摄影:任潇媛
重构|融汇古今传统文化的当代表达
当传统的建筑形制已无法满足现代的生活需求,蓝城·云林春风,以传统园林为形,融现代生活之境,试图实现传统文化的当代表达。
图片摄影:任潇媛
传统繁复的雕梁画栋在这里被重新解构,并以简洁、精雅的现代装饰元素替代。在一墙一瓦之间,传统的中式元素与现代的精工材质达成了巧妙的兼糅。比如,传统的木构因厚重而易损,被现代工艺替代,传统木构双椽挑檐则被调整为混凝土出檐单椽;传统中式建筑因采光不足而造成压抑感的缺憾,也在(BIM工作)云林春风敞亮的门窗设计中得到解决。
图片摄影:任潇媛
图片摄影:任潇媛
此外,原本繁复的美人靠(吴王靠),也在设计中得到进一步优化。这样的做法,既保留了传统空间的韵味,又将建构成本控制在相对合理的范围内。种种细节的创新,形成了蓝城·云林春风独具一格的场景氛围营造。至此,中国式的居住梦想也在此有了更轻盈的表达。
图片摄影:任潇媛
理想|心若云水间处处桃花源
如果说中式院落承载着人们对传统居住美学的美好向往,那么当代建筑师所探寻的“关于传统文化的当代表达”,则是对这一诉求的诚挚回应。蓝城·云林春风,作为团队在文旅小镇版图的一次突破性尝试,旨在怀揣对生活、对设计的执着追求,将久匿于人们心中的中式情怀得以充分描绘,更重要的,是将传统文化意境与当代生活理念相融相合。若在这方天地,人们能邀左邻右舍闲坐一起,谈天说地;几家孩子在一起嬉闹玩耍,谦让有礼;邻里往来共邀赏花观景,共享比亲友更亲切的生活场景,便是设计的原初体现。
图片摄影:任潇媛
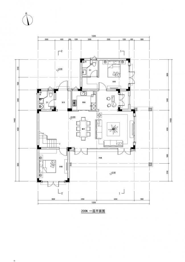
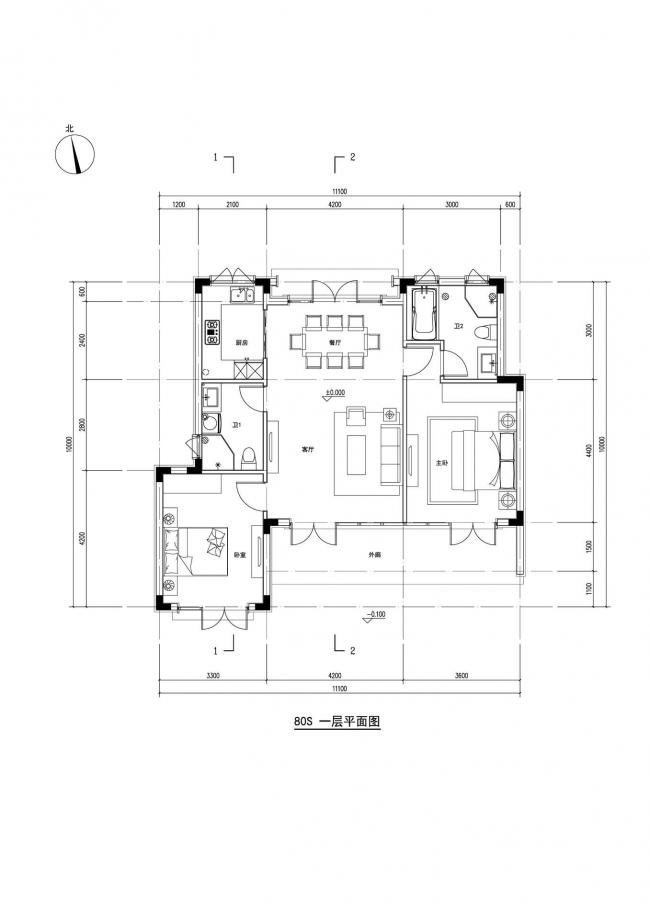
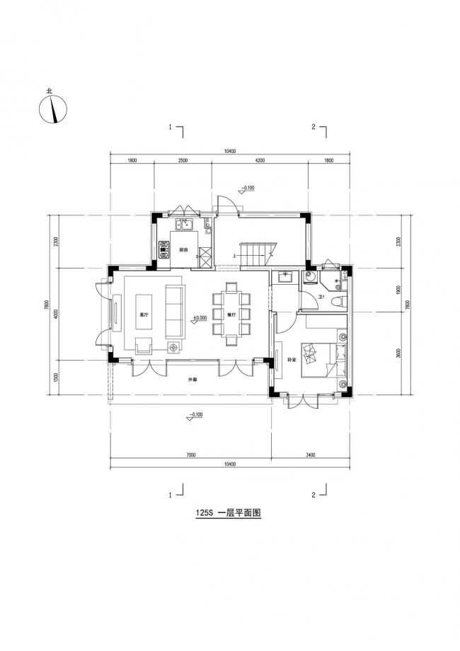
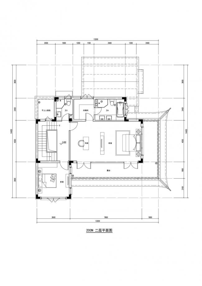
项目图纸:
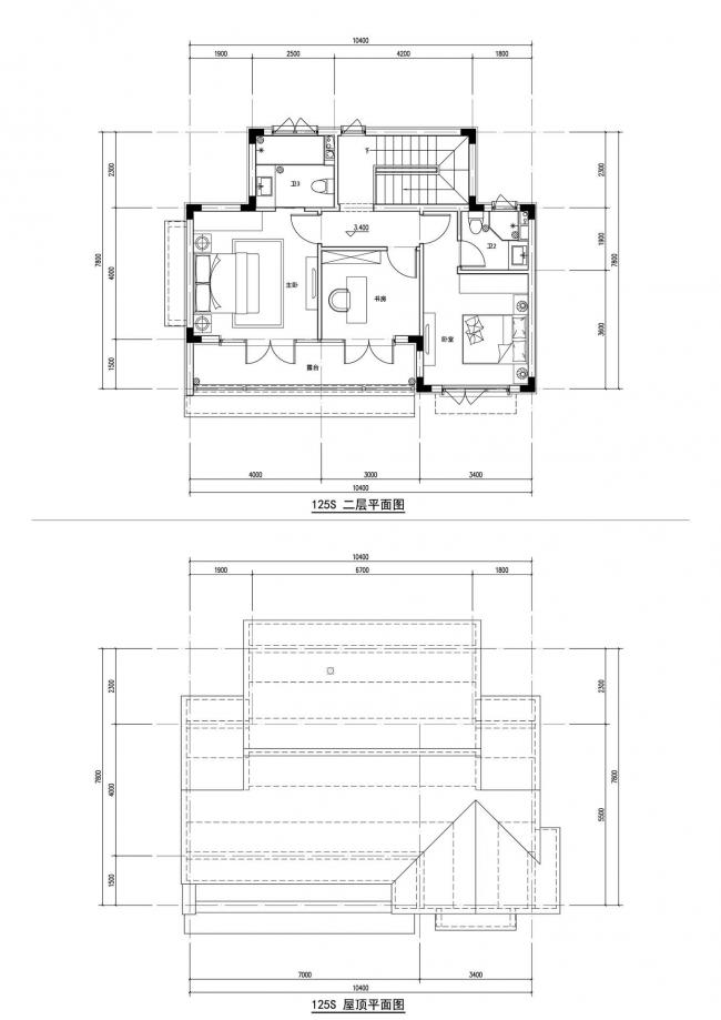
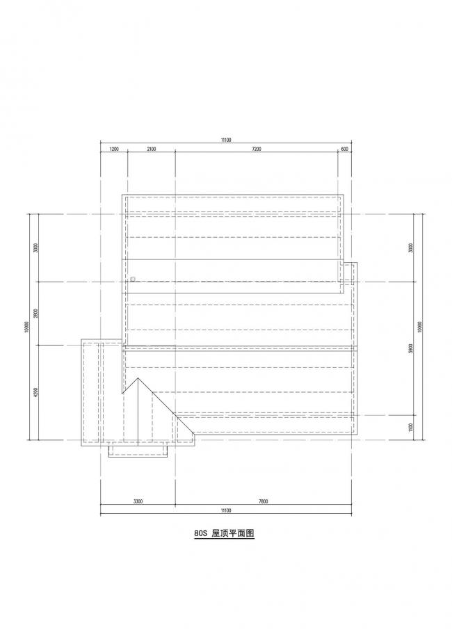
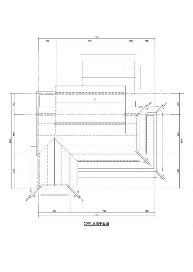
平面图
平面图
平面图
平面图
平面图
平面图
平面图
剖面图
剖面图
剖面图
立面图
立面图
立面图
立面图
立面图
立面图
项目信息:
建筑师:浙江青墨建筑设计
地址:庐山西海风景区, 永修县, 九江市, 江西省,中国
类别:酒店
主创建筑师:余刚、鲍培培
设计团队:胥小斌、赵怡、路璐、舒晨、林近、朱俊辰、 左迎辉、 郑美花、 郭丽梅
建筑面积:50656.0 平方米
项目年份:2018

BIM建筑网





























