该教堂位于中国一线大都市上海新外滩城市开发区入口的南角。这一独特的地理位置使该项目成为通往新区国际居住区的天然门户,同时该建筑也是城市规划中沿黄浦江而建的带状公园的一部分。地块西侧靠近地铁等市(BIM工程师)政设施,这就决定了地块的几何形状,具有明显的纵向特征。
该项目的功能空间通过一条带顶的通道将公共空间和宗教功能彼此分开,这条通道强化了进入教堂的仪式感,并且为室内空间引入必要的通风。三角形钟楼在结合底部台阶,增强了教堂作为城市地标的作用。
主要礼拜室的中央空间强调了其作为一个社区空间的象征性特征,该空间干净开敞、明亮开放,通过平衡的体积和表面关系,将最佳的声音和视觉特征整合在一起。
教堂与公园直接相邻的(BIM学习)一侧有一个巨大的公共楼梯,可以直接进入二层的教会服务空间,再引导游客通过蛇形的通道向上到达建筑的屋顶花园:从这处自然观景台上可以俯瞰公园和黄浦江,同时也会让我们想起欧洲大教堂(如米兰、巴塞罗那或巴黎)可上人屋面的历史传统。
项目图纸:
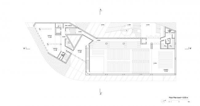
平面图
立面图
剖面图
手绘草图1
手绘草图
项目信息:
建筑设计:Ábalos + Sentkiewicz arquitectos
项目区位:中国,上海,浦东
项目分类:教堂
主导建筑师:Iñaki Ábalos, Renata Sentkiewicz
建筑面积:2837.0平方米
项目时间:2018年
项目摄影:Zhang Yong
微信公众号:xuebim
关注建筑行业BIM发展、研究建筑新技术,汇集建筑前沿信息!
← 微信扫一扫,关注我们+

BIM建筑网


















