Cortezza 大楼位于波哥大( Bogotá )北部的93公园园区内。该地区具有各种复杂的使用功能包括大量办公写字楼以及各种规模的商业贸易。除此之外,此片区还有很多各种类型的旅馆。
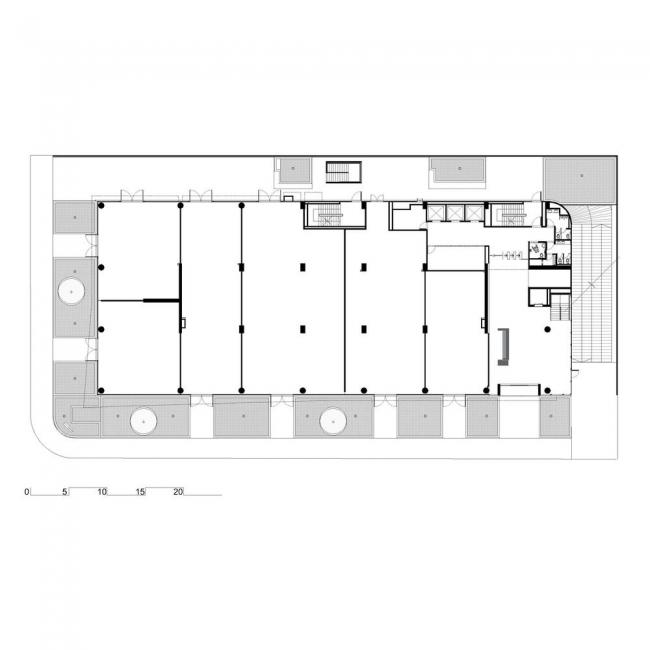
该项目通过统一体块的构成寻求在转角地段建立与现存建筑的直接关联,转角部分的建筑面向城市开放,并在较低楼层的两面有零售用途。
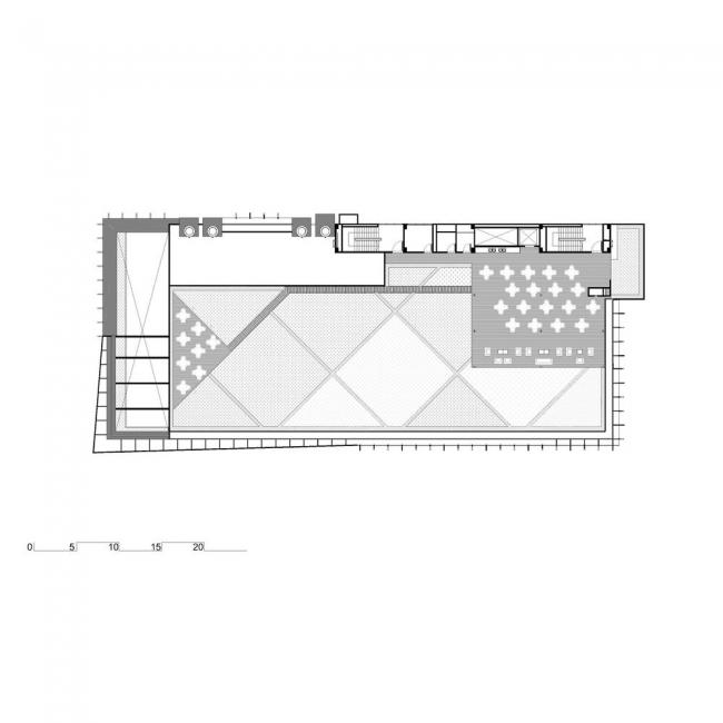
建筑包含三层地下部分以及七层地上部分和露天平台。接待厅位于一层,空间因采用自然材料覆面的双层通高天花板、地板和墙面而显得独具特色。天花板所采用的松木也代表了这栋建筑品牌的名称: Cortezza 的灵感即诞生于唤醒大地的树木之声中。
木材与自然石材形成了对比,如接待室的双层通高墙面上的石板以及建筑各层公共区域中的大理石地面。在通过选择材料寻求自然语言的同时,我们也试图在照明方面寻求简约的配置。建筑拥有双层立面作为午后有可能产生的升温现象的缓解措施。
图纸
项目信息
主创建筑师 VP DE(BIM学习)SARROLLO – TERRANUM
地点 Cra. 14 #93-68,波哥大,哥伦比亚
面积 18000.0 m2
项目年(BIM)份 2018
摄影师 Llano Fotografía
厂家 HID Global, INMUNIZADORA SERRANO GOMEZ, Spazio W, Porcelanosa Grupo, GRAMAR, Apice
结构计算 CNI INGENIEROS
照明设计 María Teresa Sierra MTS
微信公众号:xuebim
关注建筑行业BIM发展、研究建筑新技术,汇集建筑前沿信息!
← 微信扫一扫,关注我们+

BIM建筑网





















