项目的主要目标是将一个理想的温泉浴场和谐地融入到Lidzbark Warmiński地区的自然景观中。设施的“氛围”和适应所有年龄段人群的人体工程学设计也是项目要实现的主要目标之一。
建筑的外形被分成几个要素,依据其内部功能区的需要而做出调整。整个建筑群内部各个部分大量采用玻璃以向周围地区展示其魅力。
建筑师们建议将建筑内部划分成一个个“房间”。每一个“房间”都是用Warmia和Mazury地区的特色建筑材料完成的。
大楼的主入口是一个玻璃盒中枢,在那里大厅将建筑分成三个部分:主体设有游泳池和热水浴,第二部分设有会议厅和餐厅,第三部分则是一所酒店。从入口大厅可以直接到达酒店部分。
酒店依据自然坡地地形被设计成阶梯状。
在第一层的会议部分被分为办公室和会议室。在这一部分同时有更衣室,一个购物商场,厕所和一个配有餐厨设施的餐厅。在负一层,是一个酒吧俱乐部,保龄球室和一个音乐俱乐部。除此以外,负一层还有一个配有33个停车位的停车场,一个为雇员准备的社交区域和设备室。
整体鸟瞰
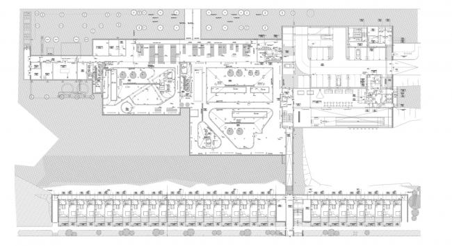
项目图纸:
总平面图
一层平面图
地下一层平面图
立面图
剖面图
剖面图
项目信息:
建筑师:Plaskowicki + Partnerzy Architekci
地址:Kąpielowa 1, 11-100 Lidzbark (BIM工程师)Warmiński,波兰
类别:温泉
主创建筑师:Piotr Płaskowicki, Maciej Dołhun, Izabela Baron-Kusak, Katarzyna Gołębiewska, Katarzyna Gołębiewska, Krystian Jasiński, Joanna Krysiewicz, Natalia Wróblewska, Piotr Krajewski
业主:County of Lidzbark Warmiński
建筑面积:14528.0 m2
项目年份:2014
摄影师:Piotr Krajewski
厂家:Rockfon, N(BIM设计)ova Gala, Honeywell, Weber, Aluprof

BIM建筑网



































