常州旭辉铂悦天宁生活艺术馆位于常州,是自古以来的江南重镇(BIM学习),保留了人们对江南建筑的生活寄托与精神联系。
设计有两个较大局限性,一是地块位于高层组团密集社区内,用地局限;二是前期需要完成销售中心的功能,后续要转为社区中心。带着这两个限制,设计师对建筑与场地的关系进行了再思考,决定从“江南式栖居”出发,打造展示区设计。
江南式栖居有两个层面,第一是打造民居。江南民居是以屋面、天井、墙体为构建组合而成;二是江南园林,既是宅,又是院,是可赏、可玩、可居的一个场所。
示范区的展示功能是单一动线,需要串联起不同的功能,与江南园林中的游园路径不谋而合。在展示区的游园路径中,需要解决人在其中的视线转换,以达到体验不同场景的目的。用这样的转换与渗透,让行人在其中不知不觉的进行了游园的体验,同时也可以体会到中国江南传统栖居的感受。
进入展示区先经过一片竹林,隔绝了城市喧嚣。转过竹林,两道抽象墙体与跨越石桥,昭示宅院与园林的入口。主要功能空间为模型展示区域,通过墙体与天光的转换,让人在不同位置可以体验到跟外部不同的景色转换:有水池、天光、墙体,创造了江南建筑中巷道备弄的感觉。备弄实际上是宅院中的辅助流线,在轴线外侧供佣人行走。在我们的建筑中,希望把空间以一种更有趣的方式进行展示。
在这个项目中,我们希望通过后期的运营,展示区未来可以改造成社区文化展示或者小型美术馆。为达到这个目的,我们在设计过程中,要求动线设计与未来艺术馆或者美术馆的动线相结合。所以空间室内效果、灯光设计,按照美术馆的要求进行设计。未来展示区前场将会拆掉,剩余四个展厅。这四个展厅天然采光各不相同,用四种不同采光的空间打造未来博物馆。
江南民居其实是从材料到构造的一种装配建筑艺术,它的墙体、地面、屋顶、天井、水面,都是单一的材质,白墙、石砖地、木屋面,这些材料(BIM建筑)进行组合与构造,形成江南民居。在这个设计中,我们把建筑拆分成构件,每个构件赋予相对完整的材料。
设计图纸:
总平面图
一层平面图
地下一层平面图
屋顶平面图
剖面图
入口立面
水院内立面
背立面
檐口设计
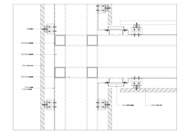
两种石材交接
石材底部交接
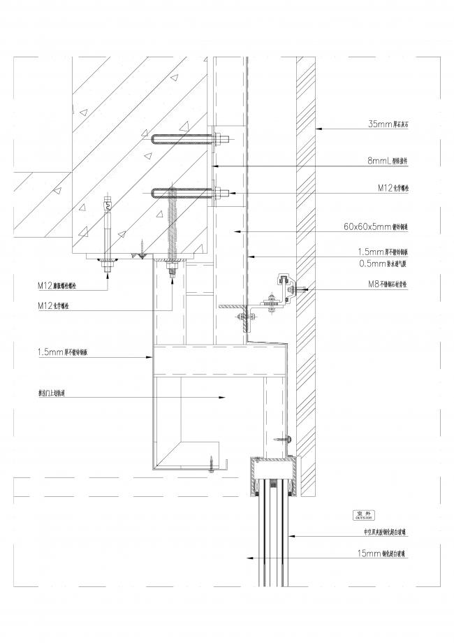
石材与全玻幕墙
项目信息:
项目名称: 常州旭辉铂悦天宁生活艺术馆
项目地址: 中国江苏省常州市
设计单位:水石设计
设计部门:设计三部
设计团队:杨纪华、朱梁斌、张佳颖
设计顾问:沈禾
工作内容:建筑设计、规划设计
建筑材料:石材铝板玻璃幕墙
项目完成年份:2019年
项目规模:大区149 000㎡示范区2600㎡
建成状态:示范区建成,大区在建
摄影师:胡义杰
业主团队:旭辉集团苏南区域设计研发部

BIM建筑网































