Studio Malmö位于瑞典南部活力之城——马尔默的中心城区,是一个面积约22000平方米的港口综合体开发项目。14层的建筑中,不仅容纳有办公、会议、餐厅、咖啡吧、活动区和零售空间,还包含一家酒店和空中酒吧。作为马尔默港口再生工程的推动剂之一,建筑将以一个生动的焦点和地标性建筑,丰富瑞典第三大城市——马尔默的城市生活。
Studio Malmö的竣工意味着马尔默人工岛Universitetsholmen完成建设。项目坐落在马尔默内港入口,是统一该区域的一个元素。设计植根于斯堪的纳维亚传统美学,建筑简洁且具有辨识性。建筑表达是一种清晰的几何形态,旨在与周边的当代和历史的建筑相(BIM设计)融合。项目还设计有一个面向海港和市中心的全新公共广场。
建筑首层的咖啡厅、零售商店、活动及展(BIM建筑)览区域,均可从建筑的海岸或街道侧到达,并面向建筑的中庭广场打开。通过方形的中庭,宽敞的木制大楼梯可作为各种活动的平台,并通向高层。在这里,还能够看见会议、办公、会客空间,酒店以及空中酒吧。开放式办公空间由中庭串联起来,这不仅可以激发跨专业合作,还能使建筑中的各种功能空间一览无余。
酒店拥有95间客房,并在屋顶设有能够欣赏马尔默城市和港口壮丽美景的特色餐厅、酒吧。建筑顶层的鸡尾酒吧、餐厅和空中酒吧,约250平方米,能够俯瞰马尔默城市全景。
建筑立面由深色砌砖与白色混凝土窗框形成对比。室内的暖色材质为这个亲人的场所传递了安全感。
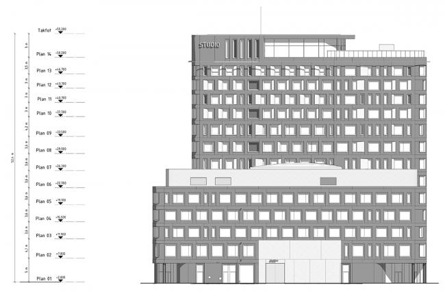
项目图纸:
▲南立面图
▲北立面图
▲东立面图
▲西立面图
▲剖面图
项目信息:
建筑师:SHL
地址:马尔默,瑞典
类别:办公建筑
建筑面积:22000.0 平方米
项目年份:2016
摄影师:Adam Mørk
工程师:Tyréns/ Skanska Stormsystem/ Skanska Teknik
景观设计:Tema Landskab
承包商:Skanska Öresund
建筑合作方:Temagruppen
委托方:Skanska Öresund
可持续发展:Pre-certified LEED Platinum

BIM建筑网





















