综合(BIM学习)体育馆位于浙江大学海宁国际校区北侧运动区的核心,占地面积9211.98m2,总建筑面积14785.07m2,包含室内标准游泳池、标准篮球馆、综合训练馆,具有羽毛球、壁球、乒乓球、训练房等综合训练功能。建筑布局由南北两馆组成,中间组合了2片有钢木膜结构覆盖的半室外网球场,以及面向东侧400 米田径场的户外观众看台,三者通过大台阶和大平台组合成一个小型体育综合体。
设计追寻“形式追随功能”的朴素原则,充分体现 “体育仓库”的原创理念。设计考虑了建筑四周的规划关系,兼顾了来自南侧的主要人流,学生多种社团及体育活动的可能性,以及东侧与标准体育场、篮球场的看台与空间的兼容关系,试图营造高效的室内空间,提供有趣包容的户外场所,呈现合理便捷的人流关系。
半室外网球场所旨在补充户外网球场雨天不能使用的缺陷,上部覆盖的钢木膜结构,跨度达45.6 米,为多榀双向拱形结构,结构形式轻盈独创,建筑形式新颖优美。其中的大跨度钢木结构,旨在追求体育建筑力与美的结合表现,而膜与拱形钢木结构的排水措施和收边节点,体现了建筑师与结构师、膜结构厂方以及现场施工人员的高度配合与协同,最终不露痕迹地解决相关节点设计,呈现了结构成就建筑之美的设计追求。
田径场西侧的连接平台,以及覆盖看台的简洁的钢膜结构罩棚,成为了学生们课余集会或闲暇休息的良好场所,广受师生欢迎。
由体育馆、网球场和田径场看台围合的内部庭院,创造了一个富于活力和多种可能的“运动内街”与庭院,为学生们的课外活动提供了更多的可能性。
综合体育馆自2017年投入使用至今,功能使用反馈良好,空间灵动,平台交错,契合于学生的各种户内外活动,训练用房的灵活性布局极大地有利于体育教育多种方式与用途的组合和项目变化布置,为高校体育教育的丰富性和国际化提供了样板。
设计之初提出“体育仓库”的通用性与运动建筑需要表达的结构性相结合,以简洁高效的空间组合为原则的南北两个盒子,采纳了整个校区的红色清水砖基调,但演绎为扎实稳重的同色陶砖,开窗简洁现代,且进一步去除了繁琐的装饰艺术,顺着校园内环向外,演绎出逐步加强的现代风格,(BIM教程)诠释了“和而不同”的整体设计理念。
同一个校区,基于不同的规划区块和相异的功能特质,创造相对的文化关联与视觉联系是设计的用意所在。综合体育馆,显然是融于其中并极富特色的。
设计图纸:
▲总平面图
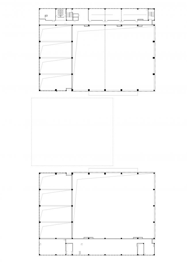
▲地下三层平面图
▲地下二层平面图
▲地下一层平面图
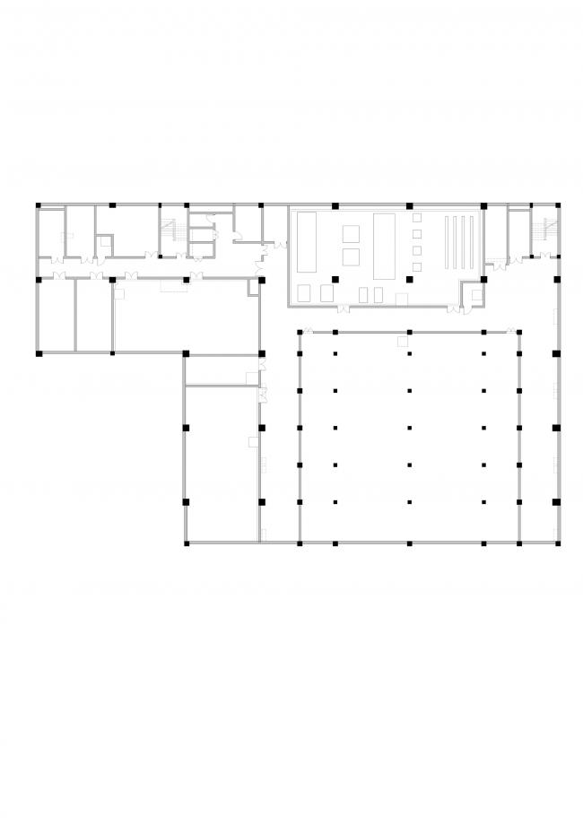
▲一层平面图
▲东立面图
▲南立面图
▲剖面图1
▲剖面图2
▲综合体育馆功能分析
▲钢木膜结构详图
项目信息:
建筑师:浙江大学建筑设计研究院
地址:海州东路718号,海宁,浙江,中国
类别:教育建筑
主创建筑师:董丹申,胡慧峰
设计团队:陈娴,肖志斌,翁赟,王靖华,周欣,李平,杨文征,杨毅,刁岳峰,杨国忠,林华,白启安,朱娟娟,张毅,楚冉
建筑面积:14785.07 平方米
项目年份:2017
摄影师;赵强
施工单位:浙江大学建筑设计研究院
客户:海宁市社会建设发展投资集团有限公司

BIM建筑网
























