背景
中国的快速城市化充满挑战,也提供了前所未有的机遇。经历了2008年国家竞技体育场馆建设的狂欢后,中国的体育建设重点逐渐回归体育运动的本源,为普通群众创造活动和交流的场所。这些新的城市成分不再是过去城市迅猛发展潮流下巨型住宅区和商业区的锦上添花元素,而开始成为引领城区发展的催化剂。
扬州规划以老城保护为核心,建立绿化缓冲带,向外发展新区。南部新城开发区希望充分发挥后发优势,利用新区体育园作为启动点,创造与老城区有联系但又有自身特色的片区,带动城市的南向发展动力。
▲鸟瞰平面图
▲区位图
项目基地位于扬州市南面经济技术开发区内,恰好处于以瘦西湖景区为核心的扬州传统城市中心的中轴线上。
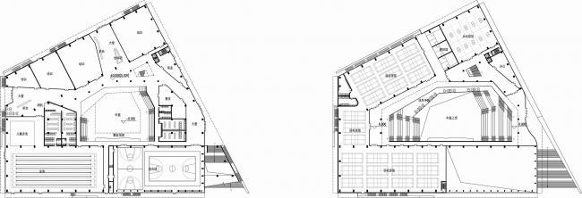
▲扬州南部新城体育园平面图
▲扬州南部新城体育园 剖面图
策略
在相对紧张的用地,如何创造出富有吸引力的公共空间,鼓励人与人的交流?如何提升建筑与景观的互动,创造有历史根源并能代表新城发展的形象?如何定义适合中国未来生活方式的群众体育建筑类型?我们提出了以下策略:
▲方案生成
▲南部体育园(插画)
1. 聚——集中节地的规划策略
基地用地呈三角形状,四面临路。用地坐拥便利的交通资源,可达性强。且北边紧靠生态廊道,拥有较好的生态环境。在总体布局上,本设计采用大开大合的手法,集中布置场馆体量,节约建设用地,以让出开阔的绿地给城市展示广场及户外活动用地。
▲鸟瞰
▲场地规划
2. 连——景园一体的景观策略
北侧的“运动森林”为主要的户外活动场地。作为主体建筑与北侧公园的过渡,跑道形成的空间纽带串联起了整个空间。围绕中庭在二层有一条空中跑道,跑道同时通过外部的台阶与室外的跑道互相串联,沿着室内跑道可以观赏室内的体育活动,中庭表演,沿台阶到达室外又可以享受绿化景色,新鲜空气。
▲创意地景
▲运动场
▲林中栈桥
3. 围——主辅分离的建筑策略
建筑辅助功能如设备疏散等空间安排于体量外沿,围绕主要功能体量布置,从而使场馆内部活动空间更为灵活自由,满足运营中功能变动的需求。这种原型可以追溯到路易斯康的服务空间和被服务空间的分离,以及皮亚诺和罗杰斯的蓬皮杜中心的设备外置。
▲围
4. 透——延续传统的文化策略
传统手工艺剪纸为著名的扬州特色装饰语汇。我们将其进行抽象化的表现,并通过参数化手段在建筑立面上实现传统文化与现代技术的完美融合。
▲窗花
5. 折——体现时代的修辞策略
路易斯·康的服务空间和被服务空间原型在方案中得到进一步发展,服务空间的形象展现不再是次要的和辅助的表达,而是得到了清晰表现自我的机会。这些形式引入了中国文化的要素,提取了古典园林中折廊的意向,将主体功能与辅助功能,室内活动与室外活动,建筑形态和文化内涵融合成一个有机的整体。在材料上我们选择了深灰色铝板,硬朗的现代感充分展现现代体育建筑的性格:动感的能量盒子。
▲折
6. 汇——灵活互动的功能策略
相对于竞技体育建筑,群众体育建筑在中国是一种相对新的建筑类型,对于体育功能的定义,理解和空间配置方式提出了新的要求。我们提出了泛体育功能的概念,特点是自由空间,交流空间和复合空间:主要活动如多功能厅,泳池,羽毛球篮球等功能围绕共享中庭布置,最大限度地鼓励不同功能在视觉上和行为上的交流和互动,充分体现群众体育活动的行为特征。中庭为公共复合空间,可以组织社区活动,小型演出等活动,平时可以作为攀岩场地和轮滑场地使用。
▲功能策略
可持续的设计
● 城市发展的可持续性:设计一方面延续历史文脉的符号,另一方面成为带动新城区发展的节点。
● 社会生活的可持续性,设计强调社区优先的体育活动。中国的体育建筑从竞技功能扩展到群众活动功能后模糊了建筑类型的界限,这种新的类型需要同时具有传统竞技体育建筑的大跨空间,临时坐席和集中人流集散的特点,同时满足多样化的群众参与和泛体育休闲文化等新生活方式的要求。多功能混搭,复合转换功能,这些将产生新的建筑空间和建筑形式,甚至新的类型。
● 文化思想的可持续性:建筑学的发展离不开建筑原型的总结和沉淀。本项目继续了对服务空间和被服务空间的原型思考,经过功能化和艺术化,服务空间与建筑表皮巧妙结合。
● 经济运营的可持续性:运营上以市场运作代替政府补贴。
●(BIM建筑) 审美体现的可持续性:立面用现代美学表现传统窗花意象。
● 环境能源的可持续性:设计结合了光伏太阳能屋面系统和被动式通风等技术,减少能耗,集中规划布局,节约用地。
景观实景图
其他景观效果图
项目信息:
项目名称:扬州南部新城体育园
设计单位:柏涛建筑设计(深圳)有限公司
公司网址:www.ptadesign.cn
联系邮箱:[email protected]
完成年份:2018年
用地面积:42809m2
建筑面积:33270m2
项目地址:中国江苏省扬州市邗江区
摄影师:高钰刘理辉
主创及设计团队:施旭东 展汹涛 孙维 林大平 阙晓锋 徐功祥 林菁
景观设计公司:深圳市柏涛环(BIM培训)境艺术设计有限公司
客户:扬州市临港体育发展有限公司
材料:铝单板;超白高透玻璃;LOW-E中空玻璃

BIM建筑网










































