如东体育中心位于江苏省南通市如东县新区,项目包含一个体育馆(含游泳馆),健身中心及一个综合性体育场。作为新区文化核心的一部分,其与南侧的文化中心组群一同构成新区的标志,并将成为驱动新区发展的重要动力。项目于2012年展开设计竞赛,(BIM设计)同济大学建筑设计院的方案从中胜出,2018年一期工程竣工。
开放与围合
体育中心设计强调空间开放和公众参与,鼓励全民健身。因此整体规划方案并未以建筑为核心,而是利用建筑围合出供市民活动的体育公园,并与南侧文化中心有机的形成一个整体。开放的公园拉近了市民与健身设施的距离,并为城市建构了一个充满活力的景观空间。体育场和体育馆通过二层天桥实现步行交通的连接。
白色巨浪
如东临海,这里天高海阔、疏朗开阔的地理风貌带给设计无限的灵感。舒展流动的建筑好似起伏翻滚的白色巨浪,曲线造型烘托出体育的活力与优美。建筑外立面材料采用白色金属板,并在局部以渐变的镂空图案作为装饰,为室内带来丰富的光影效果。天窗将阳光引入场馆内,室内明亮疏朗。外部渐变的主题进入室内,通过不同形状的主题强化各个单体的特征。
紧凑与共享
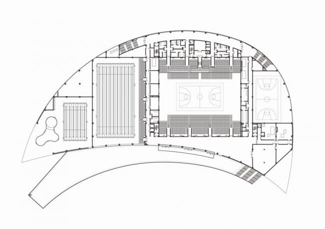
作为县级体育场馆,如东体育中心并未一味追求功能的全面,而是一直贯彻“紧凑共享”的设计宗旨。为避免昂贵的体育设施重复建设,我们在前期设计阶段建议将体育馆和游泳馆合二为一,这样就可以将两个场馆的比赛和训练用房共享,最小化了建筑规模。
在体育馆2万平米的建筑体量内,容纳了一个4000座体育馆,一个训练馆,一个50米标准泳池(带200座观众席位),一个25米训练池和一个儿童戏水池。并且考虑到各场馆对于空间尺度的不同需求,用一个中间高两边低的月牙形体将各个空间紧密的包裹在一起,避免出现圆形体育馆空间浪费的现象。
拥抱变化
体育建筑的多功能开发是大势所趋。通用空间、齐全的灯光音响设施非常便于举办大型的文化商业活动。我们乐于看见空间的高效利用,在设计中拥抱未来的变化。体育馆和训练馆底层采用活动分隔,移门打开可形成一个通透的整体空间,可用于县级的会展活动。
游泳馆分为夏季模式和冬季模式:夏季人多,三个水池同时开放。冬季人少,可通过玻璃(BIM)门和隔墙将池区一分为二,仅开放水量较小的部分,同时减少空调和地暖的负荷。健身中心室内中庭同样可用于展示发布等商业文化活动。健身中心所有的功能房间均为规整的矩形,在未来投入使用后可以通过二次装修实现各种功能的转换。
设计图纸:
▲总图
▲体育馆平面图
▲体育馆剖面
▲健身中心平面
▲健身中心剖面
项目信息:
建筑师:同济大学建筑设计研究院
地址:如东, 南通市, 江苏省,中国
类别:健身房
主创建筑师:王文胜,李恒
建筑面积:70000.0 平方米
项目年份:2018
摄影师:邵峰
厂家:DAIKIN, AACER

BIM建筑网


































