项目坐落在意大利贝加莫的一个小镇上,项目在1997年就开始进行前期设想,旨在为在科尔诺新图书馆和礼堂的实施做准备。
项目位于一个面积较大的区域,这意味着此建筑将成为学校和社区的综合服务设施,并假定其中将会进行不同规模的活动的公共空间,这个空间中可以设计一个新的广场,一个现代的剧院及其外延和楼梯部分,这是对传统古罗马梯形座位的重新解读:一个冥想的空间。
这个项目占地面积有2,000平方米,是一个附着用铁氧化物着色的混凝土的庞然大物,整体以浮雕字母作为装饰。从广场看,就像是一本翻开的书的意象,在页面上雕刻有文字,这样的做法为赤裸的水泥表面增加了质感。
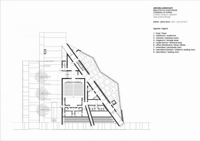
项目在建筑结构上,被一条双层水泥墙界定的长廊划分为两部分,长廊在视觉上连接着中学和后面的广场,并明确了两个不同的部分,包含在这两个结构中的主要功能分别是礼堂和图书馆。
两个不同的功能区必须符合消防规范,两个功能分区之间需要明确分离,为他们提供一个区域过渡。这样,中央走廊具有了结构功能并且有植物覆盖的阅读空间,而其两面40cm厚的混凝土墙组成了承载结构,同时为空调系统,以及电和消防系统的主干线路提供了空间。(BIM)
一系列直径为200mm的PVC管在施工期间插入混凝土墙壁,以便定期换气,确保客房内空气完美的分布。在中央走廊下的地下室,有一段相当长的、宽敞的、并且有金属型材组装书架的图书仓库。
该建筑里技术含量最高的就是采暖、空调以及制冷系统。通过伸出屋面的路径与着色混凝土内部创造出新的路径结构,与附近的中学相连接。入口的门厅设有售票窗口和等候室,允许礼堂和图书馆的人流通过走廊直接流动。
礼堂位于楼梯下的空间,是一个两层高的空间,可容纳约200人,内部被工业樱桃木完全覆盖,以确保最佳的声学效果。在舞台后面较低的部分是更衣室和仓库。
走廊形成了期刊阅读空间,有2层楼高,由上面的天窗和大型半遮档金属支架提供光源,在主阅览室可以看到:一个双层高度的空间,几条带状窗户切割了阅览室的立面,并和两个天窗一起提供自然光线。
这些灯照亮了阅览室和上面的阁楼:金属护栏网结构连接了阅读空间,通过一个长长的木制结构落地加长。阅览室里,即使配置是单一空间,也会被主桌分为两个区域;小的空间方便孩子使用,大的空间方便青少年和成人使用。
整个建筑都有自己独特的材料,赋予建筑对象统一的外观,实现了图书馆的设计,从而优化了体量。通过各种材料的试验,他们选择了一个彩色混凝土——结合天然氧化铁颜料和润滑剂的“混合”设计,以使混凝土可根据模具构筑特定的形象。
这种“混合”的设计使具有高阻隔性和耐久性,通过铁氧化物着色的水泥所做的表面处理,并用有机硅清漆进行防护。在墙壁表面的字母是由塑料模具定位到这些表面来实现的。
这种设计为科尔诺市立图书馆和礼堂提供了天然的热阻隔以及空气通道,不同厚度的聚苯乙烯板,在外部和内部之间创造一个有效的热阻隔屏障。
设计图纸:
▲地下一层平面图
▲一层平面图
▲二层平面图
▲屋顶平面图
▲局部平面图
▲剖面图
▲剖面图
▲剖面图
▲节点图
项目信息:
建筑师:Archea Associati
地址:Via IV Novembre, 24128 贝加莫,意大利
类别:图书馆
建筑面积:1960.0 m2
项目年份:2009
摄影师:Pietro Savorelli
设计建筑师:Laura Andreini, Marco Casamonti, Silvia Fabi, Giovanni Polazzi
指导:Archea Associati – Marco Casamonti
工程助理:Ezio Biondi, Giuseppe Pezzano
结构:Mario Myallonnier
热工系统:Studio Armondi
电力系统:Studio Armondi
总承包:Viola Costruzioni
成本:2.000.00(BIM设计)0,00 di Euro

BIM建筑网





























