客户需要一个现代化的热带住宅,可以融入风水元素。房子还需要一个游泳池,健身房,家庭影院(男主人),大图书馆和工作空间(女主人),宽敞的客厅和主卧室还有一个保安室。
场地位于雅加达南部的老住宅区Permata Hijau,里面种满了生长多年的树木。该房地产开发于20世纪80年代,主要由老式现代风格的2层大坡屋顶房屋组成。东面是一个新开发的40层公寓。
为了满足客户的风水要求,该场地被一个十字布局松散地分隔开,厨房和公共区域由一个庭院与卧室隔开。
庭院和(BIM工程师)交通核心筒将建筑固定在场地(BIM学习),作为房屋内的定位中心。交通核心筒通过一个垂直的木格子从庭院中分离出来,一直延伸到屋顶,屋顶则被用作一个私人户外空间,用来欣赏雅加达南部的天际线。
客户的房子外面有两棵长成的树,客厅和儿童房面向前方,无需过多的遮蔽。尽管如此,为了与房子的安静特征保持一致,以及减轻隐私问题,在立面的每个开口处都安装了木屏风。
设计图纸:
▲底层平面图
▲一层平面图
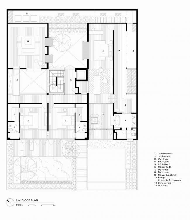
▲二层平面图
▲屋顶层平面图
▲屋顶平面图
▲正立面
▲剖面图B-B
▲剖面图C-C
项目信息:
建筑师:Rafael Miranti Architects
地址:Kebayoran Lama,印度尼西亚
类别:独立住宅
设计团队:Rafael Arsono, Margareta Miranti
建筑面积:1000.0 m2
项目年份:2017
摄影师:Paskal Khrisno Ayodyantoro,Sefval Mogalana
厂家:Toto, FSB, Lamitak
结构工程师:PT. Pantonpile
服务工程师:PT. EMSE
施工技术人员:Hasanuddin
室内设计:Rafael Miranti Architects
灯光顾问:SSA Lighting
主合同商:PT. Arah Bangun Mandiri
服务合同商:PT. Tetra Sakti Utama
客户:Evann T

BIM建筑网






























