项目以优美的流线型外观坐落于橡树之间的空地上。这些橡树有着超过两百年的树龄。入口处的一株橡树起到了一定的标志性作用,通过餐厅的大窗户向外看去,自然与建筑构成生动的极具场景感的画面。另外一株橡树位于操场上,静静注视着孩子们的嬉戏。
学校位于一个叫做 Sainte-Marie-Sicche 的偏远村庄,这里曾经是一个马术区,然而现在草场荒废,蕨类植物和树木成为了入侵者。项目旨在实现这些不同门类植物之间的和谐共生和相互交融。在面对一大片景观需要处理的时候,建筑师选择了尊重自然。
在这种背景下,无处不在的木材为建筑提供了与大自然真正共生的机会。这种天然的建筑材料首先代表了舒适,适合于一个为年幼的孩子们提供服务的项目。垂直布置的松木防滑钉连接起水平和垂直方向上的木构件,构成一个自然而精致的网状结构,并沿着立面铺陈开来。纤细的木杆件与杆件之间的空隙,共同创造出美妙的光影韵律。
这种整体性很强的木结构仿佛是一个外罩,轻轻地落在花岗岩构成的实墙的上部。敦厚的岩石墙体取材于古老的科西嘉岛上的建筑,在搭砌建造之前,石头在现场进行了尺寸的调整。
整个建筑体量位于基地北部,面朝村庄,仿佛是传统建筑的标志一般。起伏的屋顶与周围群山的天际线相呼应,轻盈而剔透的质感使其仿佛是一个珍宝箱,静静地守护着屋内屋外学习或是玩耍的孩童。这种整体式的屋顶不仅仅是该校园建筑的标志性特征,同时还可以对建筑进行微气候调节。
室内照片:
设计图纸:
▲总平面图
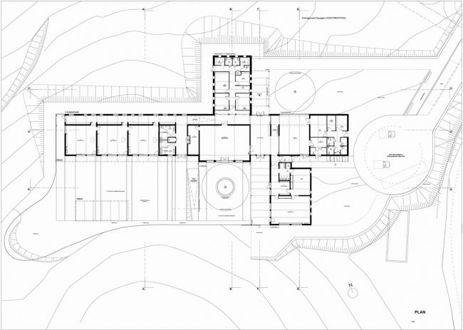
▲底层平面图
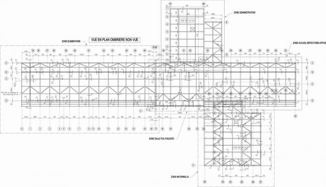
▲屋顶平面图
▲南立面图
▲北立面图
▲西立面图
▲立面图
▲剖面图
▲轴测图
▲北轴测图
▲南轴测图
▲细部图
▲细部图
▲立面细部图
项目信息:
建筑师:Amelia Tavella Architectes
地址:Cardo, 20190 Cardo-Torgia,法国
类别:小学及初中
建筑面积:1200.0 m2
项目年份:2018
摄影师:WE ARE CONTENT(S)
厂家:KLH, Placo, Saint-Gobain, Knauf, Tarkett
电气、通风、HQE工程:Garcia Ingénierie
木结构工程师:T. Hulin
声学设计:Acoustique & Conseil
客户:Santa Maria Siché
项目管理:Socotec

BIM建筑网



































