南沙金茂湾是中国金茂挺进华南区域的第一个项目。坐落在广州市南沙自贸区,作为南沙自贸区明珠湾内为数不多的城市滨海综合体,南沙金茂湾集酒店、总部基地、写字楼、企业CEO商墅、复式公寓、J·LIFE风情商业街、滨海洋房七大业态于一体,位于双江交汇之岛尖位置,比邻红树林生态公园,代言南沙自贸区优质地产项目。
区位图
项目与周边环境关系
挑战与解决
挑战:项目定位打造为南沙自贸区明珠湾内为数不多集酒店、总部基地、写字楼、企业CEO商墅、复式公寓、风情商业街、滨海洋房七大业态于一体的城市滨海综合体。如何利用项目周边优质的自然资源与各业态空间有机的串联整合,是我们面临的挑战之一。
功能分区
车行流线分析
人行流线分析
解决:我们认为当代城市设计和建筑设计之间有一个断点。地面层与上层建筑之间的联系是割裂的。所以在新的基地设计中我们将把上层建筑与地面层空间整合起来,地面将成为建筑一部分,或者说建筑将成为地面的扩展,建筑空间与地面将形成一个有机的统一体。由此,建筑与自然环境之间会形成自然而然的联系。各业态空间得联系更加密切高效。
透视图1
透视图2
透视图3
自然 · 生态 · 阳光
开放 · 流动 · 可参与
我们渴望阳光,我们希望停车也能成为一种愉悦的体验;我们渴求逛街是一种休闲的放松;我们不需要突出的个体,我们营造的是一种氛围;丰富的姿态点燃的是生活的激情,让工作变成享受,让生活更添姿彩。
模型
功能分析
景观一体化
城市空间院落
规划设计基于对传统院落空间围合的研究,错动布置功能流线,将商业串联起办公和公寓,形成公私混合的城市空间院落,将多样化的活动主体紧密联系在一起。
建筑布局最大错动和自然采光条件,公寓和写字楼形成“W”形布置,景观均质化。
院落式布局
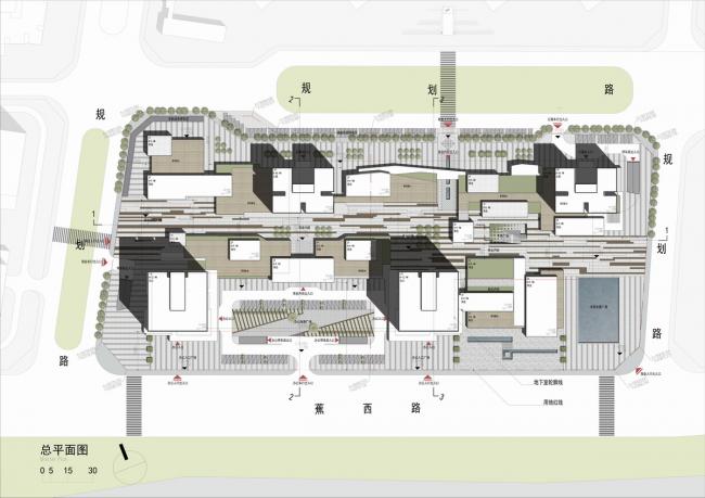
总平面
复合化的多功能
项目地上建筑以办公、商业和公寓三大功能区块组成。办公区块沿蕉西路以两个塔楼方式布置,以最大化提升项目的城市天际形象,营造金茂湾的门户形象;公寓以两个塔楼位于地块北侧,与办公塔楼错落布置,以赢取最大的景观资源;商业以一条商业主街串通东西端头,辅以北侧面对北面住宅群落的沿街商业和南侧面对滨江公园和办公广场的沿街商业,形成一主动线四商业界面的格局,二层布置大型餐饮类商业,利用二层室外平台,打造体验式情景商业。
复合多功能
办公立面
办公剖面
商业·公园购物
项目商业内部设三个中庭,采用多种变化形式,营造一个富有活力的内部空间。铺面设计采用直线+曲线的组合设计,形成丰富的空间界面,(BIM培训)营造出轻松、愉悦的购物环境,有利于引导各个空间之间的流动,将各个中庭有机地串连在一起。
商业购物公园
下沉广场
本案结合商业空间和地下室空间分别于地块东西两端设置两个下沉广场。
●下沉广场的设置,可丰富商业空间的层次感,提高购物空间的趣味性。
●于地库两个端(BIM建筑)头形成天然采光区域,有效引导人流上地面商业,降低地库能耗。
●结合商业主街与两端头布置,有效拉动主街人流,提高主街两侧商铺的商业价值。
下沉广场
商业空间尺寸
对商业街尺寸进行规划,按四个基本层级尺度进行归类调整:
1.节点性的商业广场;2.商业主内街(主动线);3.主要内外街穿越连通口;4.次要商业内外街穿越连通口。
商业空间尺度
建筑空间规划
以渐变式的像素为单元,对空间节点场地进行划分,使建筑、场地与景观形成有机整体,同时创造出丰富、多样的园区空间。
办公立体景观
办公楼平面
场地剖面
项目信息:
时间:2018年
地点:广州南沙
开发商:广州兴拓置业有限公司
建筑设计:柏涛建筑设计(深圳)有限公司
设计团队:李明,叶沛军,李俊鹏,刘日哲,杨森,晏永林,胡敏峰,李慧,黎万灶,郑枫
摄影:高钰、刘理辉
用地规模:45 166m²
建筑面积:100203.58m²
容积率:1.67

BIM建筑网



































