这座2200平方英尺(约204平方米)的住宅通过材料、颜色和形式挑战了美国的室内环境。它是美国国内仅有的两处由交叉叠层木材(CLT)制成的住宅之一。交叉叠层木材是一种非常坚固的木材材料,通过将不同方向的木材层粘合在一起而制成。
这个紧邻亚特兰大环线的独栋家庭住宅,六个山墙屋顶组合成一个屋顶。试图重新设计过去的空间范式,比如勒·柯布西耶的自由平面(free plan)和奥尔道夫·卢斯的空间平面(raumplan),Bonner 提供了将屋顶平面作为一种组织建筑的方式。在这里,屋顶平面通过将这些空间与屋顶上的山脊和山谷对齐,在室内建立了房间、天桥和两层高的空间。因此,平面其实是屋顶的结果。
屋顶平面图
从路边看,一种不对称和不熟悉的形式取代了传统的山墙立面住宅,就像通常的形式被剪掉了一样。当六个山墙屋顶在周边的体量上被切割,四个立面上都出现了奇怪的轮廓。包括屋顶沥青在内的其他细微的变化远远超过行业标准中的陡度。房子坐落在一个24英尺(约7.3m)的地块上,宽度为18英尺(约5.5m),和一个宽敞的活动房屋一样大。这座超薄的住宅为屋顶平面在更密集的城市环境中的适用性提供了思路。
所有室外和室内的墙体,楼板和屋顶都由固体CLT板组成,这是一种广泛用于海外建筑的材料,但在美国市场是新产品。定制切割,悬挂到位,并在14天的时间组装,山墙住宅的CLT板使房子坚固,避免与框架粘接的建设。面板结构的创新也促进对室内材料统一的看法。山墙住(BIM工作)宅通过一系列覆盖外部和内部的人造饰面,进一步致力于对材料的概念探索。Bonner 重新设计了美国南部的人造饰面,从历史上看,这种传统源于买不起珍贵的材料,以及随之而来的“仿造”欲望。Bonner 还运用了流行文化中更为现代的“色块”技术。
在外观上,房子的两侧覆盖着人造砖,砖是由灰泥制成的,表面是玻璃珠,能产生闪闪发光的效果。室内黑色水磨石没有定位灌注和抛光,而是作为薄瓦使用,同时将定向刨花板(OSB)替换为OSB图像中的瓷砖。卧室和相邻浴室的大理石饰面采用了意想不到的材料,有乙烯基和卡通风格的图纸,而不是人们经常想要的真正的意大利大理石。灰色混凝土、黄色乙烯基大理石和黑色水磨石组成的区域排列在一些墙壁上,很像护壁板,随着几处穿过房子的长视线,形成了色块效果。这些人造装饰似乎表明了空间的划分,但实际上它们并不是任何房间的实际边界。
女性设计师大胆地在作品中运用材料、形式和颜色,进一步激活了室内空间。通过非常规材料的使用和不同寻常的屋顶设计,山墙住宅探索了空间组织、形式和材料在家中可能发挥作用的新方式。
设计图纸:
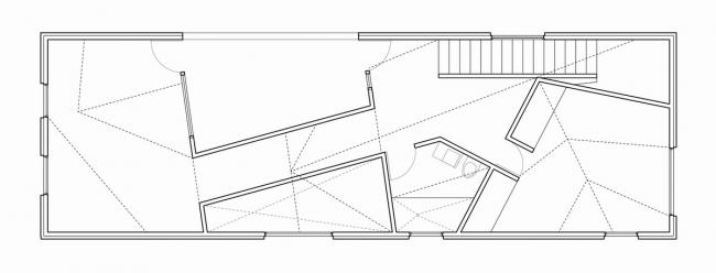
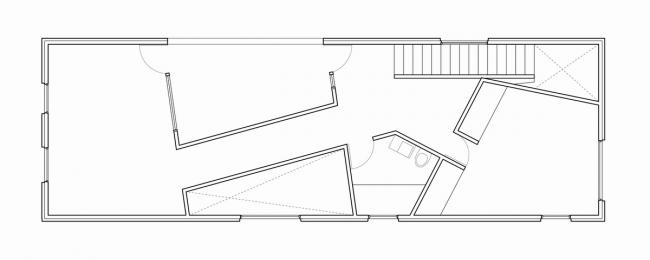
一层平面图
二层平面图
三层平面图
三层平面图-反射天花
剖面图A
剖面图B
剖面图C
节点剖面图
项目信息:
建筑事务所:MALL
地址:Atlanta,美国
类别:独立住宅
建筑面积:2200.0 ft2
项目年份:2018
摄影师:(BIM培训)NAARO,Timothy Hursley
厂家:Stone Source, Kartell, HAY, Muuto, VaproShield
建筑和室内设计:Jennifer Bonner, Director of MALL
合作建筑师:Olinger Architects
立面研究:Alex Timmer
景观设计:Carley Rickles
结构工程师:AKT II (Hanif Kara), Bensonwood, PEC Structural Engineering, and Fire Tower
总承包商:Principle Builders Group
CLT制造商:KLH USA
CLT装置专家:Terry Ducatt
木产品专家:7 Seas Group USA
土木工程师:Crescent View Engineering
机械系统:Emily McGlohn

BIM建筑网































