行走于西阿塞拜疆Maku中的Gajot旅游区时,可以看到一座像是轻轻地抱着一个木头盒子的没有任何装饰的白色建筑坐落于葱郁的环境之中。它是一个同时兼有内向性和外向性的构造,内向性是因为它通向室内空间的同时遮挡人们视线,而通过平台将人们引入室内空间这点能显现它的外向性。
▲ 场地区位
这座建筑的建筑理念是通过体量与空间的随意组(BIM工程师)合来重新定义建筑和人的关系,并且尝试将人类感受通过建筑表现出来并转化成建筑环境的氛围。
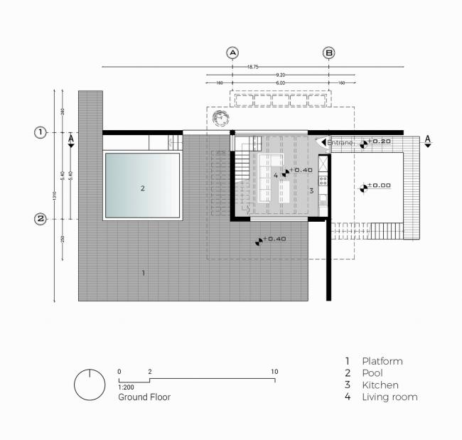
建筑首层占地5米X6米总计30平方米,在二层的北面和南面悬挑出立面为项目带来了挑战,这是为了满足空间需要同时作为基本要素塑造出建筑表现形式。首层通过一个平台与地表连接,设置了起居室和厨房,二层设置了一个卧室和洗漱间。这两层通过一道轻量悬挑支撑的楼梯连接。更高处的楼梯通往屋顶,它是观赏自然风光的好地方。平台的西边设置了一个池子,以增加这个舒适平台的自然流动性。
▲ 一层平面图
这座建筑位于天然生态的区域,而且受到自然的影响明显到第一眼就能看出。建筑体量独立又结合了环境,形式的简洁通过运用两种形成强烈对比天然材料强调出来,而为了增加建筑环境的流动性和透明性,设置了宽阔视野的窗户。
我们打算建造的是一座可以作为建筑环境的一份子,并且能突显出它的天然性和功能性的居住建筑。
设计图纸:
▲ 平面设计演进
▲ 设计过程
▲ 二层平面图
▲ 北立面图
▲ 西立面图
▲ 剖面图
▲ 剖面图
项目信息:
建筑事务所:White Cube Atelier
地址:Maku,伊朗
类别:独立住宅
主创建筑师:Re(BIM)za Asadzadeh, Shabnam Khalilpour
协同合作:Mohamad Asadzade
建筑面积:80.0 m2
项目年份:2017
摄影师:Farshid Nasrabadi
厂家:Novawood, Lorenzo

BIM建筑网





















