Kayu-Kayu是一个为家庭聚会、企业活动和休闲而创建的餐厅和场地空间。这个特殊的客户群体来自不同的背景:木材工匠,家具工匠和服装工匠。我们发现从一开始就将这些客户端角色包含到设计过程中是非常有趣的。
立面的灵感来自客户仓库的各种木材。这些沉重的原木被展示在离地面4米高的地方,悬挂在一根钢条上,(BIM培训)给人一种轻盈的感觉,当顾客走进大楼时会从下面走过。它们也作为面向西立面的遮阳设备和 Kayu Kayu 餐厅的标志。
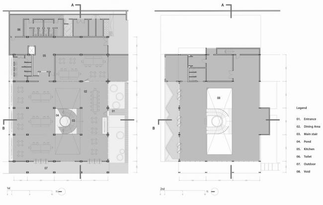
开放式平面由一个6米的结构网格组织,中间的空间用于垂直路径,上面有可开启的天窗。双螺旋楼梯环绕着一棵巨大的 Alstonia 树,树下是锦(BIM设计)鲤鱼池。一层主要用于餐厅和咖啡厅,二层主要用于活动空间,设有酒吧和露台,可以俯瞰花园区域。从螺旋楼梯、门窗框架到天窗的每一个细节都是定制的设计,使用当地的工艺和当地的材料来展示木材和钢细木工。
细节:
设计图纸:
▲ 平面图
▲ 剖面图A-A
▲ 剖面图B-B
项目信息:
设计方:W Office
地址:North Serpong, South Tangerang City, Banten,印度尼西亚
类别:餐厅
主持建筑师:Joe Willendra
设计团队:Maria Fiona, Ken Wiryadi
建筑面积:860.0 m2
项目年份:2017
摄影师:Arti Pictures – William Sutanto
厂家:Sandei Blinds, Elmes, Dharmawan, Habitus Concept, Il Sogno
室内设计:Domisilium Studio
标识设计:Droite Studio
承包商和结构:Sonny Tri Sulaksono
客户:PT. Benwika Adiguna

BIM建筑网


















