业主想要一个形式简单、阳光充足、令人放松的小屋,同时能够以某种方式对太阳移动做出回应。他们很喜欢我们设计的安全小屋的可变性以及与周围环境建立联系的方法。场地的形状规则、未经建造,位于郊区的普通单户住宅中。我们在其上放置了一个矩形体块,以符合业主对于功能的要求。
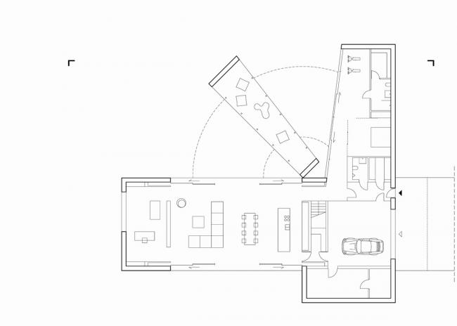
然后我们将底层的一部分旋转,以便在靠近道路的一侧获得尽可能多的私密空间。被“切割”的空间包含起居室和屋顶层,并向花园打开。在Living Garden House中可以找到类似的策略,即夜间活动区域在地板上,而日间区域成为花园的一部分。建筑与景观之间的界限被模糊化了。
业主希望建造一个平屋顶的简单小屋,但当地规划强制要求坡屋顶。因此,在设计时使靠近街道的部分为坡屋顶,靠近花园的部分为平屋顶。这个设计转变同时满足了客户需求和空间规律,最终创造了一种非标准的、独特的房屋形状。
起居室和SPA区域相互垂直,位于花园中。业主希望房子能够对太阳的位置作出回应,因此我们借用了象限仪(一种用来确定星辰位置的古老设备)的形式。我们设计了一个对太阳做出回应并跟随其运动的露台:住户可以坐在它的影子下,愉快地吹风;在一年中的不同时间,它能够调节相邻空间中的(BIM学习)阳光量:在夏天提供遮阳,在冬天使得更多的阳光进入室内。
此外,小屋还使用了电动百叶卷帘系统,因此可以完全遮蔽日间区域和SPA区域。此外,墙壁和天花板采用整体技术制造,屋顶桁架为木结构。墙面饰面使用了STO石膏,即白色的MILANO丙烯酸填料。屋顶覆盖物是白色TPO FIRESTONE膜。室内空间主要为白色,地板使用白色环氧树脂。
小屋露台移动的技术由Comstal设计和实施。该公司与我们合作,建造了安全小屋(Safe House)、方舟小屋(Konieczny'(BIM培训)s Ark)和位于什切青对话中心(Szczecin Dialogue Centre)的国家博物馆Przelomy,这些建筑均配备了多种大型的可活动元素。
露台的运动及其速度与太阳的轨迹相适应。驱动系统是全自动的,并配有先进的安全传感器:如果遇到障碍物,露台会停止,使其在使用时十分安全。但是,出于功能的考虑,露台也可以进行手动控制。它已被编程设置为在白天持续运动,这要感谢在其下面生长的天然草地。
设计图纸:
▲ 总平面图
▲一层平面图
▲一层平面图
▲一层平面图
▲一层平面图 露台移动分析
▲二层平面图
▲分析图
▲分析图
▲分析图
▲分析图
▲剖面图
项目信息:
设计方:KWK Promes
地址:波兰
类别:独立住宅
主创建筑师:Robert Konieczny
建筑面积:558.0 m2
项目年份:2018
摄影师:Juliusz Sokolowski
厂家:Sky-Frame
合作方:Marcin Harnasz, Mariusz Pawlus, Marcin Króliczek, Grzegorz Ostrowski, Justyna Górnica
室内设计:Pulva Adam Pulwicki
建造方:Proeco Kornel Szyndler

BIM建筑网






























