
成都国际汽车城位于成都市龙泉驿区成都国际汽车城易控高科技工业园内。本项目规划建设净用地总面积77796.17平方米,总建筑面积201810.92平方米。

项目单体渲染图

标准层平面图
用三维模型与各专业沟通,减少沟通时间。


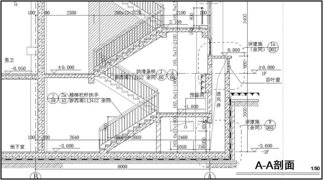
用 ArchiCAD模型自动生成楼梯大样和墙身大样,提高设计质量。例如楼梯部分,我们可以将楼梯透视图附于平面及剖面旁边,这样简单明了,有利于指导施工。
MEP综合校对阶段,提高设计质量

MEP综合校对把建筑结构设备各专业的三维模型放到一个模型中,虚拟现实,检查缺漏,解决平面、空间各专业之间的交错问题,同时解决空间净高问题,提高设计质量。
基于BIM模型自动得到的清单列表



微信公众号:xuebim
关注建筑行业BIM发展、研究建筑新技术,汇集建筑前沿信息!
← 微信扫一扫,关注我们+

BIM建筑网


