▲ 夜景
图书馆位于重庆大学城重庆房地产职业学院校园内南北中轴线上,是完善校园构架的重要一环。在校园中的核心位置以及其建筑体量,决定了它是校园中的最重要地标。总平面设计注重强调建筑与校园环境的友好性,充分考虑建筑的整体形象,将建筑与校园路网自然衔接,创造符合图书馆建筑应具备的文化功能属性:建筑北侧作为校园轴线上周恩来雕像的背景,南侧面向运动场充分考虑建筑的展示性,东侧靠近宿舍区,考虑形象及噪音的干扰,西侧面对科技馆创造通透的视线对景。
▲ 校园规划分析图
▲ 图书馆日景
在建筑北侧和西南侧设置图书馆入口,东侧设置货运入口,空间组织注重建筑空间的趣味性,在建筑的西南侧设置下沉广场,有效的利用了地下空间,巧妙的解决了地下空间出入口问题。
建筑外观设计
图书馆形态源自灯笼花优雅的外形,北侧和东侧以实体墙面为主,宛若花朵枝叶包裹;西侧和南侧是如灯笼花瓣晶莹剔透的玻璃幕墙。几条流动的曲面勾勒出花朵的动感形态,与其周围教学楼、宿舍楼相映成趣,成为整个校园的地标和视觉焦点。
▲ 概念分析图
▲ 夜景
图书馆通过玻璃幕墙、穿孔金属板相结合,形成各立面的特色:北立面面向主轴线和周恩来雕像,运用中国古典建筑“影壁”的概念形成进入图书馆的“过渡空间”,同时成为周恩来塑像的背景,起到更好的烘托作用。
北侧图书馆主入口作为校园中轴线终点的背景,与校园肌理完美结合。在图书馆中心是层层退进的椭圆形主中庭,通过特色旋转楼梯宛若灯笼花蕊,成为整个建筑的核心。
▲ 北侧空间概念分析图
图书馆通过玻璃幕墙、穿孔金属板相结合,形成各立面的特色:北立面面向主轴线和周恩来雕像,运用中国古典建筑“影壁”的概念形成进入图书馆的“过渡空间”,同时成为周恩来塑像的背景,起到更好的烘托作用。南立面正开阔的运动场,西侧以穿孔版和玻璃为主,形成水平向的包裹效果,同时提供较好的视线廊道。
▲ 主入口分析图
▲ 北侧主入口实景
▲ 北侧入口室内
西立面面向科技馆,功能以阅览空间为主,通过玻璃幕墙和穿孔铝板条形成水平向的变化,起到遮蔽直射光的作用;穿孔铝板密度从北向南由疏变密;屋顶造型舒展有利,形成起伏的特色。东立面面向学生宿舍,功能为图书馆服务盒,通过铝板和条形窗形成简洁的立面效果。
▲ 夜景
平面设计与功能布局
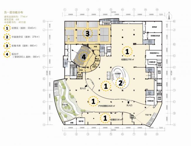
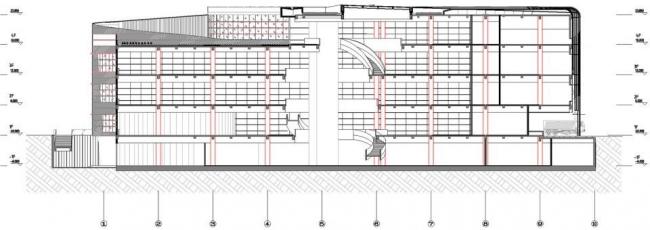
图书馆地下一层地上四层总高24米。功能布局在垂直方向遵循“底层动区、高层静区”的原则;在水平方向遵循“西南通透,东侧闭合”的原则。在平面布局时结合建筑外墙采光面的方位条件,采用多样化的平面布置,在满足功能的前提下尽可能使图书馆各部分有良好的自然采光条件。
▲ 总平面图
▲ 首层平面图
各层功能分布充分考虑现代图书馆的开放和高效性特点及新技术、新管理方式的采用。图书馆平面布局紧凑而有条理,交通组织便捷通畅,在分布藏书区、藏阅一体区、阅读区、休闲阅读区、私密阅读区、交流探讨区时,考虑到各功能分区之间的关联、管理和查阅的便捷与高效性。
▲ 负一层平面图
▲ 一层平面图
▲ 二层平面图
▲ 三层平面图
▲ 四层平面图
空间设计
1. 主入口空间
北侧是图书馆主入口空间,通过高耸的竹林营造从室外到室内的过渡空间静谧空间。阳光透过屋顶椭圆形的洞口投射在影壁上,随着时间流逝移动,让简洁的墙壁表情更加丰富。
▲ 屋顶洞口投射随时间流逝产生不同的投影
2. 中庭空间
“现在生活形态已完全不同了,跨界的理念已融入几乎所有生活和行为形式中。商业中有图书馆画廊,图书馆中也有商业。”作为一个精通商业空间创造的设计事务所,PHA在本项目中引入了类似商业中庭及餐饮服务空间的设计。
层层错落的中庭与螺旋楼梯结合在一起,形成了极富动感的中庭空间。不同于传统图书馆单一的知识传播,现代图书馆更加强调空间的共享和信息的交流,沿着室内中庭螺旋上升的楼梯串联起各层空间。
▲ 中庭(BIM)楼梯分析图
▲ 中庭楼梯实景
3. 室内设计
室内设计将建筑设计元素和“书”图形元素相结合,丰富其内涵,把建筑设计语言延伸至室内空间,达到融合和统一,营造轻松愉悦、温馨舒适的阅读和交流空间。北侧主入口大厅高18米,用简约的线条勾勒出优美的曲线,红色膜结构“灯笼”突出空间的视觉引导和焦点。
▲ 入口大堂
▲ 入口大堂
功能区室内设计考虑日照和景观对阅读的影响,阅读区域均保证相应的私密性。根据(BIM学习)每层阅读区域特点,良好的空间分割能有效避免阅读时的不利因素。开架阅读结合沿窗阅读,保证个人隐私,避免与他人过多交叉;休闲阅览区,丰富阅览体验,通过设置不同尺度的小组讨论室和个人学习室,提供不同的家具组合方式,体现出现代学术与社交活动的交叉互动,满足多种不同方式的工作和学习需求。
屋盖设计
北侧屋盖外部全采用铝板的材质,每块铝板都是平行四边形,通过平面上角度的变化形成锯齿形的平面效果,在阳光下形成丰富的光影变化。细节设计上,在每两组铝板相交的阳角处设置长短不一的LED灯带,两块铝板交接处预留豁口,豁口处设置透明亚克力板内藏LED灯带。夜晚形成如瀑布般的效果。(图27屋盖立面、图28屋盖实景)
▲ 屋盖实景
▲ 屋盖立面图
大屋盖的内部,我们采用“星空”的概念来隐喻莘莘学子探索未知世界。屋顶的椭圆形洞口如同星系的中心,星光环绕中心形成星系的图案,越靠近洞口星光越密集。为了完成这样的设计意图,我们采用“花瓣”和“圆形”的母题,通过疏密的变化,设计了四种图案在穿孔铝板上面,通过精心的设计布置,形成了“星云”般的图案。所有铝板都是以2000mmX1200mm的长宽尺寸作为标准件进行拼接,其中包括四种图案的穿孔铝板与一种不开孔的实面铝板,共五种图案组成北侧屋盖内表面的图案。
▲ 灯光效果
▲ 灯光效果
四种穿孔板图案按照开孔率的疏密程度分为ABCD四种图案。在此基础上又设置了A’B’C’D’四种图案相应旋转180度的穿孔铝板,共计9种铝板进行分布。灯光的布置上面,尽量均布在穿孔板背后,穿孔率越高的铝板,背后设置的灯珠越多。在施工中,我们让工人随机将每一款穿孔铝板按正排或者转180°排布,避免了大量的重复图案对视觉的影响,得以在夜晚灯光亮起的时候自然的形成星光倾斜而下的效果。
▲ 屋盖内侧顶面铝板分布
▲ 屋盖内侧顶面铝板分布
▲ 北立面和南立面
▲ 东立面和西立面
▲ 剖面图
▲ 剖面图
项目信息:
设计方:湃昂国际建筑设计顾问
地址:重庆市大学城,重庆,中国
类别:图书馆
主创建筑师:徐子苹
设计团队:徐子苹,吴剑钊,李煦,罗磊鑫,王佳晨,向钧达
建筑面积:28064.29 平方米
项目年份:2015
结构形式:框架剪力墙结构、管桁架结构、钢结构
建筑层数:地上4层, 地下1层
所获奖项:2016年亚太房地产大奖-中国区五星最佳公共服务建筑,2018年A&D建+设大奖-最佳公共空间

BIM建筑网


































