摘要:建筑工业化是我国建筑业不可逆转的发展趋势。现阶段,工业化的优势并未完全发挥出来,大部分部品与构配件仍采用定做方式,配套性、通用性较差,接口类型更是繁多,导致部品与构配件置换性较差。本文选择具有代表性的接口类型,通过对其现状的调研,为接口的标准化做好技术准备。
关键词:建筑工业化;建筑部品;建筑构配件;连接接口;标准化接口
前言
多年以来,我国工程建设一直沿袭着传统粗放的建造方式,建筑行业发展缓慢,远落后于其他工业部门。为了发展建筑业,各国的经验证明:根本的出路在于实现建筑工业化,使整个建筑业形成一个完整、配套的工业生产部门。然而,实现建筑工业化,必须使之形成工业化的生产体系,也就是说,针对建筑产品不易定型装配式结构、施工分散、不利于组织工业化生产的特点,把建筑作为定型产品,对房屋的设计、建筑材料的生产供应、部品与构配件的制作、现场施工安装及组织管理各个环节,按工业化生产的要求通盘考虑、综合研究,配套的应用新技术,以取得最优的综合技术经济效果。
目前,建筑工业化是我国不可逆转的发展趋势,国家和各地区已出台一系列政策和技术标准来促进、鼓励工业化建筑的发展,但是现阶段,工业化的优势我们并未完全发挥出来,大部分的建筑部品与构配件仍采用定做的方式,不能批量生产。因此,要实现部品与构配件从定做商品到成品商品,实现通用性和互换性,同时便于施工安装和维修,标准化接口的研究至关重要。
从系统角度看,接口是指其各组成部分之间可传递功能的共享接口。简单的说,接口就是其各个零部件间的连接点(线、面),通过接口实现静态结合或动态结合。[2]在装配式建筑中,接口是指两个独立系统、模块或者部品部件之间的共享边界;标准化接口则是指具有统一的尺寸规格与参数,并满足公差配合及模数协调的接口;接口的标准化,可以实现建筑部品与构配件的通用性以及可互换性。
一、外围护部品类接口技术
外围护部品不易更换,理想状态为:与主体结构具有相同的设计使用年限,高耐久性,高质量,防风、防水、隔声、保温等功能好。就目前的使用状况调研,混凝土外围护墙、玻璃幕墙应用效果较好;因玻璃幕墙应用技术较成熟,且本研究所聚焦的典型建筑功能空间中很少涉及,因此,本研究的外围护部品限定在预制混凝土外墙挂板。
*“十三五”国家重点研发计划资助:工业化建筑部品与构配件和主体结构、建筑装修、设备模数化协调及标准化接口技术研究(2017YFC0703701)
(一) 外墙挂板与主体结构间接口
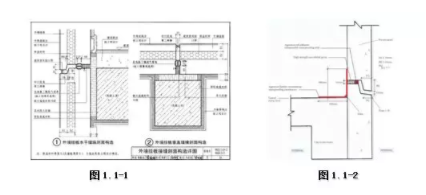
1.现行国家标准《预制混凝土外墙挂板》[4]
保温外墙挂板接缝采用“材料防水+构造防水+材料防水”的防排水系统。外墙挂板与主体结构脱离,与主体结构间缝宽为30~50mm,由防火材料进行层间封堵,上下为弹性嵌缝材料,见图1.1-1。
2.新加坡—外墙设计(无保温)
防水层做在内侧,外墙板与主体结构间无缝隙;水平缝提高至踢脚位置,拆除踢脚即可自内部维修,见图1.2-2。
3.小结
新加坡的做法,外墙挂板与主体结构之间无缝隙,这要求构件的制作和安装均有较高的精度。在我国,外墙挂板与主体结构间界面尺寸一般设定在30~50mm之间,此尺寸应能包容外墙挂板和主体结构构件在生产和安装过程中产生的偏差,且满足层间的防火、防水、隔声等性能要求。
(二)外门窗与预制混凝土夹心保温装配式房屋外墙板间接口
1.现行国家标准《装配式混凝土结构住宅建筑设计示例(剪力墙)》15J939-1
窗户安装在预制混凝土夹心保温外墙板时,在保温层位置处安装防腐木,窗户通过防腐木与外墙板连接。
2.工程案例(一)
窗户安装在内叶板,外叶板带转角,包裹保温层并与窗框边的防腐木顶紧,保温砂浆嵌缝。
3.工程案例(二)
外叶板包裹保温层和内叶板窗洞口,窗户安装在外叶板上,见图1.2-5。
图1.2-5 外墙平面标准节点大样
4.小结
在国标图集中,门窗通过防腐木安装、定位在保温层处,防水及窗框的稳定易存在问题;工程案例(一),门窗安装在内叶板,稳定性较好;工程案例(二)外门窗的连接做法,防水性能好,但是窗口形成冷桥,适用于我国南方地区。
二、内装部品类接口技术
(一)内隔墙
内隔墙部品接口技术的研究对象主要为轻质条板隔墙、轻钢龙骨内隔墙。由于轻钢龙骨隔墙体系已发展较为成熟,此处不再赘述。内隔墙聚焦于ALC条板隔墙,研究ALC条板隔墙与主体结构构件的连接接口。
1.ALC板与主体结构接口构造(引自《蒸压轻质加气混凝土板材(NALC)构造详图》03SG715-1)
墙板顶部、底部板结构板间距均要求10~20mm,顶缝干式安装处理见图2.1-3。
2.工程案例
ALC条板墙上端顶紧由卡槽固定,下端留20mm的缝灌细石混凝土。
3.小结
根据调研资料总结,内隔墙条板与主体结构间界面尺寸20mm可满足施工及安装误差要求。内隔墙条板与主体间采用U型钢卡固定,下楔法安装,顶缝采用弹性材料回填密实,可满足墙体稳定、抗震、防止墙体裂缝产生的要求。
(二)整体收纳系统
整体收纳指由工厂生产、现场装配、满足储藏需求的模块化部品所构成的收纳方式;根据所处功能空间,收纳可分为入口门厅收纳、起居室收纳、卧室收纳、餐厅收纳、厨房收纳、卫生间收纳、阳台收纳独立式收纳等。
案例(一)中,收纳同周边构件的缝隙尺寸各位置均不等,最大达到了20mm,此种缝隙无法打扫、清洗;案例(二)中,收纳同周边构件连接缝隙较小,且缝隙打胶。
根据市场调研,相对于其他部品,整体收纳虽然简单,但其任意性极大,品种和规格杂乱,应以模数协调为基础,建立优选尺寸数列,并严格控制公差范围。
(三)集成式厨房
1.工程案例(一)
墙面和地面均采用干式工法;厨房墙面同周边支撑体间的界面尺寸为80~100mm(可调节),地面架空高度为50~100mm。
2.工程案例(二)
通过铝制埋件将墙板安装在周边构件上,安装条既承受墙板重力,又起到装饰作用,但是后期使用阶段,此地方是否会造成油渍堆积,难以清洗。此种做法,厨房墙面同周边支撑体间的界面尺寸为几毫米。
3.小结
集成式厨房墙面、顶面及地面同周边支撑体间的界面尺寸很大程度上取决于厂家的施工工艺,厨房管线的布置等,需在模数协调基础上,实现连接界面标准化,进而实现管道接头的标准化。
2.4 整体卫浴
1.现行国家标准《整体卫浴》(GB/T13095-2008)
图2.4-1
水平方向:X1+X2=80mm~100mm,Y1+Y2=80mm~100mm;
垂直方向:Z1+Z2≤500mm;
安装尺寸与外形尺寸之差(a1+a2,b1+b2)允许为20mm~40mm。
2.科逸整体卫浴
无论是长度方向还是宽度方向,整体卫浴最小安装尺寸均比整体卫浴内尺寸大150mm。
3.海尔整体卫浴
整体卫浴在两方向所要求的最小安装尺寸与内径尺寸之差不同,在110mm~200mm之间
4.小结
根据调研,市场上整体卫浴均采用六面架空设计,架空空间尺寸很大程度上取决于厂家工艺,尺寸差异性较大。需在模数协调基础上,提出优选尺寸系列及公差范围,实现连接界面标准化,进而实现管道接头标准化。
三、结论
研究发现,由于我国处于装配式建筑发展的起步阶段,建筑部品与构配件间的接口基本由生产企业根据自身产品特性及施工工艺确定所采用的接口形式,造成连接接口多种多样、百花齐放,如:外窗在围护墙体上的安装方式,南、北方地域差异明显;集成式厨房、整体卫浴与周边构配件间的界面尺寸也是相差很大。
造成这种现象的原因,主要是部品与构配件生产企业在产品、设备和设施的开发、生产和安装方面缺少模数协调的应用和指导,导致产品的开发和引进随意性比较大,产品长期无法定型,产品与产品之间缺少相应的协调,配套性、通用性较差,因此连接接口也无法实现标准化、系列化。
下一步,我们需以模数协调为规则,考虑建筑部品与构配件的优选尺寸及公差,结合现阶段的技术和市场应用现状,从接口尺寸出发,同时兼顾接口性能和形式,形成标准化接口关键技术标准体系,以指导设计和生产,实现部品与构配件的通用性和互换性。
参考文献:
[1]内田祥哉.建筑工业化通用体系[M]. 上海:上海科学技术出版社, 1983.
[2]高卫庆等.产业化部品体系的集成化探析[J]. 改革与战略, 2008(10):175-177.
[3]中华人民共和国住房和城乡建设部主编.装配式混凝土建筑技术标准[M]. 北京:中国建筑工业出版社, 2017.
[4]中国建筑标准设计研究院主编. 预制混凝土外墙挂板[M]. 北京:中国计划出版社, 2008.
作者:李文 白聪敏 胡文楠王秒 伍明

BIM建筑网










