斯蒂文•霍尔建筑师事务所(Steven Holl Architects)和Architecture Acts赢得了捷克共(BIM教程)和国奥斯特拉瓦音乐厅设计的国际竞赛。该方案获得了七人评审团中的六人支持,拥有1300个座位,紧邻现有的文化之家,被设计为“一个完美的声学乐器”。
这座新建筑是与Nagata声学公司合作设计的,将为该国领先的当代管弦乐团Janacek爱乐乐团提供演出空间。该设计通过将主厅靠近建筑后部的现有公园来屏蔽城市交通噪音,而长廊上的新入口可以上升至现有中心的顶部。新旧之间戏剧性的对比为这座城市创造了一个文化地标。
建筑就像一个光滑的锌盒子里装着由混凝土(BIM建筑)和枫木制成的“仪器”,其平面为扩展的葡萄园式平面。该设计受到捷克作曲家Leos Janackek的影响,他的时间理论指导并赋予了内部几何学的秩序。隔音墙板有三种类型:“Znici”、“Scitaci”和“Scelovac”。
该方案预计将于2023年开始实施。
▲ 模型
设计图纸:
▲ 概念草图
▲ 气候设计
▲ 结构平面
▲ 结构分析
▲ 总平面图
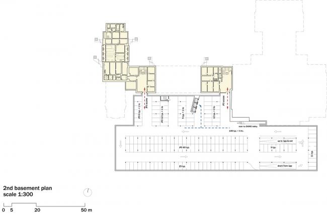
▲ 地下二层平面图
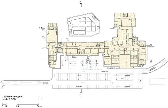
▲ 地下一层平面图
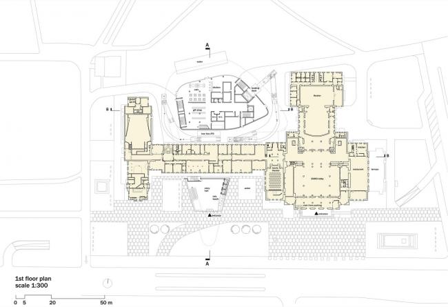
▲ 一层平面图
▲ 二层平面图
▲ 三层平面图
▲ 四层平面图
▲ A-A 剖面和 B-B 剖面
▲ C-C剖面
▲ D-D剖面
▲ 东立面图
▲ 南立面图
项目信息:
声学顾问:Nagata声学公司
结构工程师:西尔曼结构工程师
可持续性:TRANSSOLAREnergietechnikGmbH
剧场顾问:Theatre Consultants Collaborative
交通:Fiala
消防:PetrHavlicek

微信公众号:xuebim
关注建筑行业BIM发展、研究建筑新技术,汇集建筑前沿信息!
← 微信扫一扫,关注我们+

BIM建筑网






























