台畜农科厂是目前台湾最新、规模最大,同时也是最先进的猪肉类加工厂。厂区位于台湾南部屏东县的屏东农业与生物科技园区,厂房区域包含主体厂房(22,000 m²)、餐厅、产品店铺(650 m²),以及一座污水处理厂。本厂房所生产主要的产品有超过250种,其中包含西式的香肠、火腿、培根、高级质人手工烟熏火腿及中式的炸、炖、卤肉制等各式即食品,以及提供给连锁餐厅与烘培店的肉类加工原料等等。厂房本身荣获美国绿建筑LEED的黄金级标章。
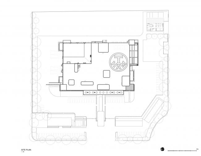
▲ 区位平面
台畜是台湾最大也是最老字号的肉类加工品牌,至今有超过50年历史。当时设计规划主厂房时有四个目标:第一,产能翻倍。第二,把工厂的食安质量提升到最高来满足外销日本、新加坡、美国等国际需求。第三,藉由新厂房的建立重新将台畜品牌及理念深植消费者心中,其中包含了高品质的产品,永续的发展,与环保的操作。第四,透过新厂的设计来提升员工的工作环境,因为『好的产品来自于快乐的员工』。台湾一般的肉类加工厂大多看起来像个密闭的冷藏铁皮屋或盒子。在这个厂房上,我们尝试了不同的方向。我们试着把大量的自然(BIM建筑)光与景色带入厂房来提升员工与干部的体验。
我们把工厂内部辅助性的功能区都归纳到了厂房的【前面】。透过大型的玻璃帷幕我们提供了很充足的自然光与周遭景色给这些空间,例如办公区,研发区,品管区,调味研究室,员工食堂,更衣区,与厕所。
员工们一天八小时在密闭的冷藏空间内工作,能透过休息时间与去洗手间的时间看到户外,适当的放松,休息。冷藏与制成类的功能则被归纳到厂房的【后面】。这部位被很厚的墙体给包覆。墙体有着优越的隔热功能。制成区内的温度控制在 -35 度到13度之间。
厂房的外皮用的是表面粗糙的陶砖。在台湾面砖是非常常见的外墙材料,无论烈日到雨季的豪雨皆能有效的保护建筑物。紫咖啡色的粗糙面砖呼应着屏东肥沃的土壤。透过两种不同纹理的拼配,让外墙制造出手工火腿的质感与细致的效果。
我们对南面与北面的外墙稍稍做了一些角度倾斜,让太阳根据时间有变化地投射在这些墙面上,日出日落,阴影变幻万千。
为了满足日本与新加坡的肉类外销标准,厂房内的生区与熟区必须要完全的分开来确保绝对的卫生,这包含了所有人,物品,气体与水皆不能流通。这些分流从厂房的入口开始。生区与熟区的员工从不同的入口进入厂房。入口走廊的顶部布了一排圆形的天窗。当员工进出厂房时都可以看到自然光。在厂房内,在所有的通道,更衣区,食堂都依照生熟区的颜色标注来确保没有生熟交叉污染的机会。
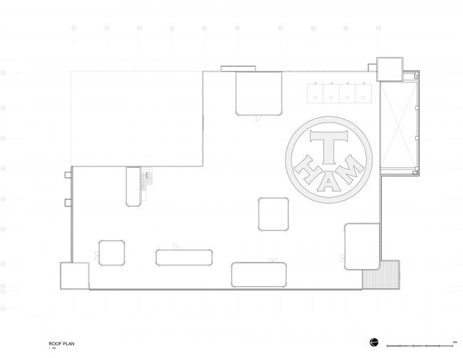
屋顶上七座生产用的电梯朝向天际。它们的高度虽因为功能需求而被设限,但经由我们修饰外观之后,使这些塔看起来更像雕塑品,这些造型呼应着厂区背后的中央山脉。透过他们,我们给了这个厂房它独特又稳重的身份。屋顶上的大型开放空间可被用来清洗厂房设备,举办特殊活动,或给员工休息。
黄金级的LEED表彰可归功与三个设计手法。第一, 我们透过大量的使用当地制造的建材,与使用回收原料的建材,(BIM设计)例如面砖,水泥与玻璃,来降低碳的排放量。第二,高效能的机电与空调设计节约了大约20%的用电量。第三,透过高效能的龙头与雨水集中再利用系统,我们节约了1/3的用水量。绿化上我们尽量利用当地的原生态种。过了一年的养护期,基本上这些物种就不需要而外的浇灌。
业主对于新的厂房非常满意。厂长在一次访谈中提到这个新工厂大大提升了生产的效能,也同时提升了员工士气。把自然光与景色带入工厂让员工的工作环境提升了不少。员工们更有动力及效率,产品的品质亦跟着提升。在这种较为严峻的工作环境的产业,新的工厂已经使员工的离职率降低了一半,亦更容易招募优秀人才。90年末爆发的口蹄疫,使台湾面临了长达20年的限制肉品出口。明年2020年,台湾有机会可以重新出口肉制品。台畜农科厂成功地与竞争对手拉开距离。
设计图纸:
▲ 总平面图
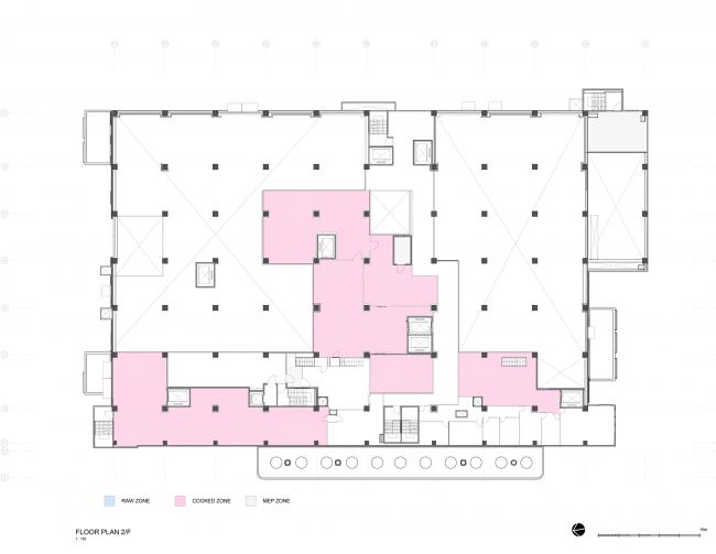
▲二层平面图
▲四层平面图
▲五层平面图
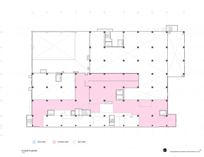
▲六层平面图
▲屋顶平面图
▲南立面图
▲北立面图
▲东立面图
▲西立面图
项目信息:
建筑事务所:泽新建筑
地址:神农东路28号,屏东农业与生物科技园区,屏东县,台湾
类别:工厂
主创建筑师:王惟泽,邝伟立
设计团队:郑文维,谢佳融,黄皓暐
业主:台湾农畜产工业股份有限公司
建筑面积:24000.0 平方米
项目年份:2019
摄影师:Fernando Guerra

BIM建筑网


























