房屋坐落在珀斯链状湿地湖区的一处湖边,这个住房的建筑设计和其与周边景观的结合反映了建筑师与客户双方的勃勃雄心:建造一个可以反射出环境与气候以及建筑师和业主的个性和道德观的住宅。
RZB House (红·和风·蓝,Red Zephyr Blue) 的设计反映出了周围的环境,它让自然的清风穿过协调了热(红)与冷(蓝)增强了房屋的宜居感。房屋两头的百叶格栅和一个热敏烟囱可以让住户根据季节与时间调节房屋的气候。
在房屋内部,一串活水池可以产生清风,激活蒸发冷却器。同时房屋的上层空间也有开放式的成龄木屋檐和空中小公园。
一个兼顾美学与声学的私人音乐室提供极佳的隔音,将音乐包裹环绕同时也有搭配了宽大坚固的书架。在音乐室顶上,艺术工作室却大为不同地与外界融合。敞开的阳台延伸向街道,一块镶板窗却俏皮地将露台与室内生活空间联结在一起。
厨房被一层开放的用餐空间,有遮挡的露台,池塘,花园,和夏日用的凉亭所环绕,占据了房屋中央的位置。住户夫妻特别欢迎他们的家人朋友一起来分享这样的生活空间与花园。
设计的考量涉及方方面面,其中包括了房屋内空调的排放,精选的带图案的砖石,辐射采暖,最少用量的照明灯,没有道德问题的木材来源,特型植物和生产性花园,25000升的降雨量,以及太阳能采集。房屋达到了6.8的星级并且只使用无动力制冷。RZB 住宅用于休憩,迎接家人朋友,与本地的红蓝蜻蜓共享空间。
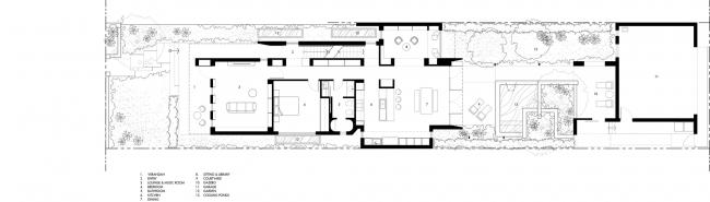
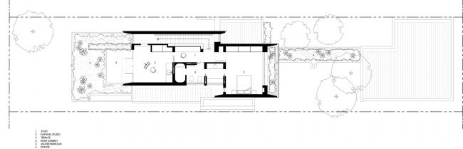
项目图纸
▲ 一层平面图
▲二层平面图
▲地下室平面图
▲剖面图
项目信息
设计方:Carrier and Postmus Architects
地址:Perth,澳大利亚
类别:独立住宅
设计团队:Justin Carrier, Steven Postmus, Qian Yun Say, Jeremy Su, Chimalizeni Mwenda, Kah Wai Leong
建筑面积:323.0 平方米
项目年份:2019
摄影师:DOUGLA(BIM学习)S MARK BLACK
厂家:Austral Bricks, Astra Walker, ACDC Lighting, Myaree Ceramics, Kingspan Insulated Panels, Autodesk, Fielders, JPP Engineering Pty, Trimble, KB Border, Issey Shade, Modular, Briggs Veneers
结构工程师:ACCE
能源顾问:CADDS Group
景观设计:Carrier and Postmus Architects (CAPA)
承包商:Weststyle Design & Development

BIM建筑网





























