ARTCOR-创意工业中心位于基希讷乌历史中心艺术学院庭院(AMTAP)。该中心被设置为一个用来发展摩尔多瓦创意工业环境的场所。Artcor只有在USAID资助的,瑞典和英国帮助的摩尔多瓦竞争项目的支持下才有可能实现。
▲ 总平面图
该建筑的空间策略从场地中来,它是一座建筑纪念碑,追溯到19世纪的社区建筑。
该中心包(BIM)含了一个400平米的新建筑以及450平米的老学院楼的一部分。场地的一部分区域(1200平米)被占地面积为300平米的老仓库和豆腐块建筑所占据,其被拆除用于额外公共空间使用。
多功能的文化和商业空间被设计在新建筑中,第二层楼给商店工坊和合作商使用。屋顶代表了绿色的地形,可以通过室外的礼堂楼梯到达面向Cazimir-Keshco的居民纪念碑。
▲
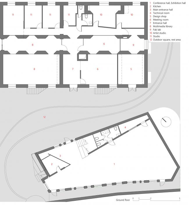
学院楼(建于1950年)首层的左侧包含工坊空间,传媒图书馆和会议室。另外,其被增设了行政中心空间,书店和设计商店。音乐部分,包含录音空间和排练厅,已经被移到了重新设置的地下室。
▲ 一层平面图
▲ 二层平面图
我们的任务是尽可能保留历史背景,但是另一方面,目标是创造混合功能空间。为了实现活跃城市空间的目标,我们选择去将庭院变形为对所有游览者开放的充满活力的城市区域,也通过可探索的屋顶增加建筑的实用性。
景观强调了植被和艺术空间,空间中的城市家具作为艺术装置而存在。在车道的入口,可以看到一座名为“知识树”的雕像,其表现了创意的原型。庭院的地块被“石头河”所切分,它以前是排地表水的下水道。
新的建造物代表了加固的混凝土体块,被耐候钢所覆盖;在混凝土立面上,浅层浮雕块符号表现出人性之美。
室内的远古感来自于建筑的构造化结构——沉箱天花板,内部礼堂楼梯,和墙体表面的彩色混凝土。家具和天花板光照的部分,尤其是中心部分,是作者所设计的。对于中心区域装饰要素的设计,建筑师与学生们,艺术家以及学院教授们密切配合。适中的室内设计使得参观者能够集中注意力在艺术展品上。
ARTCOR 诞生于发生在基希讷乌城市进程一个稳固而创意化的过程,以一种国家级的创意工业发展。随时间流逝,这一中心将会成为吸引城市游览流线的节点。
▲ 剖面图
项目信息
设计方:Maxim Calujac
建筑面积:850.0 m2
项目年份:2019
摄影师:Volker Kreidler
客户:COR – Creative Industries Association in Moldova
工程师:Anatol Butnaru, Valerii Bulanov, Evghenia Galcovscaia, Tudor Arhip, Andrei Bors
景观:Maxim Calujac, Irina Dubinschi
顾问:Alexandr Shevchenco
艺术家:(BIM工程师)Vasile Sitari, Elena Frunze, Nadya Izosimova, Ana Costov, Vasiluta Vasilache, Alyona Ciobanu, Veronica Belous, Arteom Vizitiu, Maria Huțanu, Andreea Cioară
设计团队:Irina Dubinschi, Anton Brenici

BIM建筑网





















