MAPAA 建筑事务所完成了一个家族办公楼项目——OFMA,它是一个父亲和其儿子的办公楼。项目坐落于圣提亚哥市南边麦波河谷的山坡上,那里具有大面积葡萄园和橄榄园,并以葡萄酒生产而著称。设计从酿酒工艺和储藏室出发,整体采用由三个钢筋混凝土拱顶组成的系统。
MAPAA 建筑事务所为一对父子设计了 OFMA 办公楼,他们希望拥有独立的办公楼,使它通过一个中央空间连接,以便接受公司的客户和合作伙伴。位于葡萄园和橄榄林北部的山坡上,该项目由一个聚会的中央空间组成,在它的两个对立极端是合作伙伴的办公室。这一套朝向北方,既控制着由葡萄园和橄榄树构成的近景,也控制着对圣地亚哥市的远景。南面是接待处及浴室、地窖和厨房的主要入口。
建筑反映了该家族的历史,与该家族在同一个地方长期生产葡萄酒的家族历史相联系,它采用了拱顶的形式——一种建筑师理解为与葡萄酒及酒窖相关的形状。因此,这座建筑包含了一个三个钢筋混凝土拱顶体系,用于划分为三个主要区域,同时赋予建筑整体性。
根据客户的要求,中央空间应该放置一块高3.6米、宽6米的大型意大利挂毯,一方面决定了它的支撑结构——墙,另一方面是能使它更好呈现的反映距离、高度以及包络关系的——天空。在查看了几种平屋顶和倾斜屋顶的可选方案后,MAPAA建筑事务所选择了一种无支撑的屋顶。因此,一个能够覆盖很长距离而不倾斜并且释放横向支撑力——也即将两个办公室与中心空间分开的墙壁的拱顶的想法,似乎是理想的。
项目图纸
▲ 剖面效果
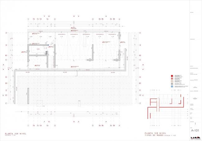
▲ 平面图
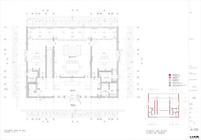
▲ 平面图
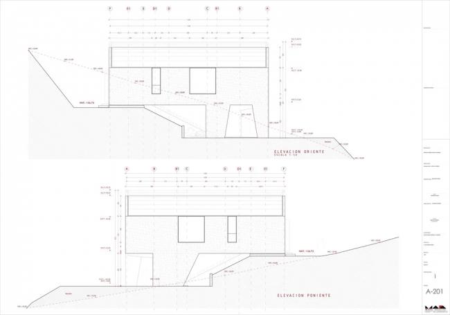
▲ 立面图
▲ 立面图
项目信息
项目名称:OFMA
建筑师事务所:MAPAA(克里斯蒂,拉拉,马特,马德森)
合作建筑师:Felipe Miquel/Alessandra Delisio
项目:家族办公室
地点:智利,圣地亚哥,皮尔克,哈拉斯德皮尔克
结构工程师:Manuel Jose Ruiz
承包商:Hector H(BIM设计)ernandez
材料:混凝土+钢材
(BIM教程)地面:330平方米
摄影师:Pablo Casals Aguirre

BIM建筑网

















