如恩设计受开发商阿那亚Aranya之邀,在其开发的秦皇岛黄金海岸社区内设计一座艺术中心,业主的远见卓识为项目的设计赋予了充分的构思空间,如恩也希望借此契机,尝试突破艺术中心与公共空间的固有定义。阿那亚社区整体强调重新找回人的情感价值,以及与环境的和谐互融。因而,除了满足艺术展陈的功能外,如恩在建筑内部设计了一个环形的庭院,作为社区居民的公共活动空间。
当地海水受气候的影响,出现季节性的变化——夏季,海水蔚蓝、宁静;冬季则在表面凝结成冰,艺术中心的概念设计便以季节性的海水变化为灵感,试图将大自然的奇妙囊括于建筑的内核。
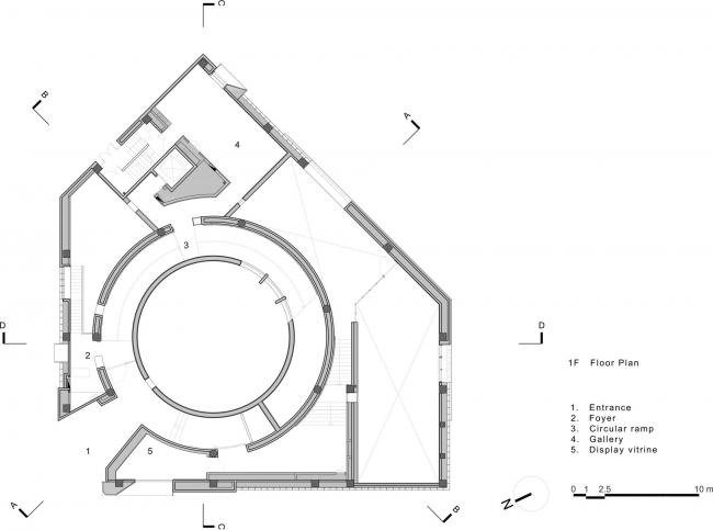
建筑的外围体量厚重,最大程度利用了基地面积,而中心位置则挖凿出了一个倒置的圆台空间,形成一座环形的阶梯式剧场。
空间形式可以满足多种使用需求,环形的广场在充满水时可以形成水景,排水后又可作为表演和集会空间,能够吸引更多的人群,同时带动艺术的活力,从而使得这个项目不仅仅是一个艺术的空间,同时也是一个社区分享和聚集的地点。
厚重的建筑体量内部串联了一系列空间,人们可以在这里自由漫步,缓步向上,享受一段内外视野精心编排的旅程。
艺术空间的主要功能就是陈列和体验艺术,阿那亚艺术中心也不例外,螺旋上升的流线将人们引导至每一个画廊空间,在展陈艺术品的过程中不断激发人们的观赏欲。
倒锥形空间底部设置了一间咖啡馆、一间多功能画廊和一个圆形的室外剧场,从这里开始,环形连廊引领人们穿过五个独特的画廊空间,最终到达建筑顶部,在这里俯瞰四周的风景和建筑内部的活动。
建筑立面主要由不同纹理的混凝土墙砖拼接而成,沉稳、厚重,有如一块坚韧的岩石,在不断变换的环境中静驻不动。部分光滑的表皮折射出万象的天空,而模塑的混凝土砖外墙则充分与日光互动,营造出另一种变幻的肌理。
厚重的建筑立面使用青铜元素点缀,捕捉了自然的天光,将行人的目光聚焦到陈列的橱窗。定制设计的照明与细节为朴实的色调增添了精致的细节。夜晚,室内的光线沿着倒锥形的空间散射出来,点亮了海滨的整片社区。
项目图纸
▲ 草图
▲草图
▲地下一层平面图
▲一层平面图
▲二层平面图
▲三层平面图
▲南立面图
▲东立面图
▲西北立面图
▲剖面图A
▲剖面图B
▲剖面图C
▲剖面图D
项目信息
设计方:如恩设计研究室
地址:阿那亚黄金海岸社区,北戴河新区,秦皇岛,河北省,中国
类别:美术馆
(BIM教程)
创始合伙人&主创建筑师:郭锡恩, 胡如珊
设计团队:杨延蕙(建筑设计协理总监),郭鹏(协理),Utsav Jain,Josh Murphy,Gianpaolo Taglietti,高乐舟,Susana Sanglas,Lili Cheng,鲁永新 (产品设计协理总监)
建筑面积:1500.0 m2
项目年份:2019
摄影(BIM学习)师:Pedro Pegenaute,夏至

BIM建筑网








































