两位著名的中国画家决定搬到北京郊区的宋庄艺术村生活和工作,这里不但环境清幽,而且左邻右舍也都是艺术家同行。工作室的设计在外观或施工原则等方面有别于传统的中国四合院,而更多地考虑了四合院的空间性能方面,即住所(以房屋结构与形体隔绝室外空间)、内向性(所有开口都向内开放,而不是面向街道)、隐私程度(隐私程度随着院落的深入而递增)以及方位(主要生活空间都为南向)。这些方面经过设计师周到的考虑,转化为一种建筑范例,将三对不同的并列元素调和在一起:内部与外部、工作与生活、个人与集体。
适宜的建筑造型及其特殊的空间构造(BIM培训),创造了各式各样的庭院/户外空间。外部围墙将建筑物庇护起来,与外面的世界隔开,而内部空间一律向庭院开放。设计任务的特点是拥有两种不同的功能,即工作和生活,这一点经过设计得到了调和,建筑原型清楚地将这两大功能区分开,而且还让两者之间复杂的关系都在庭院空间有所体现。
后者从时间与空间上同时提供了一种相互连接与隔离的选择。由于一个给定的地块必须能满足两位业主的不同需求,对于设计来说,发挥决定性作用的就是和平共存的问题,即个体表达与集体共享空间体验之间的问题。适宜的建筑原型的有效形体一方面迎合了这种隐私度与个性化的共存,还(BIM工作)满足了集体使用需求与宣传效果,其方式是提供隐私性逐层递减的户外空间,也就是从私人的空间一直过渡为共享的公共空间。
项目图纸
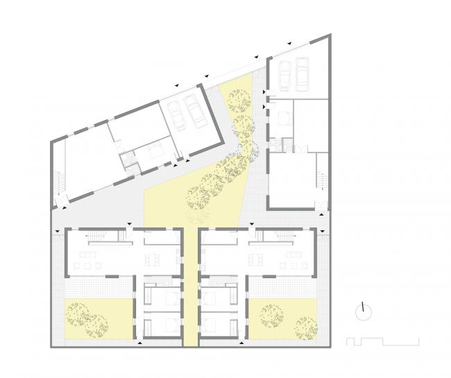
▲ 总平面图
▲一层平面图
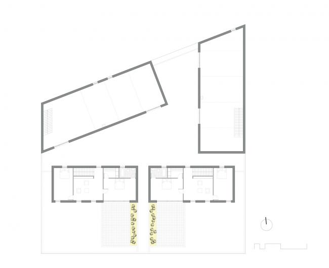
▲二层平面图
▲立面图1
▲立面图2
▲立面图3
项目信息
设计方:Knowspace
地址:北京,中国
建筑面积:1488.0 平方米
项目年份:2013
建造商:Wang Xingwei, Qin Qi
结构设计:Cao Shanghui
场地监管:Qin Lichao

BIM建筑网
















