该项目将建筑与景观融合在一起,旨在创造该地区人与自然之间的和谐氛围。设计场地属于该地区典型的果园草地。三个狭长的结构被设置在类似竞技场的场地中,使得建筑有时看起来像是盘旋在地面上,有时则是嵌入到地形中。
为了让景观渗透到建筑之中,建筑师设计了种植果园草地的中庭。山地及其周围的丘陵森林和草地的景观是Josefhof空间布置的主要影响因素。入口区域、餐厅和酒吧提供了朝南和朝北的视野。底层结构交错排列,让屋顶与上层建筑的围墙底端平行。
自然地形的景观在结构之间延续。所有房间都有良好的文化景观视野。研讨会区和繁忙的初级保健诊所不仅拥有良好的景观视线,还提供了通往自然的便捷地面出口。沐浴和桑拿区位于建筑南部的地形基础之上,在那里可以欣赏木屑小径与池塘景观。
从接待大厅开始,所有区域都是无障碍的,可以让人们快速进入。与立面相反,简单紧凑的窗户结构被遮挡,避免了太阳直射。最佳隔热立面和背阴的中庭满足了建筑的能源需求。建筑的承重结构采用高度预制化这一十分经济的建筑方式。
这些房间由木材模块组成,内部装饰完善后交付给建筑工地。房间由自然材料主导,强调疗养中心中设施的重要性。贯穿建筑的景观也使用了自然材料。天花板上的明确而经济的柱网作为建筑的承重组件。
所有的房间隔断、固定装置和建筑围护结构都是在装配式结构中制造的。这使得建筑具有足够的开放性和灵活性,便于今后的改建。承重结构、窗户构件、墙壁构件以及门等构件的连接,在可能的情况下慎重选择对天然二氧化碳中性材料,这有助于实现尽可能低的一次能源消耗。
精选的优质材料清晰地组合在一起。我们希望利用尽可能自然、无毒和来自可再生原料的材料,以及节约使用现浇混凝土和塑料。建筑技术概念要遵循低技术方法,同时优先考虑自然遮阳和通风解决方案。
此外,粘土作为一种天然的生态建筑材料,利用其结合污染物和调节(空气湿度)的特性,改善了室内气候。因此,房间和浴室之间的内墙将涂上粘土。从房间内可以直接看到,中部和南部的屋顶被规划为种植薰衣草的绿色屋顶区域。北中堂也定期进行大面积绿化。
绿化改善了周边地区的小气候(在夏天冷却周围空气,吸附细颗粒物和污染物),提供了更好的隔音效果,延长了屋顶覆盖层的寿命。屋面保温采用岩棉(隔音效果较好,不易燃)和沥青板防水材料(天然建筑材料,易于回收利用),这被视为最佳的、最合理的生态建筑添加物。
冬日景观
项目图纸
▲ 总平面图
▲平面图
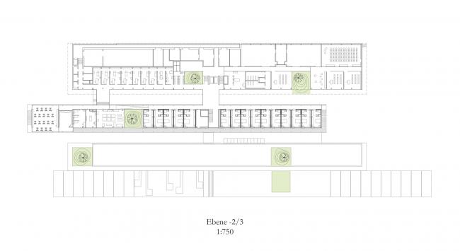
▲平面图
▲平面图
▲平面图
▲立面图
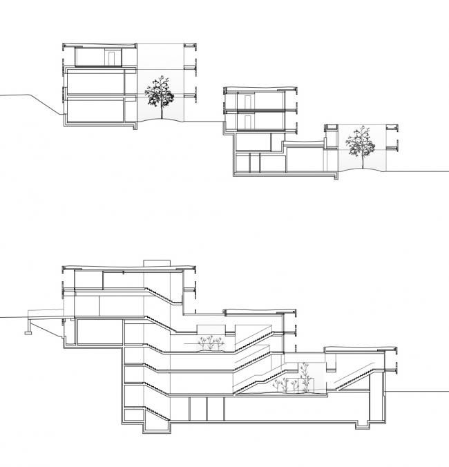
▲剖面图
▲轴测图
项目信息
设计事务所:Dietger Wisso(BIM教程)unig Architekten
地址:Haideggerweg 38, 8044 格拉兹,奥地利
类别:保健中心
设计团队:Dietger Wissounig, Stephan Schmidt, Patrick Steiner, Gernot Moser, Bettina Gossak-Kowalski, Jan Müller, Stephan Brugger, Claudia Pittino, Matthias Holzner
建筑面积:13500.0 m2
项目年份:2019
摄影师:Paul Ott,Helmut Pierer
厂家:Wittmann, Schindler Aufzüge und Fahrtreppen, Kaufmann Bausysteme
客户:Versicherungsanstalt für Eisenbahnen und Bergbau
建筑科技:Pechmann
项目管控:FCP Fritsch, Chiari & Partner
本地施工顾问:Dipl.-Ing. Diete(BIM建筑)r Eigner
电气工程师:Ogrisek & Knoppe GmbH
结构规划:Wendl ZT GmbH
建筑物理:Vatter & Partner ZT
防火顾问:Norbert Rabl Ziviltechniker
地质工程师:Insitu Geotechnik ZT
食堂规划:TB PlanQuadrat Ingenieurbüro für Gastronomie und Kältetechnik
施工方:Bauunternehmung Granit
水平监控:Ingenos.Gobiet.ZT

BIM建筑网


































