正如这所住宅展现的那样,混凝土的可塑性和结构性能呈现出无数种值得大家留意的建筑细节。
在设计早期阶段,模型制作是研究材料形状,结构功能,模块组合方式和穿透性的强大工具。模型的外部通过采用垂直和水平的轻木木条并根据标准化尺寸进行制作来代表建筑的混凝土梁柱和天窗,同时也体现了设计师脑海中清晰的结构。在施工阶段时,这个模型根据松木板条的实际尺寸再次进行精确制作,但仍然遵循它的结构特质。这在面板之间带来了凹槽,完美地按照设计师的意图强调了模块的划分。
悬在游泳池和部分住宅之上的混凝土网格模糊了室内和室外之间的界限。毫无疑问,泳池延伸到了住宅的深处,从而成为了其周围三倍容积“庭院”的规划重点。室内一整排的带框开口把其面对的室外绿植引入成为室内景观,成功活化了空间体验。
项目图纸
▲ 地下室平面图和一层平面图
▲夹层平面图和二层平面图
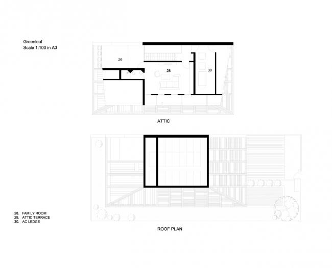
▲阁楼平面图和屋顶平面图
▲立面图
▲纵向剖面图(BIM工作)
▲横向剖面图
项目信息
建筑事务所:HYLA Architects
地址:Singapore,新加坡
类别:独立住宅
主创建筑师:Han Loke Kwang
项目团队:Yingzi Fu, Tran Thi Thu Trang, Thomas Ong
建筑面积:491.0 m2
项目年份:2018
摄影师:Derek Swalwell
厂家:Unique Home Design & Construction
结构工程师:Thymn Pte Ltd
主施工方:Emma Groups Construction Pte Lt(BIM教程)d
景观施工方:Green Forest Landscape Pte Ltd
微信公众号:xuebim
关注建筑行业BIM发展、研究建筑新技术,汇集建筑前沿信息!
← 微信扫一扫,关注我们+

BIM建筑网




















