一 工程简介
上海中心大厦位于陆家嘴金融中心,是一座集商业、办公、酒店观光为一体的综合性摩天大楼。建筑总占地面积约为30370㎡,总建筑面积574058㎡,其中地上部分建筑面积,410139㎡,建筑高度:632米。地下5层,基坑深度,31.4 m。
主楼为钢筋混凝土与钢结构组合而成的混合结构体系。竖向结构包括核心筒和巨型柱,水平结构包括楼层钢梁、楼面桁架、环状桁架、伸臂桁架及组合楼板。
二 施工技术中的重点及措施
1 主楼基坑工程
主楼区基坑采用明挖顺作法先行施工。塔楼围护结构采用121 m直径的环形地下连续墙(厚1.20 m)加6道环形圈梁支撑体系。土方开挖后形成内部无遮蔽的“井筒”,便于结构顺作。
随后逆作法施工裙房区结构。
1.1 降水方案
1、基坑内每25m设置25 m深真空管井井点疏干降水井42口,25m深的观察井4口;
2.、主楼坑内设置55 m深的减压降水井12口,45 m深的观察井3口;
3、基坑外设置65 m深的减压降水井28口;
4.、裙房两墙合一的地下连续墙内侧设置45 m深的观察井4口、外侧设置45 m深的观察井3口。
1.2 土方工程:
总土方量约38万m3。采用先开挖中部土方,再挖环边土方的顺序,分6层开挖。流程如下:
第一、二层土方(-10.37m)→第三层土方、第二道围檩(-16.42m)→第四层土方、第三道围檩(-21.42m)→第五层土方、第四道围檩(-25.42m)→第六层土方、第五道围檩(-29.30m)→第七层土方、第六道围檩(-31.60m)

2 桩基工程
2.1 基桩采用后注浆钻孔灌注桩,桩身混凝土强度C50,单桩承载力特征值10000KN。桩径1m分A、B两种;A桩长86m有效长度56m,247根桩位于核心筒区;B桩长82m有效长度52m,708根桩位于扩展区;
2.2 桩端后注浆施工,每根桩预设3个灌浆管,桩端水泥用量每根4000kg,桩端注浆终止标准采用注浆量和注浆压力双控制,以注浆量为主;
2.3 后注浆钻孔灌注桩施工工艺:
1、成孔方式:正循环钻进,反循环清孔;
2、泥浆制备:采用专用膨润土和外加剂人工拌制;泥浆除砂:ZX-250型泥浆净化装置(除砂机)除砂;
3、钻头形式:三翼双腰钻加钻具配重;
4、清孔方式一清泵吸反循环,二清泵吸(气举)反循环;
5、钢筋安装:预加工成型,直螺纹接驳器连接;
6、混凝土浇筑:导管法水下混凝土浇筑;
7、注浆:桩混凝土强度达到C45后,进行桩端后注浆。
2.4,试验与检测:对于基桩100%进行低应变动测、超声波(透射法)、成孔质量(孔深、孔径及垂直度)检测;竖向抗压静荷载试验桩取桩总数的1%,共11根。
3 主楼底板超大体积混凝土一次性浇筑
3.1 主楼区域底板为八边形,面积约9370m2,厚度6m;主楼中部有一个电梯井深坑已于前期先行浇筑完成,紧贴地下墙为裙房区底板板厚1.6m,主楼与裙房之间有一条宽3.5m过渡区,板厚由6m过渡到 1.6m。底板面标高均为-25.40m。
3.2,底板混凝土采用C50R90商品混凝土,抗渗等级P12.底板混凝土总量6万m3。本次浇筑用18台混凝土泵,60小时浇筑完成,每小时浇筑1000 m3。

主楼上部结构施工

4 核心筒施工
核心筒为劲性混凝土结构,核心筒从底部到顶部在墙体交界处内埋型钢柱;部分墙体内设有单层钢板,钢板在上下层之间采用暗梁连接;核心筒遇伸臂桁架层在墙体内设井字型伸臂桁架,贯穿整个腹墙。
4.1 钢筋工程:钢筋直径大于等于20mm时采用镦粗直螺纹机械接头连接,其余采用绑扎搭接连接。
4.2 混凝土工程:核心筒强度等级C60,压型钢板组合楼板C35。采用固定泵接两台布料机浇筑。
4.3 模板工程:12层以下采用VISA芬兰大模板,13层以上采用钢框大模板,模板面用芬兰维萨胶合板定型大模板,肋及围檩用型钢制作。
4.4 脚手架工程:1-8层用落地式脚手架,9-12层用悬挑式脚手架,13层以上用液压顶升钢平台。
4.5,核心筒标准层(非伸臂桁架层)钢平台爬升流程:







5 外围框架(巨型柱)及楼板施工


核心筒外围框架施工流程示意图
5.1 巨型柱模板

5.2 外围框架施工脚手架:

6 核心筒内部楼板施工
采用压型钢板组合楼板。

三 施工技术中的重要机具设备
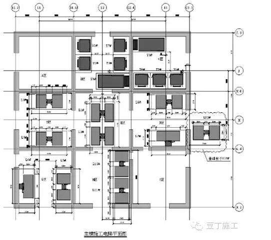
1 施工电梯
1 核心筒内布置20台施工电梯。其中:人货梯11台,利用永久电梯作施工电梯的9台。

2 按用途分类:
A 输送施工人员往返,电梯为高速、双笼人货两用梯;
B 幕墙、二次结构、装饰、机电安装等人员及材料的运输,电梯为高速、单双笼结合的人货两用梯;
C 利用永久载入电梯作施工电梯。
2 混凝土固定泵
从混凝土泵送 设备、混凝土布管工艺、混凝土性能三个方面制定具有针对性的施工方案。
1)用三一重工混凝土固定泵送系统核心筒高度200m以下用HBT90CH-2135;核心筒高度200m-556m范围用2台备用1台用HBT90CH-2150;核心筒高度556m-632m范围用1台备用1台HBT90CH-2150。
2)混凝土垂直输送泵管:直径150mm、壁厚10mm,用两种耐磨合金钢复合材料制作,内表面高频淬火硬度HRC60以上。
3 布料机
核心筒混凝土施工用2台臂长28m布料机浇筑。
4 塔吊
4.1 在核心筒四个外立面布置四台超大型塔吊。其中:3台为法克福M1280D,1台为南京中升ZSL2700。前者起重力矩达2450tm,半径20m内的最大起重量达100t。南京中升塔吊半径26m内的最大起重量达100t。
4.2,塔吊采用外爬,即将自行设计的爬升框固定在核心筒外立面上,塔吊的重量则通过爬升框传递到核心筒。
爬升框检测:采用振弦式应变传感器和无线采集系统,通过实时监测爬升框的应变情况,以此判断塔吊拼装、爬升、运营过程中的爬升框的应力是否满足要求,并为设计计算提供依据。

BIM建筑网


