BIM建筑网
更专业的BIM技术学习网站!


第十期全国BIM技能等级考试二级建筑专业试题真题下载

第十期全国BIM技能等级考试二级建筑专业试题真题下载 二级建筑 第1张

第十期全国BIM技能等级考试二级建筑专业试题真题下载 二级建筑 第2张

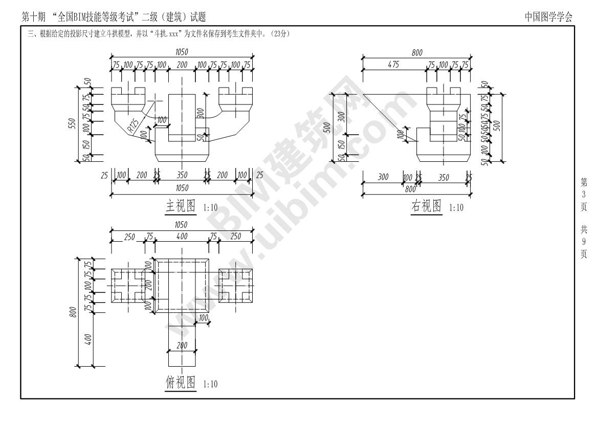
第十期全国BIM技能等级考试二级建筑专业试题真题下载 二级建筑 第3张

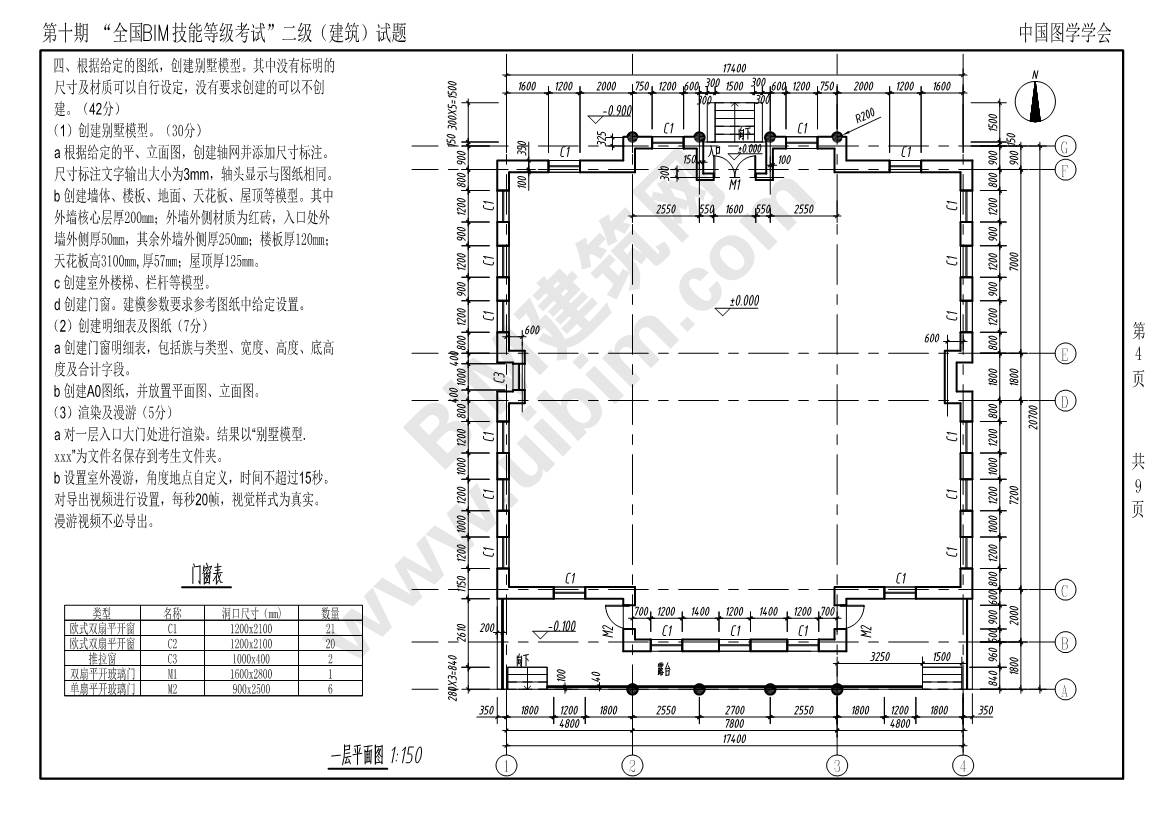
第十期全国BIM技能等级考试二级建筑专业试题真题下载 二级建筑 第4张

第十期全国BIM技能等级考试二级建筑专业试题真题下载 二级建筑 第5张

第十期全国BIM技能等级考试二级建筑专业试题真题下载 二级建筑 第6张

第十期全国BIM技能等级考试二级建筑专业试题真题下载 二级建筑 第7张

第十期全国BIM技能等级考试二级建筑专业试题真题下载 二级建筑 第8张

第十期全国BIM技能等级考试二级建筑专业试题真题下载 二级建筑 第9张

第十期全国BIM技能等级考试二级建筑专业试题真题下载

资源下载此资源仅限注册用户下载,请先
技术支持,放心下载!

  • 资料名字:第十期全国BIM技能等级考试二级建筑专业试题真题下载
  • 如何下载:用户在线自助下载,快速获得资料;
  • 资料说明:该资料经过小编严格测试,确认没有错误后,面向广大用户提供使用;
  • 注意事项: 1、如果资源出现不能下载,请及时联系我们,我们将尽力为你解决。
    2、本站资源来源于互联网,如有侵犯您的版权,请联系我们!我们会在24小时内删除。
    3、联系邮箱 | service@bimii.com
  • 资料标签:
  • BIM建筑网,更专业的BIM技术学习网站!

    关注建筑新动态,分享建筑新技术

    联系我们关于BIM建筑网

    觉得文章有用就打赏一下小编吧

    非常感谢你的打赏,我们将继续提供更多优质内容,让我们一起创建更加美好的网络世界!

    支付宝扫一扫打赏

    微信扫一扫打赏

    扫码登录

    微信「关注」,快捷登录
    扫码关注后会自动登录
    注册登录代表您已同意《用户许可协议》
    账号登录 | 其他登录

    |登录

    找回密码

    |账号登录注册