BIM建筑网
更专业的BIM技术学习网站!


装配式研究|钢结构建筑构造图集【墙板构造】

一、外墙与地面连接

装配式研究|钢结构建筑构造图集【墙板构造】

装配式研究|钢结构建筑构造图集【墙板构造】

装配式研究|钢结构建筑构造图集【墙板构造】

二、彩钢泛水板

装配式研究|钢结构建筑构造图集【墙板构造】

三、墙角,彩钢包角板

装配式研究|钢结构建筑构造图集【墙板构造】

四、外墙与柱连接

装配式研究|钢结构建筑构造图集【墙板构造】

装配式研究|钢结构建筑构造图集【墙板构造】

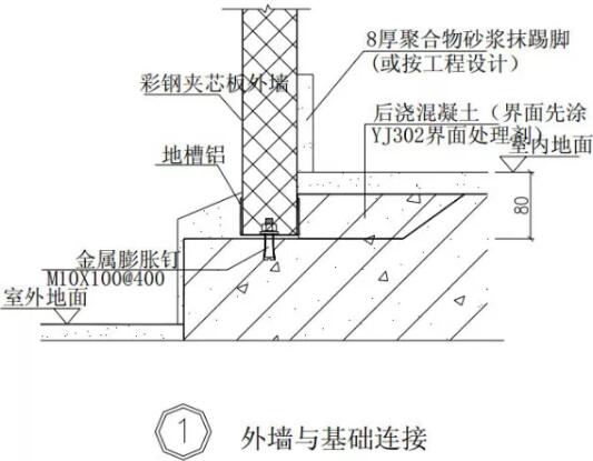
五、外墙与基础连接

装配式研究|钢结构建筑构造图集【墙板构造】

装配式研究|钢结构建筑构造图集【墙板构造】

六、内墙与基(装配式住宅)础连接

装配式研究|钢结构建筑构造图集【墙板构造】

装配式研究|钢结构建筑构造图集【墙板构造】

七、墙与砖墙连接

装配式研究|钢结构建筑构造图集【墙板构造】

八、外墙转角

装配式研究|钢结构建筑构造图集【墙板构造】

装配式研究|钢结构建筑构造图集【墙板构造】

装配式研究|钢结构建筑构造图集【墙板构造】

装配式研究|钢结构建筑构造图集【墙板构造】

装配式研究|钢结构建筑构造图集【墙板构造】

装配式研究|钢结构建筑构造图集【墙板构造】

九、外墙纵向连接

装配式研究|钢结构建筑构造图集【墙板构造】

十、外墙纵向拼接

装配式研究|钢结构建筑构造图集【墙板构造】

装配式研究|钢结构建筑构造图集【墙板构造】

微信公众号:xuebim
关注建筑行业BIM发展、研究建筑新技术,汇集建筑前沿信息!
← 微信扫一扫,关注我们+
赞(0) 打赏
BIM建筑网 » 装配式研究|钢结构建筑构造图集【墙板构造】

BIM建筑网,更专业的BIM技术学习网站!

关注建筑新动态,分享建筑新技术

联系我们关于BIM建筑网

觉得文章有用就打赏一下小编吧

非常感谢你的打赏,我们将继续提供更多优质内容,让我们一起创建更加美好的网络世界!

支付宝扫一扫打赏

微信扫一扫打赏

扫码登录

微信「关注」,快捷登录
扫码关注后会自动登录
注册登录代表您已同意《用户许可协议》
账号登录 | 其他登录

|登录

找回密码

|账号登录注册