1大空间建筑的优点
大空间建筑以其分隔可变的优点,受到追捧。购房者可根据家庭人口变化和需求,通过对室内进行重新分隔和划分,重新组合卧室和客厅布局,不用换房即可满足需求。比如在初期,年轻人要度过甜蜜的二人世界,闲暇之余和朋友聚会,需有一个较大的客厅和1个留宿的客房,此时主卧、客卧、大客厅和书房的布局比较合理;等有了孩子,就要求有主卧、儿童房、保姆房、书房和功能简单的客厅了;到孩子长大成家出去住了,自己的父母需要共同生活予以照顾时,儿童房和书房可合并成一个老人套房,保留一个小客厅,在客厅旁边划出一个书房。这样一套房子可满足一个小家庭从组建、成长到晚年的不同需求(见图1)。
装配式建筑实现大空间的思考
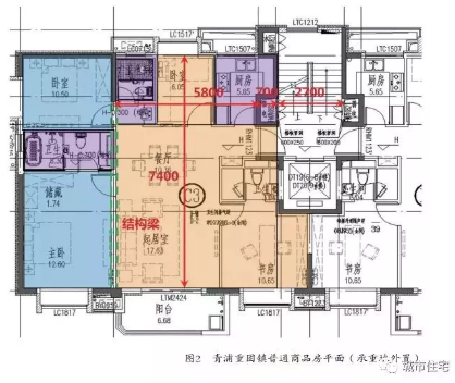
2.1 承重墙外置
中国住宅梦公园样板间项目将承重墙体布置在周边外墙和分户墙处,针对不同的生活需求,体现了大空间布局灵活多变,轻松应对家庭不同阶段和个性的需求。套型可根据不同的要求进行调整,实现两房、三房、四房等不同分隔的需求。图2为青浦重固镇普通商品房平面示意。
2.2 设备管井外置
将设备管井置于建筑外部,更有利于大空间建筑分隔的灵活性。同时,设备管井外置还可节约套内空间,也便于二次装修改造,而管井外置设计时需要结合建筑专业,对建筑立面进行统一协调处理(见图3)。
2.3 大板结构卫生间处理
1)不降板
这种方式是本层的排水管穿过楼板,排水横管在下层住户卫生间的上空,如图4所示。这种情况下,卫生洁具的安装位置比较固定,在今后装修改造时,卫生洁具的变动比较困难。
2)整体降板
将整个结构楼板面标高降低150~180mm,卫生间采用多通道特殊地漏及多通道接头,马桶采用墙排水马桶,马桶后面采用封闭墙(夹层),如图5所示。这种方式可兼顾铺设地暖所需的空间,但需采用特殊的马桶、地漏及排水管道接头,限制了设备采购的多样性和灵活性。
3)局部降板
一般仅在卫生间区域结构楼板降低300~350mm,立管穿楼板,水平管在降板区域的楼板上面铺设,这是同层排水比较常用的方式(见图6~8)。优点是洁具有较多的选择性,维修和改造不受任何影响,但降板周边有暗梁,板底可见局部凸起。
3试验验证
针对常州帝景36号楼项目进行了大板足尺试验,跨度为7200mm×7800mm,目的是通过试验,验证设计理论分析结果,并对结构采用装配式大跨度板的受力性能进行系统研究和评估,对结构正常使用时的舒适性、安全性进行系统评估。
试验如图9-11所示,通过加载和卸载准永久值、标准值、设计值的荷载,对板挠度变形进行实测,测试结果与理论计算吻合较好。在不同荷载状态下,对舒适度进行测试,楼板自振频率均大于规范规定的5Hz,其中最不利的是在加载标准值情况下,自振频率为7.324Hz,即不会产生共振。在试验中发现,在大板周边的小墙肢和大跨梁出现了一些裂缝,位置如图12所示。
针对这些裂缝,对设计进行修改,并通过以下措施的实施,在实际工程中没有出现裂缝。
1)加大短肢墙截面尺寸,并加大梁搭接方向的配筋。
2)加大梁高,并加大梁箍筋和纵向配筋。
3)加大板顶附加配筋:Ф8@150双向拉通,支座处设附加钢筋并适当放大。
4)在影响范围内布置附加钢筋,每个方向每边至少(装配式建筑)3根Ф10钢筋。
责任编辑:施丹丹

BIM建筑网









