▲ 户外天井
在俗世里寻见璞真宁静、和谐无扰的清静之所,无论什么时代皆让人心向往之,恰如<桃花源记>描述渔人缘溪而行意外发现秘境的故事:「忽逢桃花林,夹岸数百步,中无杂树,芳草鲜美,落英缤纷,渔人甚异之﹔复前行,欲穷其林⋯⋯」这豁然开朗的感受成为此案设计的灵光。
厦门中南地产两个别于传统售楼处的前提:售楼处建筑日后将供在地小区永续使用,其二,两层楼空间除接待入口,大部分使用面积位于地景下。如何发挥与外隔绝独立场域的特点,同时维持阳光、空气与水三元素的环境架构,是负责此案的水相设计首要设定的课题。
▲ 立面图
▲ 鸟瞰图
▲ 鸟瞰图
茶之源,取一瓢饮
预期未来小区应用的蓝图,我们从一楼入口开始建立串连在地记忆的地景。过往村镇生活总以老树为集会核心,联结人们交换日常信息与情感,生活大小事向树下靠拢是习惯也成一种集体记忆。而茶,又是老厦门的文化主轴及精髓,烹水泡茶、以茶待友是仪式更是生活,无关乎茶的等级,饮的是自在净心。
▲ 设计概念
一座湖泊环绕映衬天光的玻璃茶庭是序曲,如透明容器装载着茶席上的仪式行为,外在川流的喧嚣对应内部不疾不徐的宁静,沉淀人们踏入后的心境。茶亭中央横过一道流水长桌穿透玻璃帷幕,于桌边烹茶品茗时水声不断潺潺流入湖泊,冲出一室韵味舒展。虽非重现王羲之流水以泛酒的曲水流觞,但清流激湍、映带左右的雅趣亦不远矣。
▲ 接待柜台,茶桌
▲ 接待柜台,茶桌
▲ 接待柜台,茶桌
光之源,欲穷其径
茶席旁地板有处开口,是通往湖泊下方洞穴的阶梯。大抵这世间所有传奇的世外桃源皆始于一处隐而不显、难以觉察的入口,是以外人屡屡探寻里头那从容不受打扰、时光悠然的生活。透过这段昏暗无饰的地下廊道,洗礼人们的日常杂绪从而沉淀心绪回归本质。至此,再循着廊道末端隐晦微光引导,踏入隐身湖底另处截然不同、豁然开朗的场域。
▲ 至地下一楼通道
▲ 至地下一楼通道
▲ 至地下一楼通道
▲ 至地下一楼通道
▲ 户外天井入口
别有洞天的地底因着环形天井纳入阳光,引水、借光而在湖底世界滋养了一株向天伸展的树,形成天地循环最单纯的模样。白昼任树影在室内游走,人们卸下行程计划、卸下惯性速度,仅就着枝叶淡影享受遮荫、靠拢相聚,以自然直觉阅读日夜和四季,用一盏又一盏茶来记录时光,超脱城市时序的空间,让人得以用舒适的吐纳节奏感受光阴变化。
▲ 鸟瞰图
▲ 户外天井,用餐区
▲ 户外天井,用餐区
▲ 用餐区
▲ 用餐区
▲ 用餐区
▲ 共享厨房
▲ 共享厨房
▲ 用餐区
▲ 阅读区
▲ 户外天井,阅读区
▲ 户外天井,阅读区
隐于湖,时间让物浸润成画
抬头可见周围穿透屋顶的上层湖水,让水面筛过日光温柔荡漾在墙,无声摇曳的光束宛如隐身湖面下,地表的车水马龙与自己拉开了平静的距离,在湖底发生的事,不受日常时间约束。
▲ 共享厨房
▲ 共享厨房
▲ 用餐区,阅读区
▲ 阅读区
▲ 阅读区
▲ 阅读区
▲ 阅读区
▲ 书架
为延续外界不染的超然感受,我们屏弃了矫饰与刺激感官的色彩,回归温润、自然质朴的材质,并维持纯粹的质地与触感。过程中极力避免过度表现的形式,以直觉性的线条架构空间。因为简洁,使用者可不受干扰地觉察自然光影、色调。去装饰的语法又见如墙上长幅画卷,如当代水墨去具象轮廓与文字的淡泊飘渺气氛,滤去观者心绪里的纷扰,只有随着年岁渐显风霜的铜记录时间,映衬人们在历史洪流中努力所留下的变化。
▲ 阅读区
▲ 阶梯教室
▲ 书架
▲ 阶梯教室
▲ 展示区
▲ 展示区
▲ 办公室廊道
▲ 办公室廊道
▲ 卫生间
连结土壤脉络的手作陶器,遗留木头上的清香,藤编严严密密织着的起伏,它们都在细微处藏着差异,那是物叙述记忆和故事的肌理,是情感流动的微观,作为茶席、建筑里的点缀,它们亦是日后人文活动的楔子。
▲ 室内装饰
城之心,养树亦养情
无论是售楼处或作为日后小区艺文活动中心,我们撇除过分具体的功能框架,希望以设计创造一处开启对话的场域。因都市化疏离的个体,能寻回围绕着树相聚、闲话家常的群体凝聚引力。「便要还家,设酒杀鸡作食,村中闻有此人,咸来问讯。」桃花源里人们平实相待的性情、聚落和谐气氛,盼能在此重现而成为新小区珍贵的生活底蕴。无论外界如何喧闹、城市怎么蜕变,寻到秘境的入口潜行湖底,总能从异于寻常的视角找到宁静。
▲ 鸟瞰图
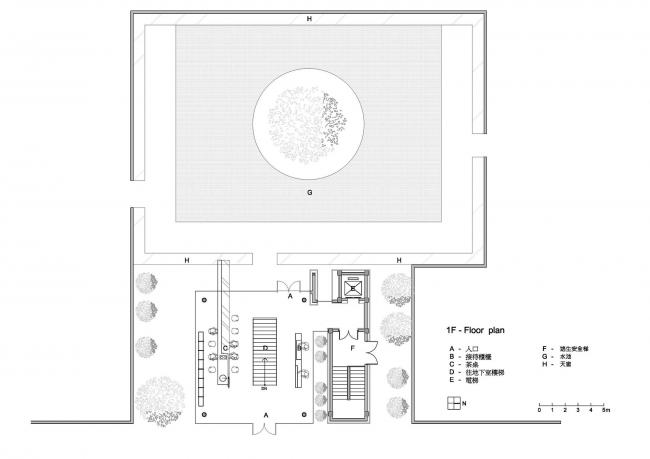
▲ 一层平面图
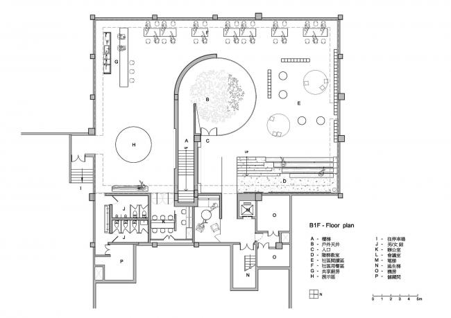
▲ 地下一层平面图
▲ 立面图
项目信息
项目名称:厦门中南九锦台
空间设计:李智翔、葛祝纬、林其纬、黄昱诚、陈宥儒/ 水相设计Waterfrom Design(http://www.waterfrom.com)
软装设计: 水相设计Waterfrom Design + 万有引力室内设计有限公司
业主:中南置地厦门海西区域公司(卢庆林、陈亚凤、黄焕新、柴丽敏)
空间性质:售楼处、接待会馆
座落位置:厦门翔安区
室内面积:750m2
空间格局:接待区、品茗区、阶梯教室、儿童阅读区、小区厨房、用餐区、办公区
设计时间:2019.04-2019.05
施工时间:2019.08-2019.10
主要材料:莱姆石、城堡灰石材、香杉实木、红铜染黑、黄铜染黑、手工漆、抓痕泥客石
摄影:赵宇晨

BIM建筑网























































