阿尔比大剧院将会改变城市的构造及其文化脉络。项目坐落在历史中心边缘,成为一个显著的建筑符号。为了在项目周边组织起公共空间及文化设施的网络,我们优先赋予项目的是形态而不是电影院。大剧院是本项目的核心。
▲ 项目位置
文化小巷沿途,不同的公共空间鳞次栉比,点缀着从大教堂到罗什古德大公园的通道。这条小径起始于 Sibille 大道建造的广场,通往剧院所在地,并向前继续延伸到 Athanor 前的电影院所在地,最终向公众园地敞开怀抱。设计灵感来自由众多文化建筑间的传承、排列、互动而激发的“城市走廊”。
▲ 区位平面
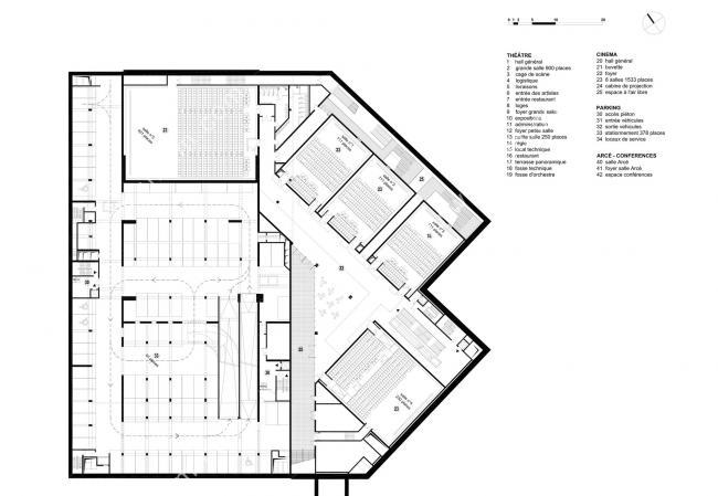
建筑师选择以在城市中标注建筑的地址来清楚地将不同的建筑进行界定。因此,保存完好的 Athanor 楼经过整修,成为电影院的入口,形成了“冰山”浮于水面的可见部分,提供了一个巨大的大堂,并在广场层可能兼有购物店和咖啡厅。建筑师将放映厅全部置于地下空间。因此剧院的基础层全部被放映设施占据。这样的布局解放了所有的公共空间用于举办市民活动或向公众开放。
▲ 一层平面图
▲ 地下一层平面图
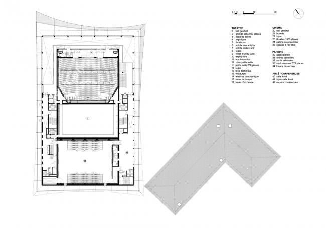
剧院极简的几何外观使其能够尝试与多功能图书馆紧邻相连地矗立在戴高乐将军大道上,在“文化街巷”的一侧形成两个类似于三角形的地块。这两处公共空间作为新的城市基础设施,布局在大剧院周围:一个向历史中心开放,另一个面向居住区。
建筑师采取了紧凑的布局,使得剧院的体量能与城市环境完美融合,尤其在台前幕后的出入口、公共空间、搬运通道等的设置上采取了一些功能性的、简约的、直接的、即时的理念。
为了使剧院的背面不必因售票处和行政功能位于实验厅楼上就变得“死寂”,建筑体的四面都得以开放和使用。
当然,剧院的唯一开口如一面大窗户一样完全以玻璃装饰并向城市敞开,可容纳大堂、画廊、露台和大礼堂等等功能。
通过这个透明体,一侧通向试验厅,另一侧连接将会设置空中花园及餐厅的屋顶平台,从这个高度,人们尽可游览 Albi 城全城风貌及其周边景致。
该建筑以混凝土铸成,面层以砖结构装饰。建筑师在建筑的内外部、地面、墙面、天花板均采用同样的材料,建造一个单一材料的建筑。
相对于砖结构外观的厚重,建筑师反对使用光滑、轻质的外皮装饰剧院,采用了布料一般的红铜色不锈金属网格装饰建筑垂直的两面,而在其他面则留白,使其看起来像从剧院及影院上披散下来的巨大布料。
曲线及反曲线使这块巨大的静止的网格创造出自由的、愉悦的、诗意的建筑,巨大的拖洒而下的布则隐隐传达了歌剧舞台的感觉。但更多地,剧院会通过光照、反射、色彩等保持建筑“沐浴在亮光中”。
犹如蕾丝一般的金属编制的外皮保持了剧院的功能,同时不与城市的功能割离,它将过滤光,抵挡风雨。
这个巨大的装饰物还兼具绿色的特质。网格将调节其覆盖的空间及用途:将其撑大可形成从内向外的观景功能,使其密合则可遮挡部分结构墙,或像遮阳板一样过滤来自巨大门厅的光线。这个紧密的面纱将会在公共空间层清理出一些大块的场地,使参观者和观众进入剧场,并经由此处进入到建筑所创造的凌驾于 Albi 城上空的非凡景观。
总的来说,应采取以下措施:1.利用地下空间作为停车场及电影放映厅;2.地面公共空间的应优先预留给文化建筑;3.尽量简洁、紧凑,提供一个有效的、灵活的、经济的剧院构造。
项目图纸
▲ 总平面图
▲ 二层平面图
▲ 三层平面图
▲ 四层平面图
▲ 剖面图
▲ 剖面图
▲ 纵向剖面图AA
▲ 横向剖面图CC
项目信息
项目类型:文化建筑,剧院
项目地址:阿尔比,法国
建筑师:Dominique Perrault Architecture
面积:34000.0m2
项目年份:2014
摄影师:Georges Fessy,Vincent Boutin
厂家:Vanceva, Alucobond
当地建筑师:Christian Astruc Architects
结构工程师:VP GREEN
机械工程:ETCO
经济分析:RPO
透视图:Changement à vue
声学:Jean-Paul Lamoureux

BIM建筑网




































