在一片巨大的屋顶之下,建筑与景观融为一体。在这里,来访者可以学到最先进的可持续知识,认识到人类日常生活对海洋生物的点滴影响。该项目可以一直回溯到2014年,当时,NORD Architects赢得了瑞典马尔默地区海洋教育中心的设计竞赛,旨在通过一个地标性的建筑作品,拉近来访者与海洋和可持续领域间的距离。同时,该项目还模糊了建筑与景观之间的界限,通过一定的手段,将两者融合在一起,以实现从海岸到海洋的平稳过渡。
海洋教育中心的宗旨,意在通过知识、意识和责任这三个角度的市民教育,从公众、商人和决策者这三个群体的角度,提升海洋的现有条件。同时,该中心还希望将学校的课堂和在地的家庭都带入到这一教育空间之中。基于与当地大学和研究机构的合作,该海洋教育中心旨在营造一个经久不衰的创意和教育空间。
建筑师在巨大的屋顶之下设计了多个灵活可变的学习空间,旨在模糊室内与室外的明显边界,从而使来访者可以全身心地浸入与海洋生物相关的各类科学实验知识中。同时,建筑师在设计过程中,还充分考虑了建筑的可持续性,尤其是在其屋顶的设计中,利用了多种可持续设计的理念和技术。
例如在竞赛方案中所呈现的水循环处理技术、太阳能发电技术以及通风设施的安装利用,都在实际空间中得以实现,并同时成为了来访者学习相关可持续知识的典型案例。此外,建筑师还在海洋教育中心的设计中,充分考虑了其未来基于各种新兴技术和空间使用需求而产生的变更可能。
项目图纸
▲ 总平面图
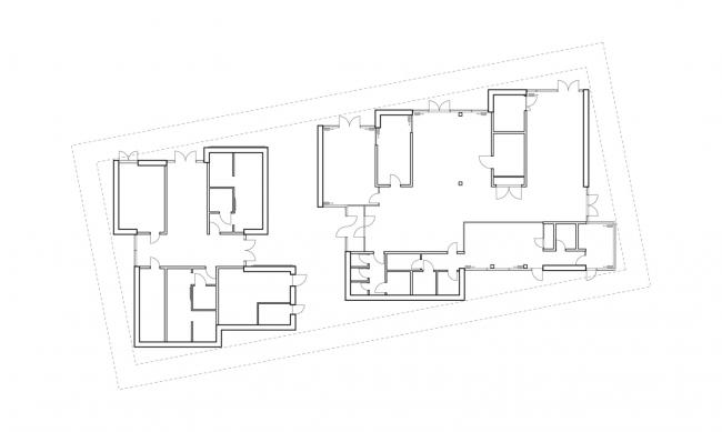
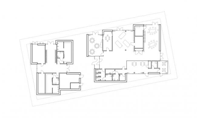
▲ 平面图
▲ 平面图
▲ 剖面图AA
▲ 剖面图BB
▲ 分析图
▲ 可持续分析
项目信息
项目类型:文化中心
项目地址:MALMÖ,瑞典
建筑设计:NORD Architects
面积:700.0平方米
项目年份:2018
摄影师:Adam Mørk
业主:City of Malmo
工程设计:Sweco (Grontmij) Malmö
景观设计:NORD Architects

BIM建筑网

















