所属分类:BIM模型
文件大小:12.54MB
文件格式:.rvt
模型简介
本资料为BIM模型-revit模型-三层Revit商务办公楼模型
BIM模型-revit模型-三层Revit商务办公楼模型
BIM模型-revit模型-三层Revit商务办公楼模型
三层Revit商务办公楼内部
三层Revit商务办公楼东立面
三层Revit商务办公楼剖面
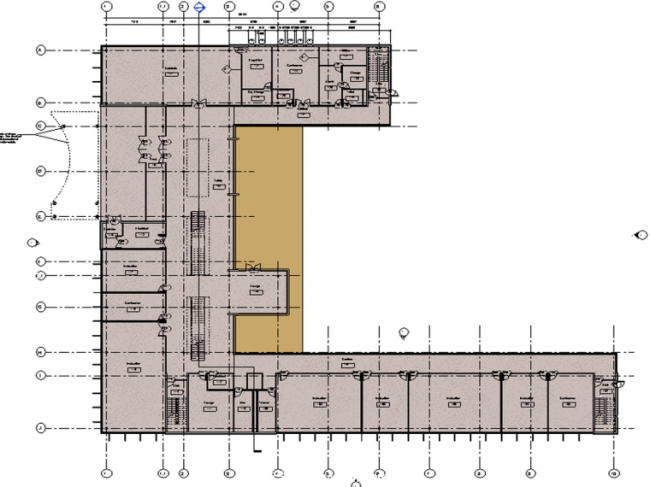
三层Revit商务办公楼楼层平面图
BIM模型-revit模型-三层Revit商务办公楼模型

所属分类:BIM模型
文件大小:12.54MB
文件格式:.rvt
本资料为BIM模型-revit模型-三层Revit商务办公楼模型
BIM模型-revit模型-三层Revit商务办公楼模型
BIM模型-revit模型-三层Revit商务办公楼模型
三层Revit商务办公楼内部
三层Revit商务办公楼东立面
三层Revit商务办公楼剖面
三层Revit商务办公楼楼层平面图
BIM模型-revit模型-三层Revit商务办公楼模型