在全球化大趋势影响下,信息的交流与共享变得日益频繁,不同区域之间文化相互影响且建筑的地域性似乎也随之削弱。因此营造区域场所的归宿感、对建筑在地性的研究近几十年也越来越被人所重视。受气候、建造技术、历史事件等因素影响,川西传统民居整体呈现出一种素雅、有机、极具生活气息的建筑形态,这在工业化、追求效率、模块化的当下显得极其可贵。发展与新技术的本身并无过错,而单纯仿古建筑也存在着与现代生活方式的冲突性,如何延续其地域性并对川西传统民居建筑风格特征进行现代转译,是本文所探索的方向。
引言
建筑的“在地性”是一个常被人们讨论的话题,而大量的新建建筑却是打着“历史传承”的旗号,只是对传统历史建筑进行一些表层元素的提取。如何让新建建筑由场地“生长而出”,是一个值得我们深思的话题。我们试图通过对农科基地展示中心的设计创作进行分析,提出一种建筑与场地融合共生,及川西民居建筑风格特征现代转译的原则与方法,为川西传统民居的传承与发展提供一定的参考价值。
本案位于成都大邑东部天府田园度假区,在国家乡村振兴,打破城乡二元结构,城市向乡村存根溯源这一大背景下,打造以田园酒店(民宿)为核心,以科普亲子,主题乐园,康养文化体验为活动内容的川西林盘田园综合体。农科基地展示中心为整个项目的农业技术的研发与展示中心,也是传统川西民居田园生活的一种标志。项目用地面积为1544.45m²,总建筑面积为967.91m²,容积率约为0.63。建筑密度约为30%。[1]
集体记忆的重塑——传统建筑符号的回应
作为承载着集体记忆的场所空间,这关乎于世代生活于此的居民的情感与记忆的共鸣。组成川西传统民居建筑特征的元素有许多,表层的、深层次的、积极地、消极的,我们没有简单的“拿来主义”式的模仿传统,而是对其建筑特征进行深入的研究分析,提取最主要的元素并且在设计过程中进行现代的转译,从而达到川西居民的集体记忆的重塑。如何在抽象转译过程中延续其集体记忆,这是一个需要反复推敲的过程。
形成川西传统民居建筑特征的因素有很多,气候、历史事件等都对其有着极大的影响。川西平原地势平坦且气候宜人,为亚热带湿润季风气候,年平均温度约为18°C,同时因为降雨量较多,又有“雨都”之称,同时川西平原历史上也是一个移民非常频繁的地区,本土文化与外来文化持续的产生碰撞、沟通与融会,这些都不断对其建筑风格产生影响,逐渐形成今天的川西民居。
1. 干栏式建筑形式的转译
川西传统建筑形式,追源溯本,不得不提到干栏式建筑。由于气候与功能需求等因素,干栏式建筑一般底层架空,楼面住人,围护结构采用木柱排列的形式。一方面底层架空及满足川西地区多雨潮湿的防潮要求,同时也可用于养殖与种植,满足功能的便捷性。我们在设计过程中一定程度上延续了此建筑形式,底层架空作为开放式的种植展览空间,二层的建筑立面由玻璃幕墙与钢结构杆件构成,其搭建形式经过有意识的美学设计,在满足力学合理性的同时,也呼应了传统川西民居立面“穿斗格子墙”的建筑特征。
2. 连绵屋顶的转译
传统川西民居的多采用双坡顶的建筑形式,且纵横相连,连绵起伏的大屋顶构成川西居民在檐下来往穿梭的极具生活气息的微型小世界。其屋顶形式多为有悬山与硬山两种,屋面一般采用小青瓦铺设且再屋脊处设有复杂的饰物,我们在设计过程中采用抽象处理的设计手法,只提炼出双坡顶的基本屋顶符号,通过多层次、有机的折叠变化来进行重构,结合现代的建造工艺技术,通过现代化的转译,希望在保留传统川西建筑“大屋顶覆盖”的集体生活记忆的同时,也充分体现了农业科研展示基地所应体现的科技感。
3. 色彩元素的提取
川西传统民居的建筑色彩受建造技术与建设用材的地域因素的影响,整体呈现一种淡雅,自然的格调。我们经过前期对当地民居进行了大量的图样采集研究,然后通过对图像进行像素化提取色彩元素,得出其原则从而进行现代转译。简单的模仿传统,则意味着当下时代的缺席,我们试图站在时代基础上传承川西传统建筑形式,选用光敏高密度水泥纤维板这种现代材料作为建筑屋顶与部分立面的材质,部分墙面选用了灰白色火山岩与木纹贴面,在感官上延续了传统民居质朴感的同时,也发挥了现代科技环保节能的优势。
4. 挑檐和檐廊
川西传统民居多设有挑檐与檐廊,其在空间体验上与功能使用上均有着非常积极的意义。挑檐与檐廊一方面形成了室内外之间过渡的灰空间,丰富了空间体验;一方面在炎热且多雨的川西地区起到遮阳躲雨的作用,同时对墙体也起到一定的保护作用。本案采用钢结构体系,以现代的建造技术营造出架空层、大面积檐下灰空间及外延挑台,附以底层地景式的建筑形式使得檐下空间尺度更为多变灵动,丰富与立体。来往人群在其自由穿梭与停留,在“室外空间”——“半室外空间”——“半室内空间”——“室内空间”中转换,配以自然绿化对空间的嵌入构造出宜人的空间场所。
5. 小结
我们在设计的过程中始终秉持着一种批判性怀旧的态度,不止流于表像层面的传承,而是对川西传统民居的建筑特征进行深层次的挖掘,在设计过程中通过“解构”的方式进行偏移、重组、抽象等手法对川西传统居民的集体记忆场所进行重构,同时我们也结合了现代新的建造技术工艺以及客观需求进行重新塑造。以当代的形式语言重构传统元素,以当代的建构方式实现在地的场景表达,可能是当前乡村建设营造中较为适宜的理念和趋向。[2]
场所营造——与场地的融合共生
诺伯舒兹①提出“场所是出发点也是我们探讨结构的目标,一开始场所是以一种既有的且透过自发性经验的整体性显现出来,最后经过对空间及特性的观点分析之后便像是一个结构世界。”[3]这里涉及到人为场所与自然场所的关系,我们在设计过程中充分建筑与自然之间的对话,试图营造的空间为自然景观的一种延伸。
农科基地功能分为展示与办公两块,为整个项目的农业技术的研发与展示中心。为体现田园生活的标志性,农科基地充分贯彻与场地融合共生的理念,强调建筑空间与田园景观的延续性,在展示的这一块有别于传统的参观者被动的接受信息的模式,而是采用“开放式”“游览式”“参与式”等多层次的展示形式。其功能不再为单纯的相对封闭的陈列展示,而是强调空间与场地的对话以及参观者的参与性,使之更为深刻的体验田园生活文化。
农科基地的底层架空为农业种植的展示区,采用半室外开放式展示形式,为田园景观对建筑的空间的一种延续。地景式的建筑形式也构建出一个轻松愉快的交流沟通平台。沿底层展厅通往二层的流线设有活动平台以及植物展示架,既展示了一种新的种植技术,同时也是田园景观往二层建筑的一种延续,营造一种游览式的展示空间,建筑在其中作为一种媒介,链接人与自然。
农科基地的二层功能为研发办公与室内展示中心,设有办公、休闲、多媒体展示与相关配套功能。建筑采用“十字”形态的形式,立面大面积的采用玻璃幕墙,使建筑对田园景观呈现一种“开放对话”的姿态,能全方位、最大程度的享有田园景观视野。
▲ 开放式、游览式展示空间示意图
▲ 室内展示与研发办公空间示意图
生态绿色环保理念下的新材料及新技术的运用
1. 结构体系
本方案采用全装配式钢结构,结构系统由钢(构)件构成,钢结构、围护系统、设备与管线系统和内装系统做到和谐统一的装配式建筑,具有以下优点:1. 装配率高,易拼装;2. 抗震性能好;3. 建筑总重轻 ;4. 环保效果好(可回收、再利用、降低浪费);5. 基本无湿作业 ;6. 减少工地建筑垃圾,扬尘减少;7. 施工速度快,现场噪音小 ;8. 无需夜间施工,减少夜间照明。
2. 新型环保材
本项目采用100% 无石棉、绿色安全环保的纤维水泥板,材料具有以下优点:1. 不产生毒气,无放射污染,环保生态;2. 不燃性A 级,遇火无毒气释放,烟指数为零;3. 质轻高强,降低建筑结构成本;4. 优质纤维和特制水泥合成,性能稳定性卓绝,受潮度影响小;5. 保温隔热性能好,降低能耗。
3. 小结
在绿色建筑越来越被人所重视的当下,农科基地展示中心在设计过程中充分考虑了生态绿色环保理念下的新材料及新技术的运用,贯彻绿色建筑降耗,节约资源等原则,并保持建造技术、建造形式的“新”与川西传统民居的“旧”之间的平衡点。
▲ 建筑实景
▲ 底层入口
▲ 底层架空空间
▲ 观景平台
▲ 檐下空间
▲ 内部实景
结语
经历中国近代史的沧桑及近数十年西方建筑文化的影响,中国传统建筑文化受到了极大的冲击,而部分的中国建筑师往往只采用单纯复古的形式来表达建筑的地域情怀,这里存在着一些现代的生活方式及文化观念与传统建筑形式的冲突。建筑是生活场景发生的场所而非单纯的“博物馆”,如何表达建筑的“真实性”、让人找到一种归属感,这是值得我们深思的问题。本文对川西传统民居的建筑形式进行深入研究,并对其现代转译的原则与方式进行了一些详细分析,要是能为当代建筑设计的地域创作手法提供一些参考价值,便是本文最大的意义。
▲ 结构示意图
▲ 纤维水泥板节点示意及实物图
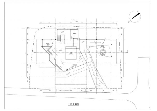
▲ 一层平面图
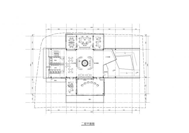
▲ 二层平面图
▲ 屋顶平面图
▲ 立面图
▲ 剖面图
[1][中国]阮国诗.稻香渔歌”田园综合体系列2:农科基地展示中心,XXL建筑研习社10/2019
[2][中国]孟凡浩、丁倩琳.乡村公共空间营造东梓关实践再思考——杭州富阳东梓关村民活动中心,新建筑4/2019
[3][挪威]诺伯舒兹.场所精神——迈向建筑现象学.施植明译,武汉:华中科技大学出版社.2010
项目信息
项目名称: 大邑农科基地展示中心
项目类型:建筑
项目地点:成都市大邑县董杨镇
项目状态:已建成
设计时间:2019.05-2019.07
建设时间:2019.08-2019.10
用地面积:1544.4㎡
建筑面积:967.91㎡
设计单位:成都天华西南建筑设计有限公司(杭州XXL设计团队)
事务所网站:https://mp.weixin.qq.com/s/DlwgfrZcbj98xLYztp8b0w
主创建筑师: 谢晓璐 、柳春玮、阮国诗
设计团队完整名单:张欢涛、刘艺瑶、李旭飞、储威
施工图:华优建筑设计院有限责任公司
景观:上海胤秀景观设计公司
室内设计:四川创视达建筑装饰设计有限公司
业主:朗基建设集团
摄影:聂欣、宋浅深、唐衫衫

BIM建筑网






















