七间房是一家运营了八年的乡村度假酒店品牌,秉持“自在,本真乐趣”的品牌哲学。第一家店从云南大理双廊的洱海边开始,一期是七个房间,于是以“七间房”命名,经过多年来的运营和发展,已形成了自己的品牌特色和风格。这是位于浙江安吉县山川乡的山村里的一家店,取名“山川乡居”,名称直接点明了这家店是在山村里的地域特点。用地是村里兄弟二人的宅基地,原有旧宅面积和质量无法满足酒店的使用,拆除之后进行了重建,内容包括建筑、室内和景观的一体化设计。
▲ 项目区位
设计之初,业主提出如下要求:
不希望设计成中看不中用的“极简”风格,为了装逼而牺牲舒适与便利,避免做成太多从媒体上看高颜值,住进去并不舒适的酒店。这一点设计师也有同感,不少追求“极简”风格的设计不但没有达到极简的艺术境界,反而给人冰冷、不便的无聊和简陋感,好的建筑空间应该是“中看也中用”。
体现当地特色。安吉如今是全国闻名的生态和旅游县,尤其是著名的国际电影导演李安拍摄的《卧虎藏龙》,主要取景地之一就是安吉的大竹海,让安吉的竹子名气更大了。另外习主席在安吉提出的“绿水青山就是金山银山”的环保理念,如今不单是安吉发展的方向,也是全国各地山区发展的榜样。绿水青山吸引了大批度假酒店、民宿来安吉开设,融入当地山水环境,体现当地风土人情。
根据当地宅基地面积指标,总建筑面积不得超过870平米,建筑檐口高度不得超过10米。建筑背后是约7、8米高的陡坡,在与陡坡保持合适距离的情况下前面庭院尽量留大,与宅前村路的距离也会远一点、静一点。实施过程中经过调整建筑背后的陡坡又往后挖了一些,做了石砌护坡。以上因素促成建筑空间必须紧凑,不能有太多非实际功能空间的炫耀。
▲ 总平面图
详细的功能有如下要求:共规划了大小不同的11间客房,从底层开始,包括入口客厅、餐厅、开放式厨房和吧台、咖啡阅览室,2间带有竹篱小院的客房。二层有5间客房。三层有4间客房和一间茶室。施工期间业主又在楼顶增加了一间小的阁楼作为个人打坐的小禅修室。
▲ 一层平面图
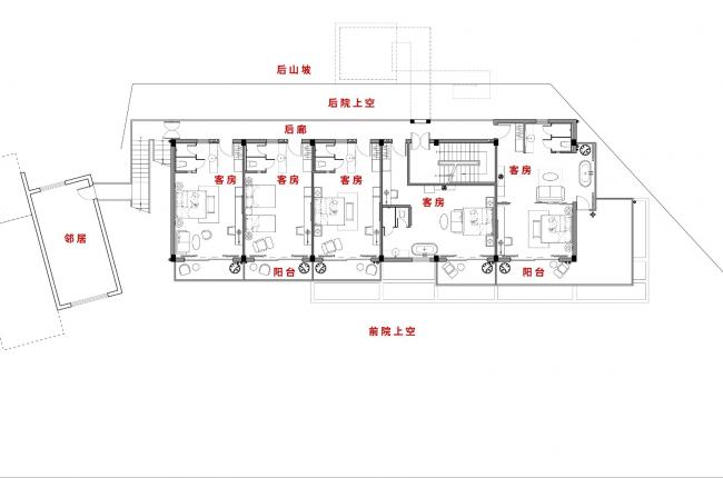
▲ 二层平面图
▲ 三层平面图
建筑后山坡上有一棵据说是安吉县最大的红豆杉树,高度约十几米,大家一致认为应该与建筑融为一体,并设计了一个钢制天桥从三楼后廊直接走到大树下的平台,从一楼后院也做了台阶折绕而上,在树荫下小憩情趣盎然。大树像一位老者静静地守护者这个院落,同时也被这个院落所尊重。
根据业主方上述要求,设计师也制定了如下策略进行回应和实施:
现代建筑设计鼻祖之一密斯·凡·德·罗提出了著名的“少即是多(Less ismore)”的设计哲学,这也是极简主义设计所追求的目标。但是对现实中很多设计项目来说“少未必多”,一是很多项目未必能做到“少即是多”,二是大多数项目需要的并不少。因此,本项目也并没有刻意去追求“少”的风格。
美国建筑师文丘里提出“少就是乏味(Less is a bore)”的设计哲学,与“少即是多(Less ismore)”相对应。但现实中又有好多建筑空间装饰过度,不但耗费了大量资金,而且并没有产生功能和美感,有些甚至给人庸俗不堪的不良感受,设计师称为“多未必少”。因此,本项目也并没有把装饰作为重要手段,不过,建筑空间一点不装饰也是不可能的,对装饰的控制是一个重点,至少不能过度。建筑外观和室内采用了竹子这一安吉重要的元素作为装饰,恰到好处,算是项目里用的最多的装饰。
对地方特色的表现也经过选择。通常每个地方都会有诸多保存或丢失的文化脉络和元素,这点安吉和全国很多地方一样也丢失了很多。比如当地农村建筑已与传统发生脱离,大量瓷砖房为主,这对前来旅游、住宿的城市人来说毫无吸引力甚至厌恶。当地粉墙黛瓦的传统民居还能零星看到一些,于是设计师把这一传统意象融进了新建筑中,当然,并不是去仿古,也不去强调土气。
当代设计手法与生活方式的融入。本项目采用的钢筋混凝土结构如今是一种最普遍的建造方式,这种方式产生的空间特点当然符合现代人的生活习惯。本项目的空间格局就是在这种结构特性的基础上划分的,平面布局简单明了,仅在局部空间稍作错落形成一些变化。建筑立面也是一个长方体块为主,横向的阳台及局部廊檐断续形成了一些凹凸关系。还有它所形成的视觉特征也是本项目的重要特征之一,混凝土浇筑完成后的一些自然肌理也保留了并没有去掩饰,更没有去贴上什么装作洋气,很多人称之为工业风。
以上几点共同构成了本项目作为一个乡村度假酒店的重要特征:自然质朴。做到以上这几点就能成就一个不错的小酒店,并没有去自我负担或标榜“中国风“或“国际化”这样的宏大命题。
虽然建设过程不算很顺利,但是由于建筑、室内和景观三者一体化的设计保证了项目一气呵成的整体气氛,尤其是在设计期间建筑、室内及景观同时构思,不分内外。在实施期间,设计也根据业主要求和现场情况做了些相应的变更和临场发挥,有些没想到的好效果,也有些难免的不足之处。比如院墙、门楼等部位也有些尺度和材质没有完全按照设计实施,分寸火候略有欠缺。软装配饰也有些物品过于追求精致反而有点腻味,失去了些许朴素质感。
都说设计是一门惊喜与遗憾并存的艺术,那生活又何尝不是一门精彩与遗憾并存的艺术呢!
项目图纸
▲ 正(东)立面
▲ 背(西)立面
▲ 侧(南、北)立面
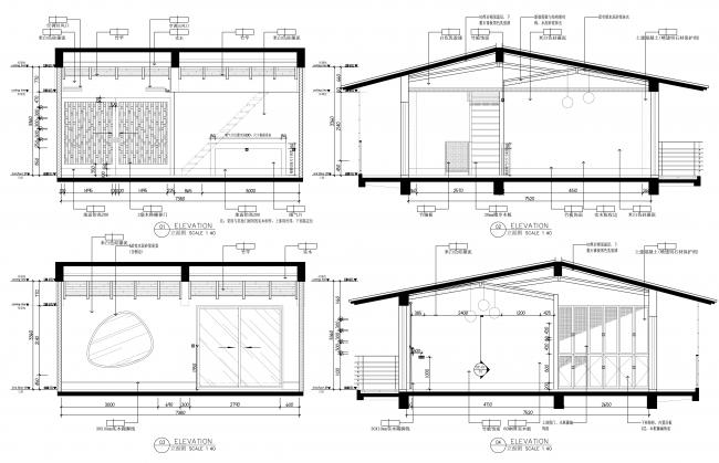
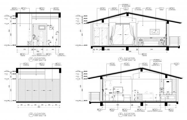
▲ AB剖面
▲ 1F书记咖啡室内立面
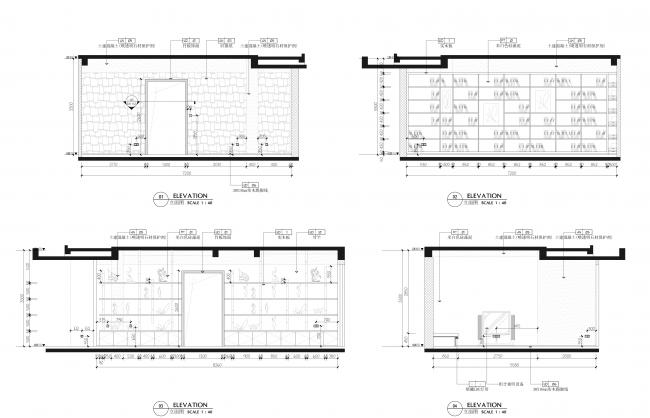
▲ 2F客房室内立面
▲ 3F茶室室内立面
▲ 3F客房室内立面
▲ 阳台护栏详图
▲ 室内楼梯装饰详图
项目信息
项目名称:七间房乡村度假酒店安吉分店建筑、室内及景观设计
建设单位:上海七间房乡村度假酒店管理公司
坐落地点:浙江省湖州市安吉县山川乡马家弄村梅石头自然村
总建筑面积:870㎡
设计内容:建筑、室内、景观
结构形式:钢筋混凝土,局部钢楼梯
设计单位:上海善祥建筑设计有限公司www.sxarchi.com
设计主持:王善祥
设计团队:王善辉,龚双艳,李哲,计滨,胡锦涛,黄国峰
结构设计:陈小飞
水电:麻理
建筑施工单位:浙江安吉陈兴华施工团队
装饰施工单位:上海畅清建设工程有限公司
景观施工单位:浙江安吉石艺园林景观
主要材质:混凝土、钢型材、纸筋灰涂料、小青瓦、木材、竹材、玻璃、石材、水磨石等
造价:约650万RMB
摄影:熊伟(主要摄影)、Isaac Zhang、王善祥
竣工时间:2019

BIM建筑网
































































