“VGI住宅”是一栋位于印度尼西亚北雅加达的私人住宅。该住宅的设计构思重点考虑了两个关键挑战:第一是北雅加达地区极端湿热的气候;第二是客户提供的面积为288 m2的狭长(9x32m)地块。对此,我们的部分设计理念是:尽可能地依赖被动降温和自然通风原则,通过对场地和气候条件的细致了解来阐明这些原则。因此,“VGI住宅”被设计为一种“呼吸装置”,空气通过室内三处空隙的公共社交空间不断地循环流动。当空气通过狭窄的、走廊般的项目场地时,它也被内部空隙从主入口引导至建筑的所有角落。
基于狭窄的场地尺寸,地块边界上的墙体作为房子的保护膜被利用起来,构建起了种有植物的小型“口袋花园”,环绕着房屋,充满了阳光和热带植物。这些“口袋花园”和上面提到的室内空隙起着半植被采光井的作用,在把柔和的热带氛围带入这个城市中的家庭空间的同时,将室内外空间融为一体。
在21世纪的气候环境下,这栋住宅试图实现自然光、新鲜空气和总体能源效率的最大化,同时仍旧纳入空调系统,通过一系列的密闭门窗将其隔离或起来包含在整个室内空间中。
本项目对于环境的考虑也体现在房屋的材料上。例如,选用现浇混凝土和大理石使房子内部保持凉爽感,使内部天井隔绝恶劣的雅加达热气。户外所有的木质细节都选用了乌林木,因为它在充满挑战的热带气候中具有极好的弹性。因此,选材超越美学上的考虑,进一步强化了房屋所设定的尽可能减少维护和总体能耗的设计目标。
项目图纸
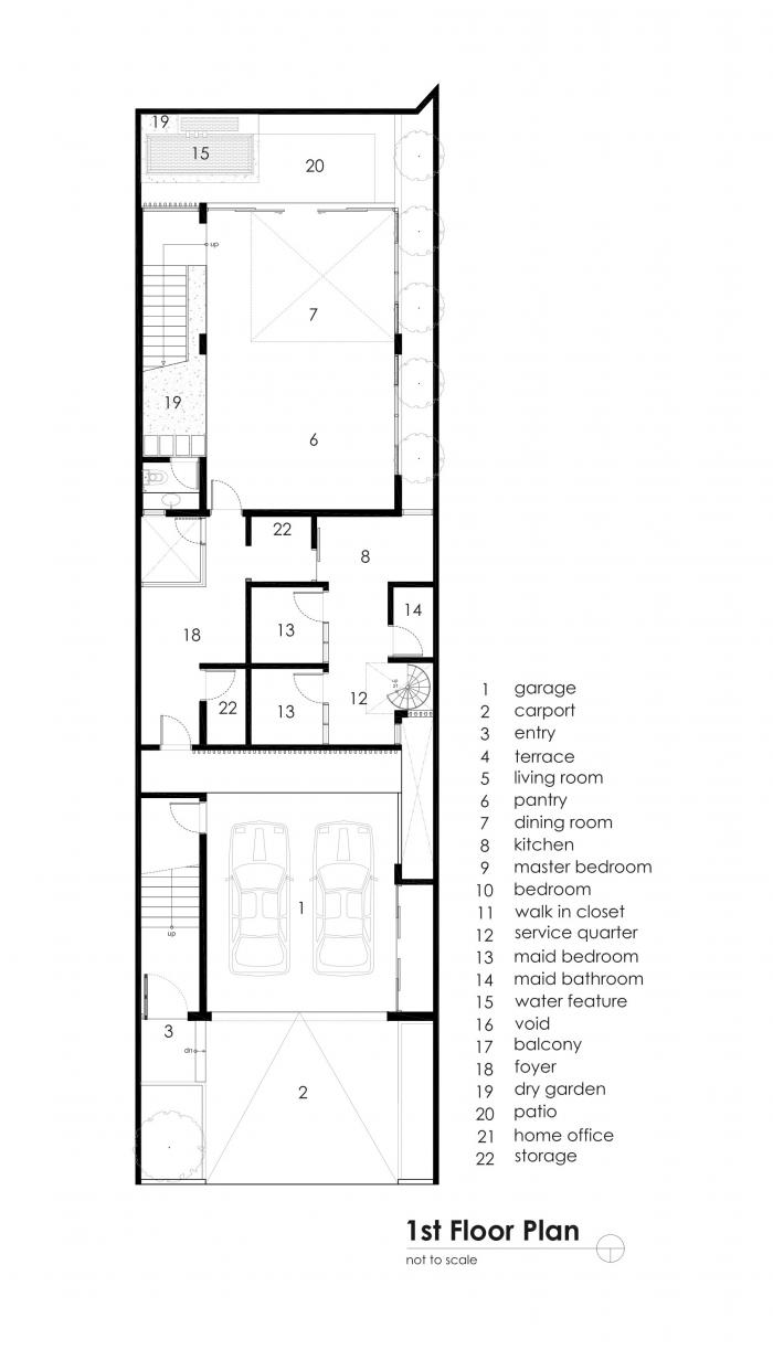
▲ 一层平面图
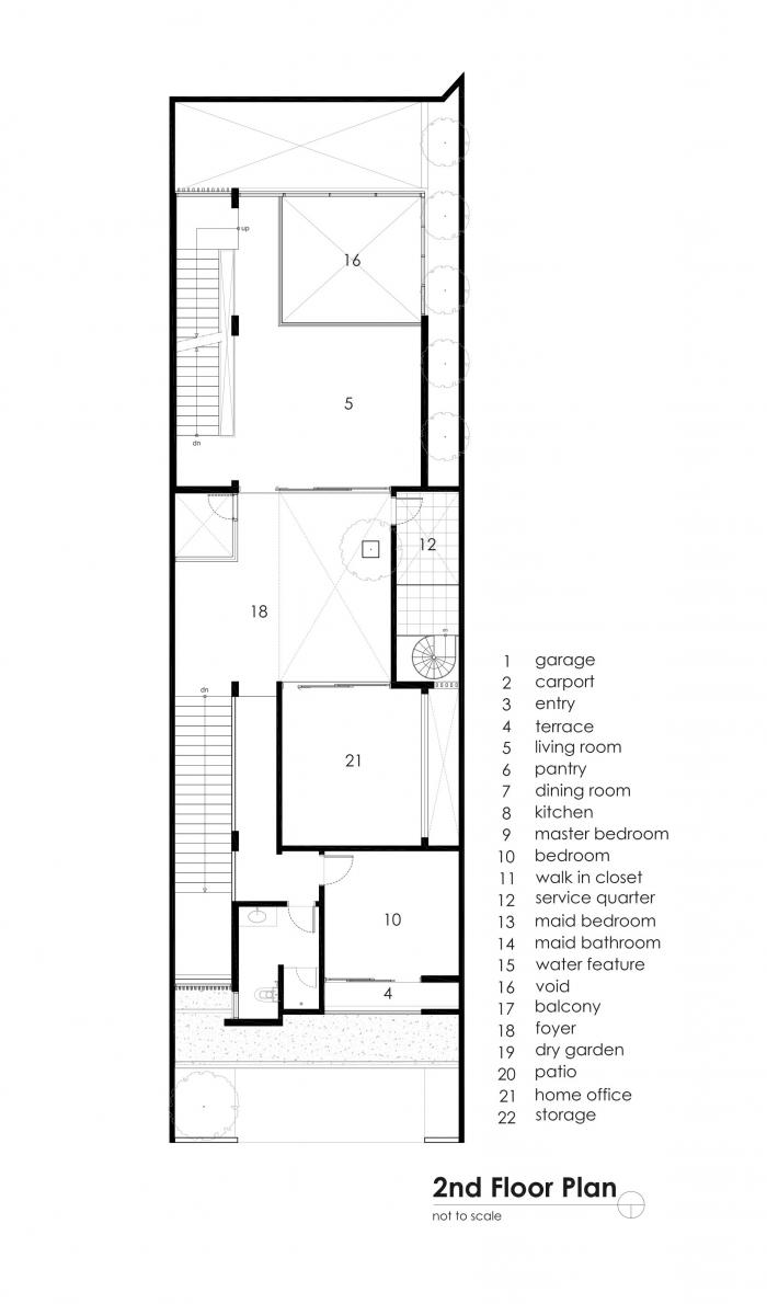
▲ 二层平面图
▲ 三层平面图
▲ 分析图
▲ 分析图
项目信息
项目类型:独立住宅,室内设计,可持续住宅
项目地址:北雅加达,印度尼西亚
建筑事务所:Pranala Associates
面积:523.0m²
项目年份:2018
摄影师:Mario Wibowo
制造商:DAIKIN,Duravit,Hansgrohe, Aluplus, Trimble Navigation, Autodesk, Mowilex
主创建筑师:Ronald Pallencaoe, Erick Laurentius, Darius Tanujoyo

BIM建筑网



















